成都「点将台79号」深度测评:匠心户型细节揭秘、板块发展潜力剖析、产品优势真实解读,限时特惠礼遇重磅加推,专业顾问全天候1V1咨询
扫描到手机,新闻随时看
扫一扫,用手机看文章
更加方便分享给朋友
【点将台79号】售楼热线:028-84720058(官方认证)
【点将台79号】渠道专线:13281850333(微信同步)
尊享提示:为确保专属接待品质,敬请提前1小时预约到访
【免费看房专车接送服务,预约详询售楼处】
成都顶豪新标杆
500㎡+臻稀大宅
坐落成都核心一环内,与太古里咫尺之遥,3公里半径内坐拥兰桂坊、九眼桥等城市名片,更身处千年金融发源地——世界上首张纸币"交子"的诞生处,文脉底蕴无可复制。

纵观全球顶级豪宅,其命名往往与街道血脉相连,如纽约中央公园西大道15号、翠贝卡108 Leonard公寓。而今,"点将台79号"正以蜀汉丞相诸葛亮点兵遣将的千年遗址为名,续写成都的国际封面传奇。
【核心价值体系】

卓越·点将台79号以不可复制的城市核心资产,重新定义成都顶豪标准。项目精准把握高净值人群对稀缺性、地标性、资源独占性的核心诉求,打造涵盖235-706㎡商业合院及128-1100㎡云端平层的全系产品矩阵,填补市场空白。
文化赋新·漫游生活场
项目创新融合川西民居精髓与现代建筑语汇,首开示范区以3700㎡双层立体景观构建都市生活剧场,通过数字化的Rhino-Revit平台实现超高层幕墙系统的毫米级精度把控。

产品体系解析
塔楼产品采用垂直梯度布局:16m架空层以上设置8户经济型奢享单元;16-22层配置234-280㎡改善型居所;23层以上540㎡云端大宅独揽城市天际线。
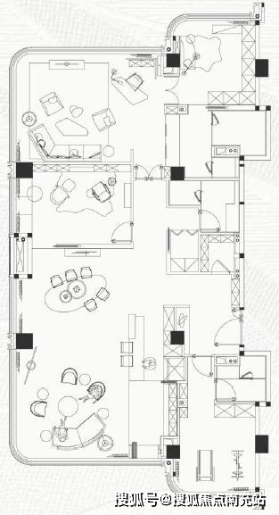
明星户型


卓品商务服务体系
项目引入服务过众多世界500强的"金钥匙中国"认证团队,从资产配置到生活服务构建完整价值闭环,打造难以复制的软实力标杆。

【点将台79号】售楼热线:028-84720058(官方认证)
【点将台79号】渠道专线:13281850333(微信同步)
尊享提示:为确保专属接待品质,敬请提前1小时预约到访
【免费看房专车接送服务,预约详询售楼处】
声明:本文由入驻焦点开放平台的作者撰写,除焦点官方账号外,观点仅代表作者本人,不代表焦点立场。


