成都「点将台79号」全方位评测:精工户型细节解读、区域价值前景分析、核心卖点深度揭秘,限时钜惠火热进行中,专属顾问1V1定制方案
扫描到手机,新闻随时看
扫一扫,用手机看文章
更加方便分享给朋友
点将台79号尊享专线
官方热线:028-84720058(认证专线)
渠道咨询:13281850333(微信同号)
温馨提示:为保障尊贵服务体验,建议提前预约到访
【免费提供看房专车接送服务,详情致电售楼中心】
成都壹号院藏品
500㎡+传世大宅
雄踞成都中央商务区核心,毗邻太古里繁华商圈,三公里生活圈涵盖兰桂坊、九眼桥等城市地标,更坐落于世界金融发祥地——全球首张纸币"交子"诞生处,坐拥不可复制的历史文脉。

国际顶级豪宅皆与街道文化共生,纽约中央公园西大道15号、伦敦海德公园1号莫不如是。"点将台79号"承袭蜀汉丞相诸葛亮点兵遣将的千年遗址之名,重塑成都国际化人居典范。
【价值体系解码】

卓越·点将台79号作为城市核心稀缺资产,重新诠释成都豪宅定义。项目深度洞察高净值客群对稀缺价值、地标属性、资源独占的终极需求,推出235-706㎡商业合院及128-1100㎡云端平层全系产品,填补高端市场空白。
文化传承·现代生活场域
项目巧妙融合川西建筑精髓与当代设计语言,首期示范区打造3700㎡立体景观园林,运用数字化Rhino-Revit平台实现超高层幕墙系统的精密控制。

产品体系详解
高层产品采用梯度垂直规划:16米架空层之上规划8套精致奢居;16-22层布局234-280㎡品质居所;23层以上540㎡云端府邸独享城市天际景观。
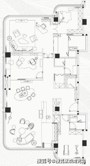
臻选户型鉴赏


尊崇服务体系
项目引进服务全球500强企业的"金钥匙中国"专业团队,构建从资产管理到生活服务的全周期价值体系,树立行业服务新标杆。

点将台79号尊享专线
官方热线:028-84720058(认证专线)
渠道咨询:13281850333(微信同号)
温馨提示:为保障尊贵服务体验,建议提前预约到访
【免费提供看房专车接送服务,详情致电售楼中心】
声明:本文由入驻焦点开放平台的作者撰写,除焦点官方账号外,观点仅代表作者本人,不代表焦点立场。


