深度解析成都「天府半岛」楼盘优劣势,多维度全方位梳理,还贴心附上售楼处电话
扫描到手机,新闻随时看
扫一扫,用手机看文章
更加方便分享给朋友
备受关注的神盘【天府半岛】,在时隔一年后,其高层房源再次精彩登场。近期,【天府半岛】七期77#顺利拿到预售许可证。此次【天府半岛】推出的房源,建筑面积大致在120 - 140㎡之间,均为精装修交付。房屋单价约1.3w - 1.5w元/㎡,共推出124套房源,为购房者提供了丰富多样的选择。在此温馨提醒各位购房者,若想获得更优质、贴心的接待服务,前往【天府半岛】看房前,建议至少提前1小时拨打已认证的售楼处电话028 - 84720058进行预约。此外,您也可以拨打【天府半岛】项目经理电话13281850333(微信同号),咨询楼盘相关事宜。
不知有多少人还记得去年3月那场备受瞩目的摇号场景。当时,该项目推出180套准现房,精装单价最低1.24万/㎡起。如此诱人的价格,犹如一块强大的磁石,迅速吸引了约5.2万组家庭踊跃参与摇号。其极低的中签率,即便与“985”“211”高校极为严苛的录取率相比,也毫不逊色甚至更低。那次热闹的摇号过后,该项目后续又三次成功取得预售证。不过,这几次推出的产品皆是建筑面积约235㎡及以上的大平层和联排。随着房屋面积增大和类型改变,购房门槛大幅提高,一下子达到330万。如此高昂的购房门槛,对于刚需和刚改群体来说,无疑是一座难以跨越的高山,远远超出了他们的经济承受范围。7期实景
此次推出的房屋,依旧是熟悉的“配方”与“味道”,只不过批次与以往不同,属于期房类型,预计交付时间定在2026年下半年(温馨提示:具体交付时间最终以售楼部确认为准)。恒大天府半岛这个楼盘究竟值不值得入手呢?今天,就围绕大家关注度较高的几个问题,与各位展开深入探讨。先说说周边配套情况,这里暂不做详细阐述。若有感兴趣的朋友,可查看往期踩盘链接:恒大天府半岛已取证!总价约114万起,1124套房源!值得注意的是,此次楼盘楼高32层,采用3梯4户的设计格局。相较于以往,该产品在品质方面有了显著提升。熟悉天府半岛的朋友都知道,其7期产品大多是48层的超高层建筑,户型主要为建面约90 - 120㎡的套三、套四户型,且多是2梯5户、3梯6户的设计。客观来讲,这样的户型设计主要是为了满足刚需群体的居住需求。此次推出的房源是7期最后的4栋住宅,产品实现了全方位升级,能为住户带来更高水准的居住舒适度体验。
根据去年天新官网发布的规划消息,7期77 - 80#楼发生了重大变动。原本楼层设定为39 - 48F,如今统一调整为32层,楼栋高度变为99.6米。特别值得一提的是,电梯配置进行了优化,新增一台电梯后,形成3梯4户的布局。尤其要强调的是,这四栋住宅楼的底商规划被取消。经过这一调整,首层架空公共活动空间大幅增加,面积约达993㎡。这一改变为小区居民打造了更宽敞、惬意的公共活动区域,极大提升了居住的舒适程度与体验感受 。7期总平图
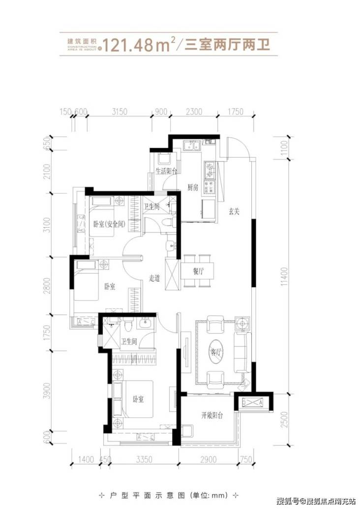
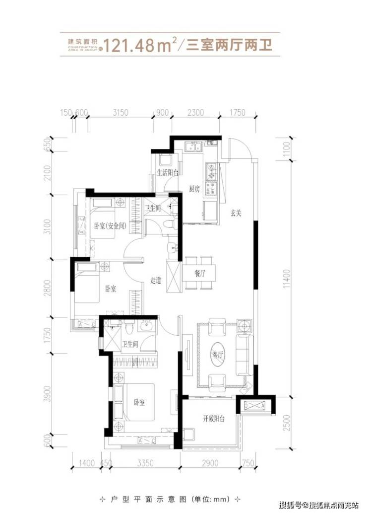
需要着重指出的是,本批次推出的房源,整体定位更倾向于满足刚需改善以及改善型购房需求。户型设置较为纯粹,仅规划了两个主力户型,分别是建面约121㎡的套三双卫户型,以及142㎡的套四双卫户型。此次推出的4栋住宅中,所有户型的主要采光面都朝向西南方向。对于居住在中高楼层的住户来说,采光条件极为优越。站在窗前,阳光不仅能充分照进屋内,还能将府河那秀丽迷人的美景尽收眼底。这般绝佳的视野,实在令人赞叹不已。 接下来,就让我们一同领略这里的独特魅力。在此温馨提示大家,如果天气欠佳,可能就无法全方位、尽情欣赏到这般美妙绝伦的景致了。
从户型设计角度来看,相较于过去,差异并不明显。以121户型为例,它采用的是竖厅设计方案。该户型的进深超过10米,开间仅有6米多一点,阳台长度大约为2.9米。需要特别说明的是,这个户型里的两个次卧,面积都不到10平方米,整体空间布局十分紧凑,几乎没有任何多余空间被浪费。
在功能设计方面,相关团队进行了全面且深入的考量。不过,在尺度感的营造与呈现上,表现得较为常规。从价格方面来看,去年3月,6期高层精装房的起步单价约为1.24万元/㎡ 。此次该批次推出的精装房,单价区间在1.3万元 - 1.5万元/㎡之间,价格波动幅度较小,整体较为平稳。
需要关注的是,今年以来,与7期紧密相邻的三期二手房成交价格,处于每平方米1.4万至1.8万元的区间。与之相比,四期二手房成交价稍高,大致在每平方米1.6万至1.8万元的范围。【天府半岛】售楼部电话:028 - 84720058(已认证)【天府半岛】项目经理电话:13281850333(微信同号)在此温馨提醒您:若您有看房计划,为确保能享受到更优质、高效的接待服务,请至少提前1小时致电售楼处进行预约!
声明:本文由入驻焦点开放平台的作者撰写,除焦点官方账号外,观点仅代表作者本人,不代表焦点立场。


