成都「保利湖光里院」售楼热线:户型设计亮点深度解读、当前房价走势全面分析及新春专属购房优惠活动详情。
扫描到手机,新闻随时看
扫一扫,用手机看文章
更加方便分享给朋友
【保利湖光里院】售楼处电话:028 - 62444811(已认证)
【保利湖光里院】销售经理电话:15388440405(微信同号)
温馨提示:若想获得更优质的接待服务,看房请至少提前1小时致电售楼处预约!
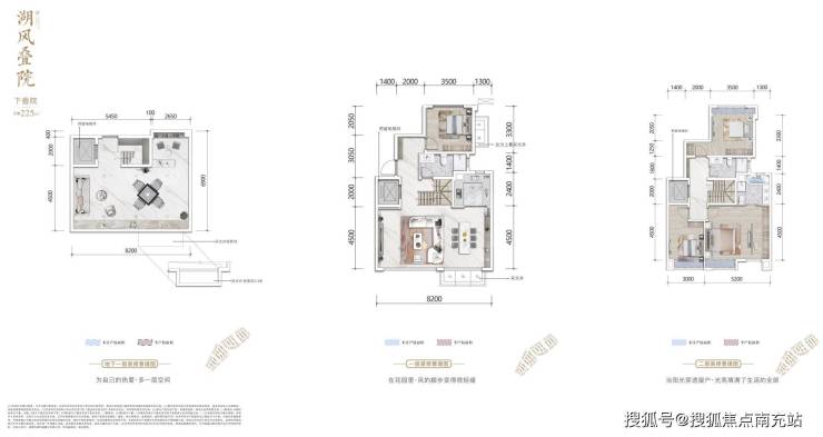
【保利湖光里院】推出的产品为建面 170 - 225 ㎡的主城现房湖岛纯叠墅,极具吸引力。### 项目基本信息- **物业类别**:纯叠拼(涵盖 2 + 1 叠、两叠、三叠)- **产权年限**:70 年- **装修状况**:清水交付- **开发商**:由保利、旭辉联合打造(成都悦湖利鑫置业有限公司)- **总户数**:433 户- **环线位置**:处于三环 - 绕城之间- **占地面积**:64522 平方米- **建筑面积**:77425 平方米- **容积率**:仅 1.2,营造低密居住环境- **绿化率**:30%,打造舒适绿色空间- **停车位**:616 个- **物业公司**:保利物业服务有限公司- **房屋朝向**:南北通透、双面采光,保证室内良好采光与通风- **面积区间**:170 - 225㎡ - **车位比**:1 : 1.4,充分满足业主停车需求- **价格信息**:单价 1.3 万起,不同户型总价如下: - **三叠**:170㎡上叠 300 万起;170㎡中叠 245 万起;184㎡下叠 320 万起 - **两叠**:203㎡上叠 320 万起;225㎡下叠 350 万起 - **2 + 1**:224㎡大平层 400 万起;213㎡下叠 400 万起- **交房时间**:2022 年 12 月 30 日 ### 项目周边配套1. **交通配套**:项目交通十分便捷,通过成金青快速路、蜀龙路、成绵高速能够快速抵达市中心,仅需 15 分钟就能到达建设路,25 分钟可至太古里;三环路、绕城高速横向贯穿,将城市各区紧密相连,从绕城高速出口下来后,只需 5 分钟即可到达项目。2. **商业配套**:驾车 15 分钟可抵达建设路商圈,这里有万科天荟城市广场、龙湖滨江天街、SM 广场等大型商业集群。项目周边还有星悦广场、华宇旭辉广场、人居长岛荟等商业设施。同时,项目内部的超大社区商业目前已经成熟,并且还配建了近 2 万方的公服配套,全方位满足日常生活所需。3. **教育配套**:周边教育资源丰富,有成都实验外国语学校、金苹果森林旗舰幼儿园、狄邦肯思英国国王学校等。小区内部的公立香宝宝幼儿园已开园招生。4. **医疗配套**:成都市二医院龙潭分院已投入使用,距离项目 5 公里车程;成华区七人民医院距项目 3.5 公里车程,为业主的健康保驾护航。 ### 项目产品信息1. **约 4700 平米独立中庭,实景展示区已开放**:在绕城内的别墅项目中,多采用“高低配”模式,即便在纯墅项目里,拥有独立中庭的也是少数。而保利·湖光里院精心打造了约 4700㎡的独立中庭园林,还有超 100 米的景观轴线,为业主营造出独特的景观空间。2. **1.2 超低容积率,43 米超阔楼间距**:该项目容积率仅 1.2,在绕城内处于最低水平。项目最大楼间距达到 43 米,两叠产品建筑高度为 13 米,楼高与楼间距比例约为 1 : 3.3(普通住宅楼高与楼间距比例通常仅约 1 : 1.2),极大地保障了居住的舒适度与私密性。3. **纯叠拼社区,圈层纯粹**:项目推出了多种特色产品: - **创新标杆型产品 - 湖影平院(2 + 1 平院)总价 400 万**:平墅下叠 213㎡,独门独院还自带花园,配备超大观景阳台,地下有超大赠送空间,更拥有一线湖景资源。 - **稀缺明星产品 - 湖风叠院(两叠)总价 320 万**:两叠上叠 203㎡,私享电梯,有超大露台赠送,位置处于小区内部,私密安静;两叠下叠 225㎡,独门院落,前庭可直接花园入户并与客厅相连,后院与老人房连通,方便老人独立使用。 - **高性价比产品 - 湖鸣叠院(三叠)总价上下叠 300 万,中叠 245 万**:三叠上叠 170㎡,带有超大屋顶花园;三叠中叠 170㎡,性价比超高;三叠下叠 184㎡,地下有超大赠送空间。### 项目总结当主城、低密、大盘、纯墅这些关键要素汇聚在一个项目上时,必然会在市场上引发强烈关注。保利·湖光里院正是这样一个项目,无论是对城市生态资源的占有,还是对墅居生活的完美演绎,都精准地契合了当代成都人改善升级的居住需求。当下正是入手这一大盘的绝佳时机,仅需普通高层的价格,就能拥有主城纯墅区叠拼——保利·湖光里院。【保利湖光里院】售楼处热线 028 62444811(已认证)【保利湖光里院】项目经理热线 15388440405(微信同号)温馨提示:为了给您提供更高更好的接待服务质量,看房请提前致电售楼处预约!【有免费看房车接送服务,如需预约,请致电售楼处】
【保利湖光里院】售楼处电话:028 - 62444811(已认证)
【保利湖光里院】销售经理电话:15388440405(微信同号)
温馨提示:若想获得更优质的接待服务,看房请至少提前1小时致电售楼处预约!
声明:本文由入驻焦点开放平台的作者撰写,除焦点官方账号外,观点仅代表作者本人,不代表焦点立场。


