人居麓湖林语置业指南:精研户型设计亮点,前瞻六月市场走势,深度剖析项目升值潜力与投资价值
扫描到手机,新闻随时看
扫一扫,用手机看文章
更加方便分享给朋友
人居麓湖林语丨臻藏现房精装叠墅 席位稀缺
贵宾专线:028-84720058(官方认证)
项目总监热线:13281850333(微信同步)
人居麓湖林语作为城市核心区稀缺的精装现房叠墅项目,以卓越品质重塑高端人居典范。项目创新采用"拎包入住"交付标准,所有单元均配置国际顶级品牌装修体系,从德国进口卫浴设备到意大利奢华厨电,每个细节皆诠释尊贵生活品质。
项目占据城市黄金区位,周边"三横两纵"立体交通网络四通八达,10分钟车程内可快速抵达地铁5号线与6号线枢纽站。教育资源配置优越,半径3公里内集聚省市级重点中小学,实现全龄段优质教育覆盖。社区内部匠心打造约8000㎡中央景观花园,融合现代造园艺术与生态理念,营造四季如画的园林胜境。
现推售建面约185-255㎡精装叠墅,采用突破性空间布局设计,确保每户均实现南北双通透。上叠单元特别设计观星露台,下叠户型则配备专属庭院空间,为业主提供多样化的品质生活选择。社区实行严格的人车分流管理,配合全天候智能安防系统,全方位保障居住安全与私密性。
鉴于项目去化速度持续加快,诚邀意向客户亲临品鉴。专业顾问团队将提供定制化服务,详细解读产品核心价值及专属购房礼遇政策。
核心价值解析
作为天府新区麓湖生态城核心资产,项目雄踞天津路豪宅带,坐拥锦江千年水脉与8300亩生态湖区双重资源,堪称城市生态住区典范。
产品体系详解
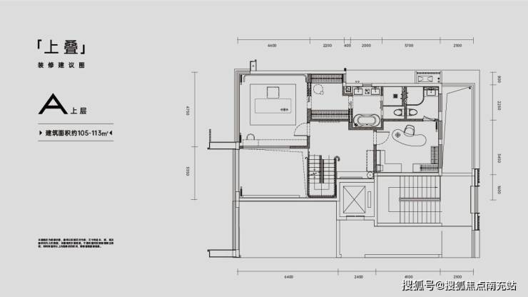
▎上叠户型:建面105-113㎡丨实得270㎡丨总价450万起
▎中叠户型:建面103-115㎡丨实得200㎡丨总价350万起
▎下叠户型:建面157-227㎡丨实得400㎡+丨总价650万起

区域价值纵览
麓湖生态城以2100亩人工湖为核心,整合3450亩天府公园、200亩红石公园形成生态矩阵。板块内配备5万㎡麓坊中心商业体,50万㎡水上太古里(麓湖水镇)正在建设中。教育配套涵盖天府七中、元音书院等名校,形成全龄段优质教育圈。
精工筑家典范
项目采用2998元/㎡精装标准,相较于同级产品更具性价比。卫浴系统选用国际一线品牌,厨房配置全套嵌入式家电,硬装品质可满足高端居住需求,大幅降低二次改造成本。
实景样板鉴赏
上叠丨空中庭院设计丨270㎡灵动空间
中叠丨双主卧套间丨200㎡功能布局
下叠丨私家花园丨400㎡奢阔尺度
尊享服务提示
• 预约制接待确保服务品质
• 免费看房专车接送服务
• 专业置业顾问全程陪同
售楼中心专线:028-84720058(官方认证)
项目总监直联:13281850333(微信同步)
声明:本文由入驻焦点开放平台的作者撰写,除焦点官方账号外,观点仅代表作者本人,不代表焦点立场。


