成都「天府半岛」6月动态速递:售楼处热线、全维度楼盘评测及在售户型价格深度剖析
扫描到手机,新闻随时看
扫一扫,用手机看文章
更加方便分享给朋友
【天府半岛】售楼热线:028 - 84720058(官方认证)【天府半岛】项目负责人手机:13281850333(支持微信联系)重要提示:为确保获得专属VIP接待服务,参观样板间请务必提前60分钟预约登记!!!沉寂一年后,成都楼市"网红盘"天府半岛终于迎来高层新品加推!最新消息显示,项目七期77号楼已正式取得预售证,本次推出建面约120-140㎡精装住宅,均价13000-15000元/㎡,共计124套优质房源
。回溯去年3月的开盘盛况,180套准现房以12400元/㎡起的亲民价格入市,引发超5.2万组家庭争相摇号,中签难度堪比顶尖名校录取。此后项目虽三次推新,但均为235㎡以上的大平层及联排别墅,总价330万起的高门槛将多数刚需置业者拒之门外。本次新品在延续项目基因的同时呈现三大升级亮点:1. 产品形态:作为7期收官之作的77-80号楼,规划由原48层降为32层,建筑高度控制在99.6米,梯户比优化为3梯4户,彻底告别早期2梯5户的拥挤配置
;2. 社区配套:取消底层商业,增设993㎡架空层泛会所空间,大幅提升公共活动区域
;3. 景观资源:所有户型主采光面均朝西南向,中高区可享府河全景视野,景观优势突出
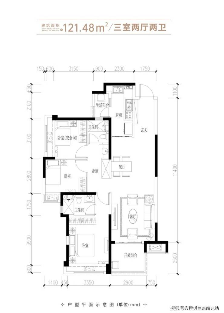
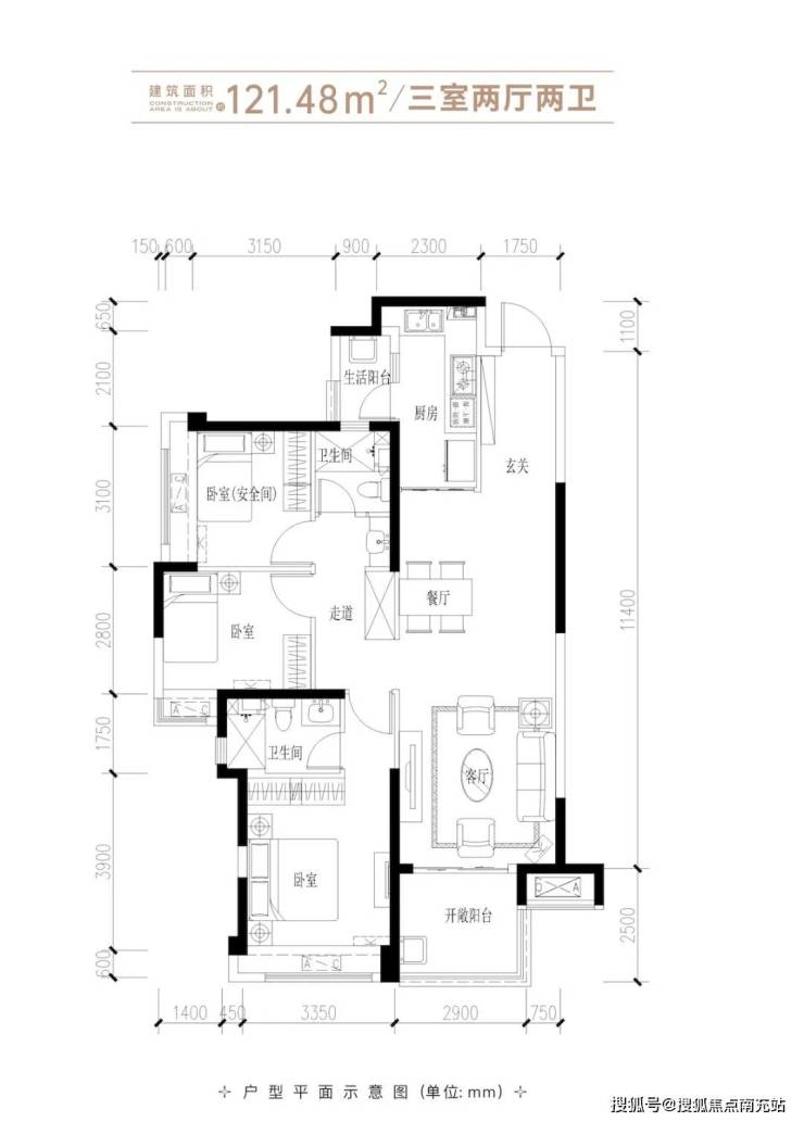
。户型设计方面,本次主打121㎡三房和142㎡四房两种改善型产品。以121㎡户型为例,采用经典竖厅布局,6米面宽搭配2.9米景观阳台,两个次卧虽控制在10㎡内,但通过优化动线实现了空间高效利用
。值得注意的是,本批次为2026年下半年交付的期房(具体以签约合同为准)
。价格层面,对比去年6期12400元/㎡的起价,本次13000-15000元/㎡的定价仍具竞争力。周边二手房市场表现强劲,同项目三期近期成交价14000-18000元/㎡,四期更是达到16000-18000元/㎡
。(配套详情可查阅往期测评:恒大天府半岛新品上市!总价114万起抢购指南)【天府半岛】售楼热线:028 - 84720058(官方认证)【天府半岛】项目负责人手机:13281850333(支持微信联系)温馨提示:尊享一对一专属服务,请提前60分钟预约看房时段!!!
声明:本文由入驻焦点开放平台的作者撰写,除焦点官方账号外,观点仅代表作者本人,不代表焦点立场。


