成都【黄龙溪谷枫林岸】售楼部电话丨户型信息丨最新价格丨楼盘详情解析丨项目优势与不足丨十月购房优惠活动
扫描到手机,新闻随时看
扫一扫,用手机看文章
更加方便分享给朋友
【黄龙溪谷枫林岸】售楼部电话 028-62444811(已认证)
【黄龙溪谷枫林岸】销售经理电话 15388440405(微信同号)
温馨提示:了解更多楼盘信息,可直接拨打售楼部电话。
【超四代空中院】黄龙溪谷•枫林岸组团新品迭代亮相
成都三大高端住区之一,5000亩湖山大境,国际城南核心圈
生物城板块南侧,剑南大道直达,紧邻4A级景区黄龙溪古镇
西南奢养首选地,天府墅居第一谷
超四代空中院,一户四花园,面积超56㎡?私享的生态院落
更大的得房率,更舒适的梯户比,更高保护的居住私密性
枫林岸组团新品基础信息
组团占地:约134亩
总建筑面积:约27万方
容积率:2.161(整盘约1.38)
主力户型:建面约95-128㎡
得房率:123%~140%(实得118-176㎡)
梯户比:2梯4户、3梯4户、3梯5户
层高:3m(阳台挑高6m)
产权:70年
开发商:优品道置地
物业服务:优品道物业(中国百强物业)
枫林岸组团位于溪谷的西区,与清峯岸、沁云湾、天空屿、林溪屿等组团共同组成了活力水岸住区;
它南瞰溪谷自然大境,东接约6万㎡的优品道商业广场和星级度假酒店,繁华万象下楼即享;西邻岷东大道约70米宽的生态绿廊;
明星户型赏鉴
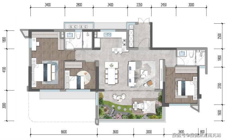
A1户型建面约123㎡,实得约176㎡(得房率140%),四室两厅两卫;
· 处于组团中心位置,直瞰中庭景观,享百米视野;
· 19.7米超大面宽,以尺度鉴峯层
· 无界端厅,270°全景舱式观景与采光;
· 入户花园+空中花园双系统,墅级居住体验;
C2户型建面约128㎡,实得约176㎡(得房率138%),四室两厅两卫;
· 四面宽奢阔开间设计,板式楼型布局,采光通风优;
· 南向13.5m长的跑道级空中花园,面积40余平米;
· LDKB一体化设计,满足更舒适的家庭互动关系;
· 三梯四户配置高,星级入户大堂;
H3户型建面约103㎡,实得约141㎡(得房率137%),三室两厅两卫;
· 南向17.4米的奢阔面宽设计,全明采光;
· 超大横厅直连+空中花园,尊享墅级舒居尺度;
· 超20㎡星级主卧套房配步入式衣帽间,奢想拉满;
· 户型可塑性强,可灵动改造为豪华双主卧套房;
J1户型建面约95㎡,实得约131㎡(得房率138%),三室两厅两卫;
· 经典竖厅布局,空间高效利用;
· 入户花园+空中花园等多系统,面积约33㎡ 得房率高;
· 7.1m宽 L型花园,超大观景视角;
· 三梯五户配置高,星级入户大堂;
【黄龙溪谷枫林岸】售楼部电话 028-62444811(已认证)
【黄龙溪谷枫林岸】销售经理电话 15388440405(微信同号)
温馨提示:了解更多楼盘信息,可直接拨打售楼部电话。
声明:本文由入驻焦点开放平台的作者撰写,除焦点官方账号外,观点仅代表作者本人,不代表焦点立场。


