成都「华兴滨江锦宸」售楼处热线、项目深度评测、业主口碑解析、内部价格参考及2026马年专属购房优惠全览。
扫描到手机,新闻随时看
扫一扫,用手机看文章
更加方便分享给朋友
【滨江锦宸】售楼部电话:028 - 62444811(已认证)
【滨江锦宸】销售经理电话:15388440405(微信同号)
温馨提示:为了提供更高更好的接待服务质量,看房请提前1小时致电预约!
大源低密南区 · 江安河畔 · 现房墅区
在繁华的双流区华府板块,一座备受瞩目的新楼盘——华兴滨江锦宸正悄然崛起,成为众多购房者心中的理想之选。本文将为您详细解读这座楼盘的独特魅力和潜在价值。
楼盘信息:
【项目占地】:约86亩
【容积率】:1.5
【绿化率】:30%绿地率
【梯户比】:高层2T2
【面积段】:
建面约174-325㎡江岸雅奢墅境
建面约129-159㎡天际阔景平层
【安心置业】:现房销售
项目核心价值:
【实力品牌】
深耕本土人居26载,用心服务每位业主
【坐享繁华】
2km大源核心区,尽享城南繁华生活配套
【一线滨江】
江安河畔滨水墅居,揽城市稀缺景观资源
【便捷出行】
项目近地铁5号线,三横三纵路网立体交通
【主城现房】
成都主城区臻罕现房低密滨江墅区
【周边配套】
纵横畅行:
一轨:5号线骑龙站;
三横:天府五街、元秀路、华阳大道;
三纵:剑南大道、华府大道、华秀路。
立体路网无界城芯生活。
繁华荟萃:
大润发商圈、世豪广场商圈、银泰城商圈。
三大繁华商圈环绕。
学府环伺:
约900米怡心第一实验学校(直线距离)
成都教科院附属学校、成都七中高新校区等,
公立、私立优资学府环伺。
三甲医资:
项目邻四川大学华西医院高新院区,
预计2026年可投入运营。
成都市第三人民医院高新院区(已批复),
为每一位业主家人的健康保驾护航。
【项目亮点】
▍崇奢府门,彰显层峯不凡气派
项目斥资千万匠造社区大门,
高度约13M,宽度约39M,
整个大门采用不锈钢曲线工艺设计,
石材柱体,屋顶香槟金全铝板挑檐,
大气煊赫,气象卓然。
▍一径探幽,花木掩映奢雅园境
「一径」是园区内贯通南北的景观中轴线,
林间悠境一步一景,景观流转悠然,
亲朋友邻都能在园境中与自然舒适互动。
▍双园错落,繁华中芯难得悠适
「双园」是主入口两侧的两座主题花园,
左侧为中庭会客区,奢造叠水景观;
右侧为儿童乐园与下沉庭院,
提供全龄儿童游乐、业主私享惬意悠境。
▍五巷礼遇,自然墅境生活场域
「五巷」是散布墅区的五径花园宅巷,
每一巷都栽培大量芬芳类和观赏类植物。
巷道栽嵌众多名贵乔木,
四季幽香常伴,尽藏时光美好。
【产品亮点】
▍奢谧入户,私谧入户空间
以2T2梯户比打造稀贵高层产品,
为业主营造拒绝喧扰的层峯领地。
▍奢工精研,全屋明管铺设
全屋水管采用成本更高的明管铺设,
方便渗漏检修的同时便于业主装修改造。
▍奢艺考究,全地面自流平
全地面自流平工艺,超越市场标准。
室内免打地坪即可安装地暖。
▍奢装预留,预留新风孔洞
全户型预留新风系统安装孔洞,
避免业主装修时对建筑梁体造成损害,
细节领先成都大部分楼盘。
▍奢阔层高,奢阔墅质层高
项目高层打造朗阔3.1米层高,
叠拼、双拼产品奢造3.5米层高,
营造高阶墅质生活的空间享受。
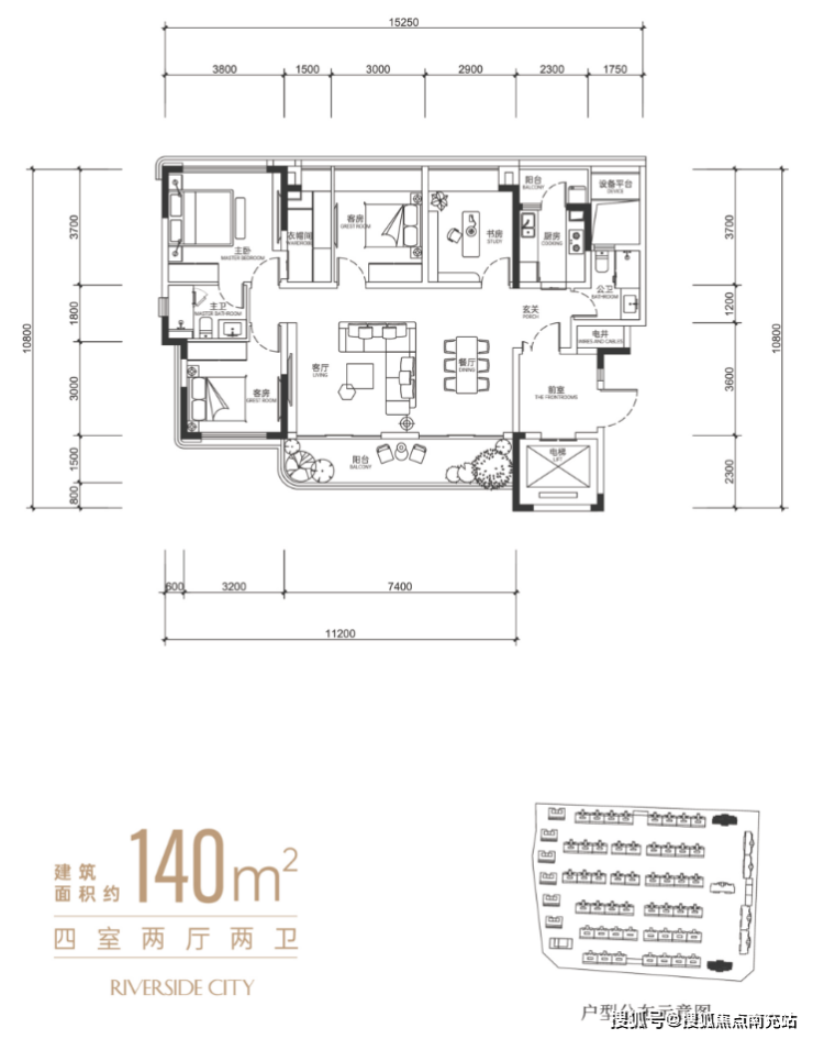
【户型图品鉴】
▍建面约129-159㎡天际阔景平层



▍建面约174-325㎡江岸雅奢墅境
【滨江锦宸】售楼部电话:028 - 62444811(已认证)
【滨江锦宸】销售经理电话:15388440405(微信同号)
温馨提示:为了提供更高更好的接待服务质量,看房请提前1小时致电预约!
声明:本文由入驻焦点开放平台的作者撰写,除焦点官方账号外,观点仅代表作者本人,不代表焦点立场。


