成都「空港云璟林著」6月置业指南:热销户型空间设计精析+实景园林配套深度测评,金牌顾问全天候答疑,助您把握入市良机
扫描到手机,新闻随时看
扫一扫,用手机看文章
更加方便分享给朋友
【空港云璟林著】营销中心咨询专线 028 84720058(官方认证)
【空港云璟林著】项目负责人直通电话 13281850333(微信同号)
温馨提示:为保障服务质量,项目实行预约制接待,请提前致电营销中心预约登记
【项目提供专属看房接送服务,详情请致电营销热线咨询】
空港云璟林著价值体系深度解读
随着房地产市场进入品质时代,产品核心竞争力成为开发商制胜关键。空港发展集团倾力打造的云璟林著项目,通过四大价值体系的立体化呈现,持续领跑怡心湖片区楼市热度榜。
▶ 前瞻性规划设计
项目占地约83亩,2.0的低容积率在A区50亩为主的地块供应中独树一帜。创新采用"点式围合+公园化"建筑布局,21栋11-17层纯板式住宅错落分布,形成最大约167米的超宽栋距,既确保了居住舒适度,又打造出多重景观庭院空间。
▶ 双公园生态矩阵
虽位于A区,但项目距怡心湖公园仅900余米步行距离,更坐拥两大市政公园:西侧190亩云熙公园规划四季主题花园,东侧452亩26°活力绿心公园保留原生植被,配备智能运动设施。社区内部打造"一环三轴十园"立体景观系统,实现内外公园的无缝衔接。
▶ 精工公共空间
建筑外立面采用公建化设计语言,大面积LOW-E玻璃与米白色真石漆相得益彰,线条简约大气。酒店式入户大堂搭配天然石材照壁,暖光系统营造尊贵归家体验。
▶ 标杆级居住空间
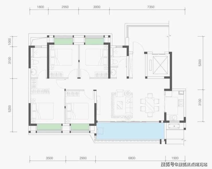
主力户型涵盖113-182㎡纯板式结构,其中143㎡四房堪称典范:
134㎡户型同样出众,15.1米超大面宽确保通透性,6.8米横厅连接景观阳台,LDK一体化厅区面积近40㎡,主卧配置独立衣帽间。
在房产价值回归居住本质的当下,云璟林著作为怡心湖板块的品质典范,已于12月26日取得预售许可,首推100套125.68-142.67㎡四房产品,清水均价18796元/㎡起,总价240万起即可入驻区域核心。
【空港云璟林著】售楼部热线 028 84720058(官方认证)
【空港云璟林著】项目经理热线 13281850333(微信同号)
温馨提示:为确保服务品质,参观需提前致电售楼处预约!
【项目提供免费专车看房接送服务,预约请致电售楼中心】
声明:本文由入驻焦点开放平台的作者撰写,除焦点官方账号外,观点仅代表作者本人,不代表焦点立场。


