成都「蓝润春风屿湖」售楼处电话-最新房价-配套查询-蓝润春风屿湖项目动态更新
扫描到手机,新闻随时看
扫一扫,用手机看文章
更加方便分享给朋友
【蓝润春风屿湖】售楼处热线 028-84720058(已认证)
【蓝润春风屿湖】项目渠道经理热线 13281850333(微信同号)
温馨提示:为了给您提供更高更好的接待服务质量,看房请提前致电售楼处预约!
【有免费看房车接送服务,如需预约,请致电售楼处】
蓝润春风屿湖座落在四川成都市天府新区南湖板块,该地区是天府新区中发展最早、住宅区密度最大的之一。项目西靠剑南大道,北面是即将建设的南湖体育公园,东部和南部紧邻北辰南湖香麓、中海左岸等高品质住宅,生活氛围浓厚。此外,项目周边还分布着南湖国际社区、海伦春天、远大中央公园等多个成熟小区,入住率高,配套设施完善。
位于天府新区5号线南湖立交地铁口的蓝润春风屿湖
户型面积涵盖92-122-185-189-200平米
提供两房、三房、四房和跃层户型
现房可选择楼层,大户型南北通透,小户型朝南
付款方式:支持按揭,首付从3成起(房源充足)
价格低于周边二手房4000-5000元/平方米
单价仅为18000-18500元/平米
【基本信息】
车位配比:1.1.7
绿化率:35%
容积率:2.9
物业费:2.9元/平方米/月
梯户比:2T4户 3T6户
交房时间:清水现房(2022年10月交付)
【配套信息】
交通:距离地铁5号线南湖立交站283米。剑南大道、牧华路。
教育:天府一幼、南湖光亚国际幼儿园;天府四小、天府三小、天府新区华阳小学、双流协和小学;天府新区华阳中学、天府四中、成都市实验外国语学校西区
商业:13万方环宇荟一街之隔
医院:天府新区第一人民医院
项目鸟瞰图
在售户型
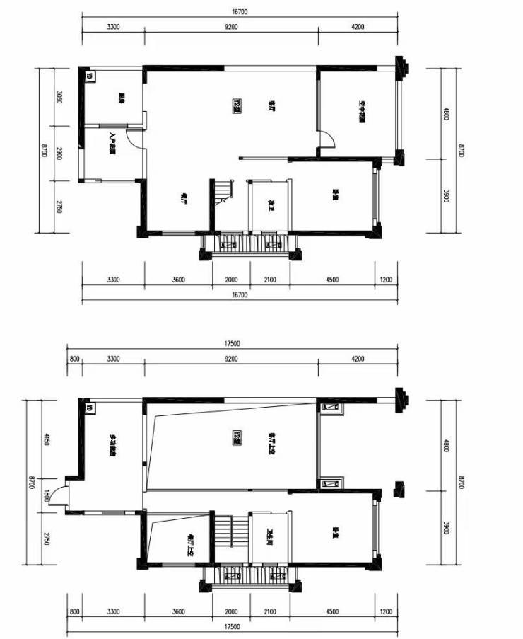
面积185平米 套四三卫 南北(东北)看公园看江
面积122平米舒适性套三双卫 朝南
92平米宽敞套二单卫,生活阳台有改动
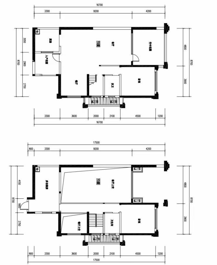
200平米跃层 南北向(东北看公园,看江)
蓝润春风屿湖提供的户型多样,从套二到套四,再到跃层,面积从92平方米到200平方米不等,满足了不同购房者的居住需求。其中,套二户型设计紧凑实用,适合单身贵族或小家庭;套三户型则更加宽敞舒适,适合三口之家或三代同堂;而跃层户型则更加豪华大气,适合追求高品质生活的购房者。
【蓝润春风屿湖】售楼处热线 028-84720058(已认证)
【蓝润春风屿湖】项目渠道经理热线 13281850333(微信同号)
温馨提示:为了给您提供更高更好的接待服务质量,看房请提前致电售楼处预约!
【有免费看房车接送服务,如需预约,请致电售楼处】
声明:本文由入驻焦点开放平台的作者撰写,除焦点官方账号外,观点仅代表作者本人,不代表焦点立场。


