成都【高投启鸣宸序】楼盘深度评测:项目价值解析、核心优劣势剖析、年末专属优惠及售楼处联系方式一览
扫描到手机,新闻随时看
扫一扫,用手机看文章
更加方便分享给朋友
【高投启鸣宸序】售楼部电话:028 - 62444811(已认证)
【高投启鸣宸序】销售经理电话:15388440405(微信同号)
温馨提示:了解更多楼盘信息,请致电售楼部,看房请提前线上预约,可享内部优惠。
高投置业新规战略作品
【配套篇】
交通圈——立体交通,纵横全城路网
【两横三纵】「新通大道 | 新程大道 | 天府大道|蓉遵高速 | 梓州大道」
【公共交通】地铁6号线-新通大道站(距离17亩项目约300米)新川站(距离30亩项目约500米)三大TOD 「红星路车辆基地TOD(在建中) | 新川路站TOD(在建中) | 陆肖TOD(在建中)」
名校圈——优质名校,城南精英主场
上海师范大学成都海川学校
「该校为沪蓉教育合作的里程牌式项目,作为一所十二年制公办学校(含择机开设的高中部),将于2025年9月正式启航」
高新区实验小学|新川科技园小学 | 金苹果锦城第一中学
生态圈——千亩公园,让生活住进自然
新川之心中央公园|新川湿地公园|新川环城公园
商业圈——繁华商圈,品质消费目的地
(2km)西南首个万象天地(建设中)|(2km)蓝润置地广场(伊藤洋华堂)|(2km)远大购物中心|(4km)山姆会员店|2/4/8号邻里中心
医疗圈——权威医疗 健康护航
(1.7km)四川省中西医结合医院高新院区(三甲医院)| (3.8km)四川大学华西第二医院高新区妇女儿童医院
【项目数据】
占地面积:30.2亩
绿地率:35%
总户数:383户
建筑类型:小高层
梯户比:2T2
装修情况:臻装大平层
效果图
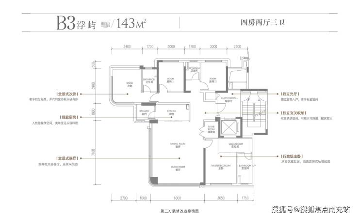
【户型鉴赏】
【高投启鸣宸序】售楼部电话:028 - 62444811(已认证)
【高投启鸣宸序】销售经理电话:15388440405(微信同号)
温馨提示:了解更多楼盘信息,请致电售楼部,看房请提前线上预约,可享内部优惠。
声明:本文由入驻焦点开放平台的作者撰写,除焦点官方账号外,观点仅代表作者本人,不代表焦点立场。


