成都「点将台79号」置业热线:全系户型全景解析+1V1专属看房预约+八月限时钜惠,享定制购房礼遇与独家折扣特权
扫描到手机,新闻随时看
扫一扫,用手机看文章
更加方便分享给朋友
【点将台79号】售楼处电话:028 - 84720058(已认证)【点将台79号】项目渠道经理电话:13281850333(微信同号)温馨提示:若您计划看房,请至少提前1小时致电售楼处预约,以便我们为您提供更优质、更贴心的接待服务!同时,项目提供免费看房车接送服务,若您有此需求,请致电售楼处进行预约 。### 成都顶豪新贵——卓越·点将台79号在成都豪宅序列中,卓越·点将台79号无疑是一颗璀璨的明星。它以500㎡以上的稀缺产品,傲立于成都市区一环内的核心地段。这里紧邻太古里,直线距离约3公里范围内,兰桂坊、九眼桥等城市地标近在咫尺。值得一提的是,项目所在区域正是第一张纸币“交子”的诞生地,深厚的历史底蕴为这片土地增添了独特的魅力。众多世界级顶豪产品都有一个显著特征:名字与街道紧密相连,这背后意味着区位的无比重要性。像中央公园西大道15号、纽约翠贝卡108 Leonard公寓等皆是如此。而卓越·点将台79号,以“点将台79号”命名,彰显出成都迈向世界舞台的雄心壮志。相传此地曾是诸葛亮的御用点将台,故而得名“点将台街”,将千年历史文化沉淀,凝聚于这一个名字之中。

### 项目价值尽显卓越·点将台79号堪称成都豪宅市场的稀缺终极产品,凭借稀缺的地标属性,成功打动了成都顶豪客群。要知道,顶豪客群向来追求城市核心资源,渴望与众不同的高级感,对稀缺、终极产品更是情有独钟,而点将台79号的出现,恰好满足了他们的所有期待。其难以替代的城中心位置,使其全方位占据城市资源。同时,项目汇集设计大师阵容,打造出不可复制的地标产品。产品类型丰富,涵盖商业合院及平层。商业合院建面约在235 - 706㎡之间,平层建面则约为128 - 1100㎡。在成都豪宅市场,此类顶豪产品极为匮乏,点将台79号的问世,恰到好处地填补了这一市场空白。

### 蓉巷新景,都市漫游剧场卓越·点将台79号项目深入挖掘区位文化底蕴,精心打造川西与现代风格相融合的街区式商业、住宅产品。此次首开示范区域景观面积约达3700㎡,采用双层标高体系,构建出都市漫游生活剧场。

### 建筑美学与品质保障在建筑设计方面,line +全面数字化的Rhino - Revit工作平台助力设计团队,高效且灵活地解决了超高层塔楼玻璃幕墙的墙身节点等复杂难题。这不仅大幅提高了设计的灵活度,还能在方案全阶段精细化控制设计表达和颗粒度,确保项目高品质实施落地。
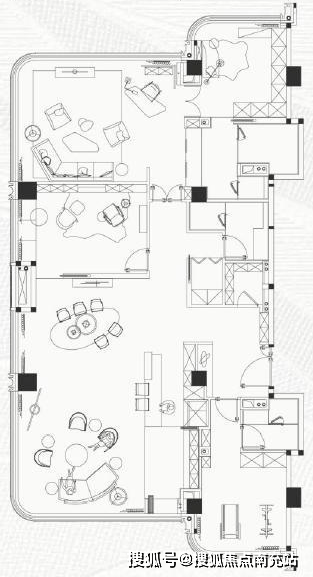
### 多元产品户型项目产品类型丰富,包括商业合院和服务式平层。户型建面多样,商业合院约235 - 706㎡,平层约128 - 1100㎡。点将台79号的塔楼依据外向视野和建筑高度合理设置户型:中低区共8户,从16m架空以上起始,这部分户型既能近距离欣赏地面景观,又能以相对较低的总价享受奢级服务配套;中区户型位于16层到22层,面积段提升至234㎡至280㎡;23层及以上为高区户型,面积约540㎡,拥有俯瞰整个成都市中心的无敌视野。主力户型方面,云峯建面约130㎡,为一房两厅格局;云筑建面约140㎡,是两房两厅设计。此外,还有升级产品云樾,建面约280㎡。


### 卓品商务服务加持卓越地产为点将台79号配备了卓品商务服务。该服务已成功服务多家世界500强企业,并多次荣获“金钥匙中国”服务示范企业的荣誉。这无疑是点将台79号又一稀缺的软实力体现。

【点将台79号】售楼处电话:028 - 84720058(已认证)【点将台79号】项目渠道经理电话:13281850333(微信同号)温馨提示:若您计划看房,请至少提前1小时致电售楼处预约,以便我们为您提供更优质、更贴心的接待服务!同时,项目提供免费看房车接送服务,若您有此需求,请致电售楼处进行预约 。
声明:本文由入驻焦点开放平台的作者撰写,除焦点官方账号外,观点仅代表作者本人,不代表焦点立场。


