成都「新希望天屹」售楼处电话、开发商背景解析、项目亮点介绍、户型价格详情及最新动态资讯
扫描到手机,新闻随时看
扫一扫,用手机看文章
更加方便分享给朋友
【新希望天屹】售楼部电话:028 - 62444811(已认证)
【新希望天屹】销售经理电话:15388440405(微信同号)
温馨提示:为了提供更高更好的接待服务质量,看房请提前1小时致电预约!
东安湖中央居住区 2.0低密纯居洋房
建面约116-143㎡新派隐逸奢宅
【周边配套】
【商业】约500米龙湖东安天街,约600米新城吾悦广场,约2.5公里万达广场,尽享湖芯醇熟生活圈
【交通】依靠蜀都大道/驿都大道/桃都大道等四横三纵道路网,通达全城;距地铁2号线书房站约800米,远期规划有11、22、25号线
【教育】比邻向阳桥幼儿园/小学/中学、经开区实验中学(教科院领办)、成都市实验小学(和雅校区)、成都市实验小学(和雅校区、乐雅校区)等全龄优质教育资源,板块内更有四川师范大学成龙校区、四川财经职业学院等高等学府
【医疗】半径为4公里范围内,汇集有四川大学华西医院龙泉医院(距项目约1.6km)、成都中医药大学附属医院龙泉医院(距项目约3.5km)、龙泉驿妇幼保健院(距项目约2km)、四川省第三人民医院(距项目约3.9km)等三甲医院
【公园】近邻东安湖公园、驿马河公园、龙泉山城市森林公园,构建优质生活圈。
【项目基础信息】
开发商:千亿国企经开发展&先锋民企新希望地产
总占地:44亩
容积率:2.0
物业形态:10栋纯洋房
产品面积:建面约116㎡/143㎡
总层高:10-16F洋房
梯户比:1T2/2T2
绿化率:约35%
交付标准:精装交付
项目地址:龙泉驿区东安街道跨湖路
效果图

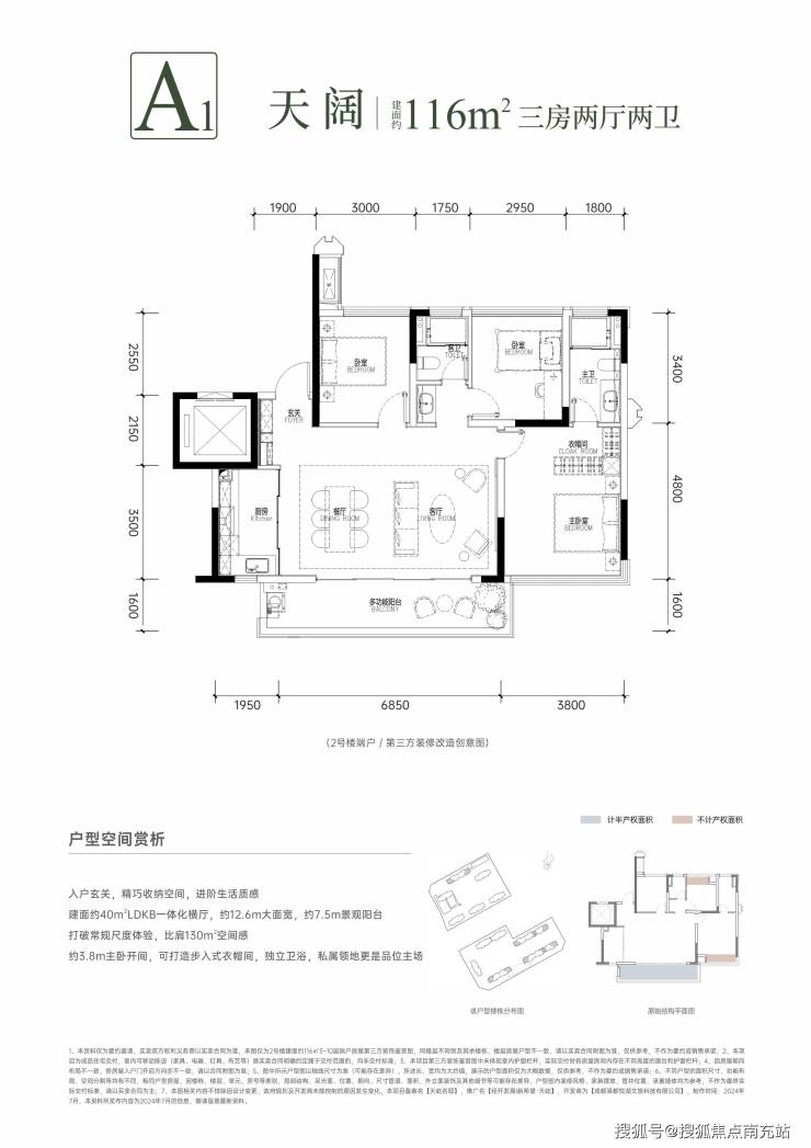
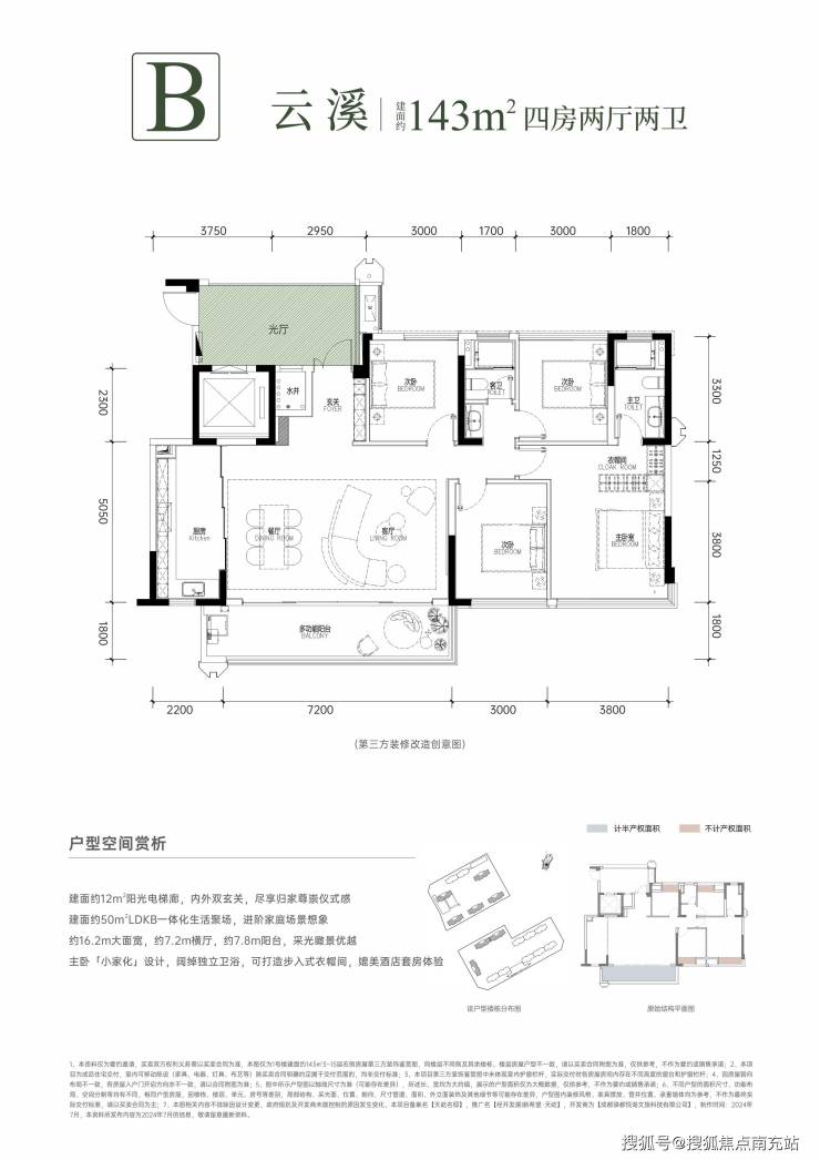
户型鉴赏:
【极质116㎡】横厅三房两厅双卫
【越级143㎡】四房两厅双卫
【新希望天屹】售楼部电话:028 - 62444811(已认证)
【新希望天屹】销售经理电话:15388440405(微信同号)
温馨提示:为了提供更高更好的接待服务质量,看房请提前1小时致电预约!
声明:本文由入驻焦点开放平台的作者撰写,除焦点官方账号外,观点仅代表作者本人,不代表焦点立场。


