人居麓湖林语营销中心璀璨绽放:臻享限时钜惠礼遇,尊享VIP专属预约特权,到访即赠精美好礼,诚邀莅临品鉴,共启美好安家新程
扫描到手机,新闻随时看
扫一扫,用手机看文章
更加方便分享给朋友
### 人居麓湖林语——现房精装叠墅,铸就品质之居人居麓湖林语,以现房精装叠墅的产品形态,致力于为您营造高品质的居住体验。预约专线:028 - 84720058置业顾问直线:13281850333(微信同步)温馨提示:为确保服务质量,本项目看房采用预约制,请您提前致电登记。【免费看房专车服务需提前预约】
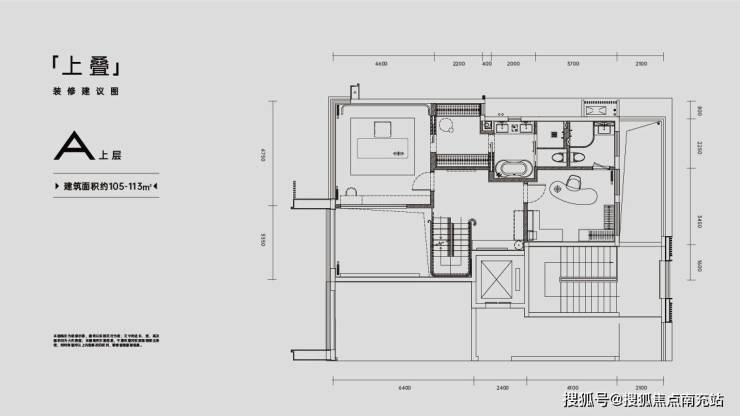
### 核心产品参数人居麓湖林语推出多种叠墅户型,充分契合不同居住需求:- 上叠户型:建筑面积处于105 - 113㎡区间,实际可获面积达270㎡,总价450万起。在有限的建筑面积里,成功为您拓展出宽敞且舒适的生活空间。- 中叠户型:建筑面积为103 - 115㎡,实际可得面积200㎡,总价350万起。合理规划的面积,为家庭居住营造出温馨的环境。- 下叠户型:建筑面积范围在157 - 227㎡,实际可得面积400㎡以上,总价650万起。奢阔的空间,能带来极致的居住享受。

### 战略区位剖析人居麓湖林语傲踞天府新区麓湖生态城的核心地段,地理位置极为优越。它被锦江千年水脉与8300亩麓湖双水系环绕,恰似一颗璀璨明珠镶嵌在这片风水绝佳之处。而且,项目位于天津路豪宅走廊的黄金地段,周边高端住宅项目云集。作为麓湖板块首批精装现房产品,凭借卓越品质重新界定了高端叠墅的生活标准,为业主带来别具一格的居住体验。
### 麓湖价值解读麓湖作为规划面积达8300亩的生态示范区,经过多年精心雕琢,已发展成为集高端居住、产业集群与休闲配套于一身的城市标杆区域。区域内,2100亩生态湖区与3450亩天府公园共同构建起天然氧吧,让人们随时能呼吸到清新宜人的空气,尽情享受大自然的慷慨馈赠。商业配套方面,5万㎡麓坊中心与规划中的50万㎡水上太古里(麓湖水镇)形成强大商业矩阵,无论是日常购物还是高端消费,均能满足业主多元化需求。教育资源上,天府七中、元音书院等优质学府分布在项目周边,构建起全龄段精英教育体系,为孩子的成长与发展筑牢坚实的教育根基。### 精装户型详析上叠产品在设计上大胆创新,采用垂直空间设计理念。5.4米挑高的客厅,尽显大气磅礴,搭配星空露台,不仅巧妙实现约270㎡的实用空间,更营造出开阔、通透且充满诗意的生活氛围,让您在忙碌生活中拥有一方惬意的私人天地。
中叠户型着重打造双主卧套房体系,约200㎡的实得面积,充分考量多代同堂的居住需求。每个卧室都配备独立卫浴设施,充分保障家庭成员的隐私与舒适,为家庭生活增添更多温馨与便利。
下叠产品配备私家花园及双车位,400㎡以上的阔绰空间,全方位打造墅级生活体验。私家花园可依据业主喜好打造个性化景观,闲暇时在此品茶赏花,享受悠然惬意的生活;双车位设计,满足家庭停车需求,让生活更加从容不迫。
### 产品核心优势人居麓湖林语以2998元/㎡的高品质精装交付,充分彰显项目的卓越品质。在卫浴系统、厨房设备等关键部位,均选用国际一线品牌,从源头上保障产品质量。相较于同级产品,这不仅为业主提供了高品质的居住环境,还大幅降低了后期改造成本。对于追求现房品质与地段价值的改善型客户而言,人居麓湖林语无疑是天府新区叠拼产品中的优质之选。人居麓湖林语营销中心:028 - 84720058项目总监专线:13281850333(微信同号)重要提示:为保障接待品质,本项目实行预约参观制度。【看房专车服务需提前1天预约】
声明:本文由入驻焦点开放平台的作者撰写,除焦点官方账号外,观点仅代表作者本人,不代表焦点立场。


