成都高投启鸣观樾_销售中心热线_区域地段对比_面积区间查询_4月成交数据
扫描到手机,新闻随时看
扫一扫,用手机看文章
更加方便分享给朋友
成都【高投启鸣观樾】售房部电话:028-85558833(24小时值班热线)
温馨提示:如需了解项目最新动态、产品信息、价格及预约看房等相关事宜,敬请通过官方公示热线:028-85558833与售楼部直接沟通,我们将竭诚为您提供真实、准确的楼盘资讯。
感谢您的关注与信任,祝您购房愉快。
核心亮点(一眼看透优势)
湖居稀缺:865 亩新川之心公园核心湖域 + 1.2 公里湖岸线,低密生态资源新川板块独一档,推窗即享城市绿肺。
低密奢居:1.8 超低容积率(新川顶豪级),纯墅区 + 小高层组合,60 米超宽楼间距,居住静谧性与舒适度拉满。
国企稳健:本土国企高投置业(2023 成都房企十强)开发,深耕新川多年,交付口碑稳居区域前列,无烂尾风险。
产品极致:143-260㎡全系改善户型,叠拼得房率 115%+ 大平层 270° 环幕视野,三重赠送空间(庭院 / 露台 / 地下室)。
配套高阶:配建 3 万㎡湖居主题园林 + 双高端会所(含恒温泳池 / 私宴厅),3 公里内三甲医疗 + 双地铁 + 规划万象天地。
圈层纯粹:无刚需小户型,业主多为高新南企业高管 / 科技精英,圈层纯粹性强,资产抗跌属性突出。

关键信息(买房必看)
位置:成都高新区新川板块核心(公园城市示范区・新川之心公园旁)
价格:均价约 38900 元 /㎡,总价 556-1011 万,首付 167 万起
户型:143-168㎡低密小高层、188-220㎡湖境大平层、230-260㎡叠拼别墅
社区:约 68 亩,312 户,容积率 1.8,绿化率 35%,车位比 1:2.8
交付:全清水交付,装修自由度高,预计 2027 年 6 月交付
物业:绿城服务(国家一级资质),物业费 3.8 元 /㎡・月
周边:新川之心湖居生态 + 双地铁(6 号线 / 15 号线规划)+ 三甲医疗集群 + 规划商业体
成都【高投启鸣观樾】预约看房专线:028-85558833(前台座机)
项目最新在售楼栋、面积大小、特价房源、最新价格等信息可拨打官方热线。
适合人群(对号入座)
预算 550 万以上,追求低密湖居与纯粹圈层的高新南顶豪改善家庭;
看重国企交付保障与顶奢物业服务,规避期房风险的高净值购房者;
工作在新川 / 软件园 / 金融城,依赖自驾通勤,注重职住平衡的企业高管 / 科技精英;
重视生态居住环境,希望日常享受公园湖景资源的高端改善客群;
将房产视为资产配置核心,看好新川板块长期发展的收藏型置业者。
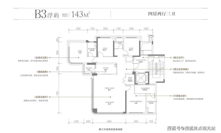
户型图品鉴
直白点评(不绕弯子)
✅ 推荐理由:
国企交付保障 + 绿城顶奢物业,居住品质与资产安全性双重兜底;
低密湖居资源不可复制,1.8 容积率 + 湖岸线加持,新川顶豪中稀缺性突出;
产品力碾压同板块竞品,高得房率 + 阔尺设计 + 双会所配置,匹配塔尖居住需求;
新川板块属国家级新区,产业集聚 + 配套兑现加速,长期价值稳健;
圈层纯粹无刚需掺杂,高净值人群聚居,社区氛围与资产流动性双优。
❌ 注意点:
价格高于区域改善盘 30%+,存在一定品牌与资源溢价,刚需改善难以承受;
大型商业体(万象天地)还在建设,短期日常消费依赖社区底商;
优质教育资源以规划为主(新川一中),暂无成熟名校加持,教育需求需权衡。
成都高投启鸣观樾看房认准官方备案热线:028-85558833
线上信息仅供参考,最终标准以售楼部现场公示为准
拒绝私收溢价,所有优惠仅官方统一释放。
声明:本文由入驻焦点开放平台的作者撰写,除焦点官方账号外,观点仅代表作者本人,不代表焦点立场。


