成都「天府半岛」项目全解析:区位优势、户型亮点、价格政策及购房优惠一览,售楼电话、核心价值与潜在不足深度剖析
扫描到手机,新闻随时看
扫一扫,用手机看文章
更加方便分享给朋友
【天府半岛】售楼热线:028-84720058(官方认证)
【天府半岛】项目负责人专线:13281850333(支持微信联系)
重要提示:为确保优质看房体验,请至少提前1小时致电预约!
备受瞩目的天府半岛项目,在沉寂一年后终于迎来高层新品加推!
最新消息显示,天府半岛七期77号楼已正式取得预售许可,主力户型为120-140㎡精装住宅,均价约1.3-1.5万元/㎡,本次仅推出124套稀缺房源!
回顾去年3月的开盘盛况仍令人记忆犹新:180套准现房以1.24万元/㎡起的精装价格入市,吸引超5.2万组家庭参与摇号,中签难度堪比顶尖高校录取!
值得注意的是,本次推出的为预售房源,预计2026年下半年交付(具体以售楼部公示为准)。那么,这批房源究竟价值几何?让我们从几个关键维度深入分析。
7期实景展示
对比前期产品,本批次房源在多个方面实现突破性升级:
1. 建筑高度由原规划的48层优化为32层,楼体高度控制在99.6米
2. 电梯配置升级为3梯4户,大幅提升出行效率
3. 取消底层商业,增设近千平方米架空层公共活动空间
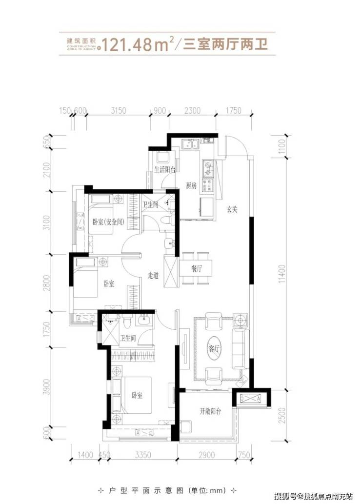
户型规划方面,本次仅推出121㎡三房双卫和142㎡四房双卫两种改善型产品,客群定位更加精准。特别值得一提的是,所有户型主采光面均朝西南向,中高楼层可尽览府河景观,视野优势突出。
7期总体规划示意
以121㎡户型为例:采用经典竖厅设计,虽进深超10米,但6米开间配合2.9米阳台,空间利用率较高;两个次卧面积控制在10㎡以内,整体布局紧凑实用。
现场实景参考
横向对比显示,本次1.3-1.5万元/㎡的精装均价,与去年6期1.24万元/㎡起的定价基本持平。而周边二手房市场表现强劲:三期成交价1.4-1.8万元/㎡,四期达1.6-1.8万元/㎡,价差优势明显。
【天府半岛】售楼热线:028-84720058(官方认证)
【天府半岛】项目负责人专线:13281850333(支持微信联系)
重要提示:为确保优质看房体验,请至少提前1小时致电预约!
声明:本文由入驻焦点开放平台的作者撰写,除焦点官方账号外,观点仅代表作者本人,不代表焦点立场。


