成都「华兴滨江锦宸」尊享热线:360°全维户型深度解析,更新价格动态及金秋购房盛礼。限时加推特惠房源,席位递减,恭迎品鉴。
扫描到手机,新闻随时看
扫一扫,用手机看文章
更加方便分享给朋友
在双流区华府板块这片繁华之地,一座备受瞩目的新楼盘——【华兴滨江锦宸】正崭露头角,成为众多购房者心仪的理想之选。接下来,本文将全方位为您深度剖析这座楼盘独具的魅力与潜在价值。【华兴滨江锦宸】售楼处热线 028 - 62444811(已认证)【华兴滨江锦宸】项目经理热线 15388440405(微信同号)温馨提示:为了给您呈上更优质、更贴心的接待服务,若您计划看房,请提前致电售楼处进行预约!另外,项目还提供免费看房车接送服务,如有需要,请致电售楼处预约。【华兴·滨江锦宸】位于大源低密南区·江安河畔,是一处现房墅区。### 楼盘信息- **项目占地**:约86亩- **容积率**:1.5- **绿化率**:30%绿地率- **梯户比**:高层2T2- **面积段**: - 建面约174 - 325㎡江岸雅奢墅境 - 建面约129 - 159㎡天际阔景平层- **安心置业**:现房销售
### 项目核心价值1. **实力品牌**:该项目的开发商深耕本土人居领域长达26载,始终秉持用心服务的理念,对待每一位业主都尽心尽力,凭借多年的积累,赢得了良好的口碑。2. **坐享繁华**:项目距离大源核心区仅2km,让业主能够尽情享受城南繁华的生活配套,无论是购物、娱乐还是休闲,都能轻松满足。3. **一线滨江**:坐落于江安河畔,实现滨水墅居梦想,揽尽城市稀缺的景观资源,推窗即见自然美景,为生活增添无限诗意。4. **便捷出行**:项目临近地铁5号线,同时拥有三横三纵的路网,构建起立体交通体系,让业主出行畅达无阻,轻松抵达城市各处。5. **主城现房**:作为成都主城区极为罕见的现房低密滨江墅区,不仅能让业主缩短入住等待期,真正做到“所见即所得”,置业更加安心。
### 周边配套1. **纵横畅行**: - **一轨**:5号线骑龙站,为业主的轨道交通出行提供便利。 - **三横**:天府五街、元秀路、华阳大道,连接城市各个区域。 - **三纵**:剑南大道、华府大道、华秀路。发达的立体路网,让业主无缝对接城芯生活。2. **繁华荟萃**:被大润发商圈、世豪广场商圈、银泰城商圈环绕,丰富的商业资源,满足业主多样化的消费需求。3. **学府环伺**:距离怡心第一实验学校约900米(直线距离),周边还有成都教科院附属学校、成都七中高新校区等公立、私立优质学府,为孩子提供良好的教育环境。4. **三甲医资**:项目毗邻四川大学华西医院高新院区,预计2026年投入运营;成都市第三人民医院高新院区也已批复。完善的医疗配套,为每一位业主家人的健康筑牢坚实保障。
### 项目亮点1. **崇奢府门,彰显层峯不凡气派**:项目不惜斥资千万精心打造社区大门,大门高度约13M,宽度约39M。整体采用不锈钢曲线工艺设计,搭配石材柱体,屋顶是香槟金全铝板挑檐,尽显大气煊赫,展现出卓然不凡的气质。2. **一径探幽,花木掩映奢雅园境**:“一径”作为园区内贯通南北的景观中轴线,漫步其中,林间悠境一步一景,景观流转自然悠然。在这里,亲朋好友都能与自然亲密互动,享受惬意时光。3. **双园错落,繁华中芯难得悠适**:“双园”指的是主入口两侧的两座主题花园。左侧为中庭会客区,精心打造了叠水景观;右侧是儿童乐园与下沉庭院,为全龄儿童提供游乐空间,也为业主营造出私享的惬意悠境。4. **五巷礼遇,自然墅境生活场域**:“五巷”是散布在墅区的五条花园宅巷,每一巷都种植了大量芬芳类和观赏类植物,巷道中还栽嵌着众多名贵乔木。四季花香四溢,处处藏着时光的美好。
### 产品亮点1. **奢谧入户,私谧入户空间**:以2T2梯户比打造稀贵高层产品,为业主营造出私密、宁静的层峯领地,拒绝外界的喧嚣与干扰。2. **奢工精研,全屋明管铺设**:全屋水管采用成本更高的明管铺设方式,这样在方便渗漏检修的同时,也便于业主在装修时进行改造,充分考虑到业主的实际需求。3. **奢艺考究,全地面自流平**:采用全地面自流平工艺,超越市场标准。室内无需打地坪即可直接安装地暖,为业主带来更便捷、舒适的生活体验。4. **奢装预留,预留新风孔洞**:全户型都预留了新风系统安装孔洞,有效避免业主在装修时对建筑梁体造成损害,在细节方面领先成都大部分楼盘。5. **奢阔层高,奢阔墅质层高**:项目高层打造了朗阔的3.1米层高,叠拼、双拼产品更是奢造3.5米层高,为业主营造出高阶墅质生活的空间享受。
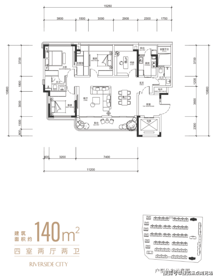
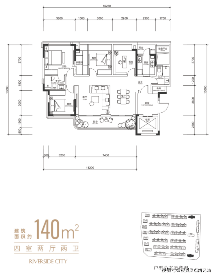
### 户型图品鉴1. **建面约129 - 159㎡天际阔景平层**


2. **建面约174 - 325㎡江岸雅奢墅境**

【华兴滨江锦宸】作为主城罕有的现房开售的滨江墅质藏品,不仅入住等待期相比期房更短,真正做到“所见即所得”,让置业更加安心。而且仅1.5的容积率,树立了城南墅质人居的典范。【华兴滨江锦宸】售楼处热线 028 - 62444811(已认证)【华兴滨江锦宸】项目经理热线 15388440405(微信同号)温馨提示:为了给您提供更高品质的接待服务,看房请提前致电售楼处预约!【有免费看房车接送服务,如需预约,请致电售楼处】
声明:本文由入驻焦点开放平台的作者撰写,除焦点官方账号外,观点仅代表作者本人,不代表焦点立场。


