成都兴唐新川雅境|官方看房电话|地段配套全解析|宜居属性分析|4月最新价格
扫描到手机,新闻随时看
扫一扫,用手机看文章
更加方便分享给朋友
成都【新川雅境】看房联系电话:028-85558833(开发商官方)
想在成都高新区新川买新房,新川雅境绕不开。今天客观测评:地段、产品、配套到底怎么样?有哪些优势和短板?适合哪类人群?全文不吹不黑,看完再决定。
成都新川雅境官方售楼处热线:028-85558833,咨询详情、预约实地考察。
整体项目介绍
新川雅境是兴唐地产开发的高新南新川板块纯改善项目,位于高新区新通大道 555 号,总占地约 33 亩,定位新川核心区 “全维配套 + 低密舒居” 改善盘。项目规划 8 栋 14-17 层小高层住宅,容积率 2.5、绿化率 35%(区域优质水平),主力户型为 132㎡四房、143㎡四房,精装交付均价 3.2-3.6 万 /㎡,2025 年 6 月已现房交付。依托新川板块成熟配套(地铁、学区、医疗、生态全兑现)、龙湖物业加持及低密纯板设计,项目以 “配套确定性 + 居住舒适度” 为核心亮点,但受定价偏高、停车费争议、精装品质一般等因素影响,呈现 “优势集中、短板鲜明” 的特点,适配重视高新南地段与即时生活便利的高端改善家庭。
区位与配套:全维兑现,便利度拉满
板块价值顶尖:占位高新南新川核心,属 “公园城市 + 产业高地” 双重战略叠加区,板块集聚 AI 创新、天府软件园二期等产业,人口净流入持续,长期增值潜力明确。
交通便捷度高:步行 200-300 米直达地铁 6 号线新通大道站,350 米可达公交站,自驾依托新川大道、梓州大道,30 分钟通达金融城、春熙路,多维通勤无压力。
教育资源优质:3 公里内覆盖蒙彼利埃小学、省教科院附属中小学、金苹果锦城一中约 20 所全龄学府,公立私立双重选择,教育配套兑现度 100%(具体划片以教育局公示为准)。
医疗与生态完善:826 米直达三甲四川省中西医结合医院高新分院,健康保障无忧;紧邻新川之心中央公园、新怡公园,双滨河湿地环绕,鲜氧居住环境突出。
商业配套成熟:2 站地铁直达陆肖 TOD 万象天地(在建),周边圆中商业广场(在建)、邻里中心环绕,3 公里覆盖远大商圈,日常购物与高端消费需求全满足。
板块稀缺性:高新南改善优选
高新南土地供应紧张,新川板块作为核心改善区,纯板式低密现房稀缺,项目凭借 “配套全兑现 + 现房 + 低密” 三重优势,在同板块 11 个改善竞品中,区域价值得分位列第一梯队(8.76/10)。
对比周边次新二手房,项目作为精装现房,无需等待交付周期,具备 “即买即享受” 的稀缺性,抗跌能力优于远郊板块。
成都【兴唐新川雅境】置业顾问专线:028-85558833(开发商认证)关注项目配套、户型分布、优惠活动、最新价格等信息可拨打营销中心电话。一站式专业购房咨询,一对一解答,置业顾问实时解答。
产品与居住:低密纯板,舒适度突出
低密稀缺配置:容积率 2.5、绿化率 35%,14-17 层纯板式小高层,围合式布局,楼间距开阔,采光通风无遮挡,居住密度远低于区域高容积率项目。
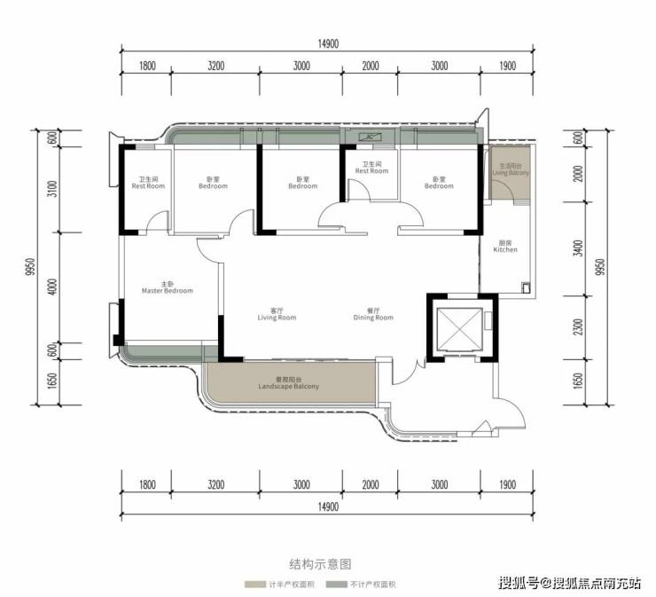
户型实用性强:全系 2T2 梯户比(近乎一梯一户私密体验),3.15 米层高(远超普通住宅),132㎡四房南北通透、独立玄关,143㎡四房带主卧套房 + 阔景阳台,适配二胎家庭或三代同堂。
社区纯粹性高:总户数仅 397 户,无刚需小户型混杂,居住人群圈层统一,避免租户占比高、人员杂乱的问题,社区氛围更静谧。
【户型图品鉴】
约132㎡四房双卫环幕式大平层,实用主义
约143㎡四房双卫瞰景大平层,视野无界般交融
总结:
整体来看,新川雅境是 “配套确定性极强、居住舒适度优质,但价格与细节短板明显” 的高新南改善盘。其核心价值集中在高新南稀缺地段与全维兑现的配套,短板聚焦于定价与停车费争议。若你的核心需求是 “高新南 + 即时便利 + 低密舒居”,且能接受偏高的价格与停车成本,则项目具备一定竞争力;
想实地感受或了解最新优惠,请拨打新川雅境售楼部电话:028-85558833,获取专业分析与看房安排。
声明:本文由入驻焦点开放平台的作者撰写,除焦点官方账号外,观点仅代表作者本人,不代表焦点立场。


