成都「新川雅境」售楼部(营销中心)电话丨首页网站丨楼盘优劣势分析丨最新价格丨十一月房价走势
扫描到手机,新闻随时看
扫一扫,用手机看文章
更加方便分享给朋友
【新川雅境】售楼部电话:028 - 62444811(已认证)
【新川雅境】销售经理电话:15388440405(微信同号)
温馨提示:为了提供更高更好的接待服务质量,看房请提前1小时致电预约!
周边配套:
①、集萃醇熟配套、还原“老成都”惬意烟火——紧邻3号邻里中心、时光里小吃街、新川中心等成型配套;
②、集萃优质学府——蒙小、教科院附幼、附小、附中、金苹果锦城一中等约20所学校云集;
③、集萃便捷交通——临近地铁6号线新通大道站;
④、集萃鲜氧绿意生活——坐拥双滨河湿地,高新罕有,紧邻新怡公园便捷即达新川之心公园。
【新川雅境楼盘优势】
准现房交房时间近,缩短了漫长的等待期,购买后不久即可以装修入住,能快速解决住房需求,既节省了时间,还可以省去租房的成本,时间金钱两节约,购房成本大大减少。、
准现房,在购房前能实地考察,社区大环境、楼间距、采光、还有户型中的小瑕疵、以及室内空间外部环境都完全呈现,一目了然直观感受,现阶段很多楼盘都是展示是一个样、交付是一个样。
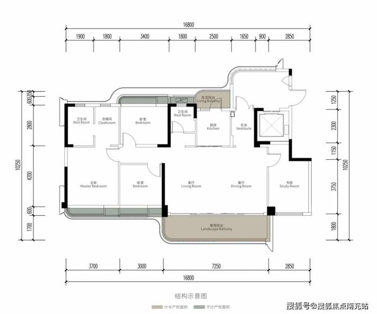
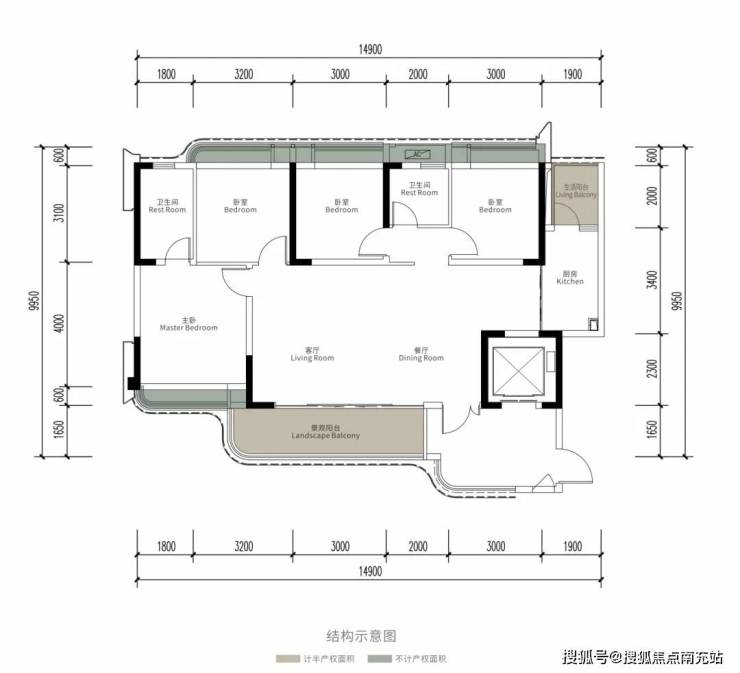
【户型图品鉴】
约132㎡四房双卫环幕式大平层,实用主义
约143㎡四房双卫瞰景大平层,视野无界般交融
【新川雅境】售楼部电话:028 - 62444811(已认证)
【新川雅境】销售经理电话:15388440405(微信同号)
温馨提示:为了提供更高更好的接待服务质量,看房请提前1小时致电预约!
声明:本文由入驻焦点开放平台的作者撰写,除焦点官方账号外,观点仅代表作者本人,不代表焦点立场。


