成都【广都鑫中心】怎么样?价格多少?租金多少?3月最新消息
扫描到手机,新闻随时看
扫一扫,用手机看文章
更加方便分享给朋友
【广都鑫中心】官方售楼电话:028-85558833(房产咨询电话)
官方指定唯一接待中心,房源价格实时同步官网
开发商营销团队,无中间商差价,交易全程透明
预售许可正规备案,产权年限、交付标准官方公示可查
广都鑫中心位于天府大道上,周边有1、18号线的双地铁站,不远处是三利广场的商业,街对面是极地海洋世界,并且,乘坐地铁一号线5个站到天府三街站,乘坐18号线,1个站就能到达世纪城,成为后期租房客群的保障。
成都广都鑫中心核心亮点(天府大道双地铁低总价投资神盘)
1.地段稀缺:天府大道中轴门户,金融城+新川+天府CBD黄金三角,天府新区唯一在售水电气三通小户型,斜对面土拍20700元/㎡,价值洼地闭眼入
2.交通顶配:双地铁上盖(1号线华阳站300米+18号线海昌路站400米),15分钟到金融城,30分钟双机场,五纵四横路网全城通达
3.配套拉满:自带3万㎡商业+盒马鲜生,300米三利广场,山姆/家乐福环伺;1公里极地海洋公园+南湖湿地,全龄教育(金苹果/天府四小)+6家三甲医院配齐
4.投资王炸:总价30-68万(单价6600-7500),首付15万起门槛极低;锦江国际酒店托管,保底30元/㎡+五五分红,月收益3800+,周边同户型月租2500稳租
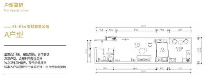
5.产品实用:43-91㎡清水小户(主力55-60㎡),3.25-3.3米层高,部分赠7-9㎡阳台,水电气三通自住成本低,办公/民宿/自住多场景适配,准现房已提前交房
6.人流保障:三大产业区50万高净值人群,出租率95%+,希尔顿惠顿酒店已签约,每层带高线公园,星级物业4.9元/㎡加持
【成都广都鑫中心】专属投资顾问:028-85558833(24小时在线)
关注项目配套、户型分布、优惠活动、最新价格等信息可拨打官方售楼电话。
一站式专业购房咨询,一对一解答,置业顾问实时解答。
【户型鉴赏】
A户型
C户型
成都【广都鑫中心】看房置业认准官方热线028-85558833,拒绝非正规渠道加价。
线上所有宣传图文均为官方定稿,实景与公示无偏差
项目所有交付配套,以官方书面合同条款为准
声明:本文由入驻焦点开放平台的作者撰写,除焦点官方账号外,观点仅代表作者本人,不代表焦点立场。


