成都「天府半岛」购房热线正式启动-全景户型详解+实景探访测评-尊享免费看房专车服务-8月限时特惠折扣重磅来袭
扫描到手机,新闻随时看
扫一扫,用手机看文章
更加方便分享给朋友
【天府半岛】售楼部电话:028 - 84720058(已认证)【天府半岛】项目经理电话:13281850333(微信同号)在此温馨提示:若您计划看房,为了能享受到更优质、更贴心的接待服务,请至少提前1小时致电售楼处进行预约!时隔一年之久,备受瞩目的神盘天府半岛的高层房源终于再度登场!就在刚刚,天府半岛七期77#顺利取得预售许可证。此次推出的房源建面约在120 - 140㎡之间,精装单价大约为1.3w - 1.5w元/㎡,总计有124套房源
。不知有多少人还记得去年3月那场令人瞩目的摇号盛景。当时推出180套准现房,精装单价1.24万/㎡起,吸引了约5.2w组家庭参与摇号,那超低的中签率,甚至比“985”“211”高校的录取率还要低。不过自那之后,该项目虽历经三次取证,然而推出的均是大平层和联排产品,建面约235㎡及以上,购房门槛高达330w,显然与刚需、刚改群体的需求不匹配。此次推出的房源依然延续了熟悉的风格,但存在一个明显不同之处,即本批次房源为期房,预计2026年下半年交付(具体交付时间以售楼部最终确认为准)
。那么,这样的天府半岛房源究竟值不值得购买呢?今天,就大家比较关注的几个问题,一起来探讨一番。关于周边配套,在此就不多做赘述了,感兴趣的小伙伴可以查看往期踩盘链接:恒大天府半岛已取证!总价约114万起,1124套房源!接下来重点说说此次房源的产品优势。了解天府半岛的朋友应该清楚,7期产品大多是2梯5户、3梯6户的48F超高层,建面约90 - 120㎡的套三、套四户型,整体偏刚需。而本批次房源作为7期最后4栋住宅,产品实现了较大升级,居住舒适度显著提升。依据去年天新官网公布的规划,7期77 - 80#楼由原本的39 - 48F统一调整为32层,楼栋高度调整至99.6m,同时每栋楼增加了一台电梯,升级为3梯4户的配置
。不仅如此,这四栋住宅取消了底商规划,首层架空打造出约993㎡的公共活动空间,相比之前有了大幅提升
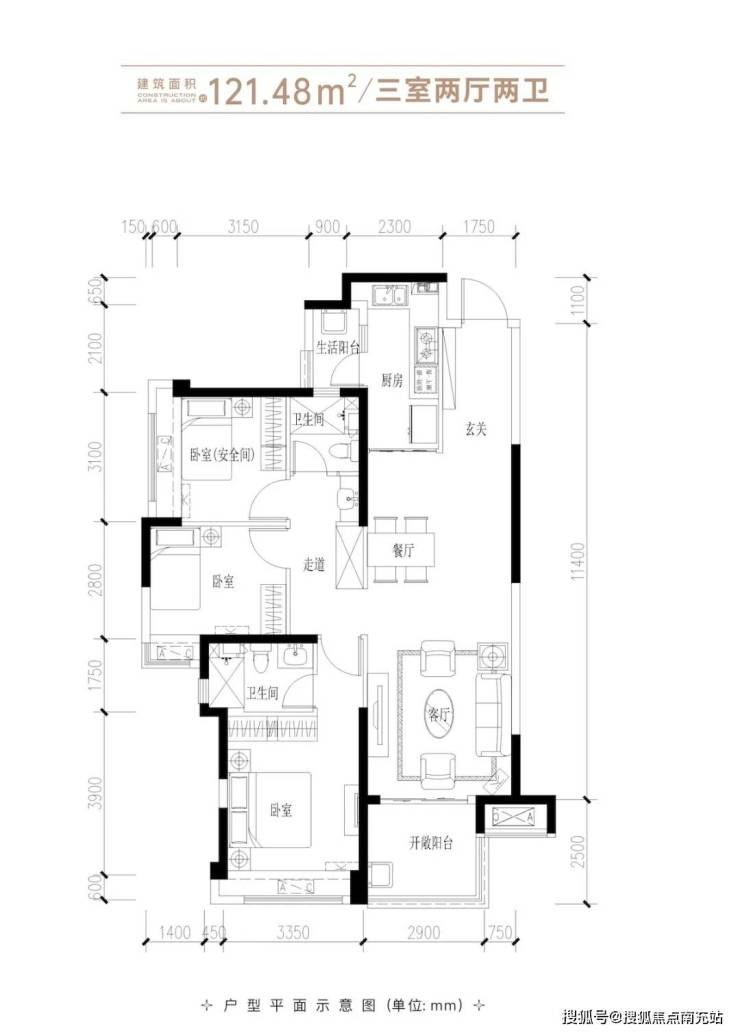
。此外,本批次房源仅有建面约121㎡套三双卫、142㎡套四双卫两个主力户型,更侧重于刚改、改善需求,户型相对纯粹。值得一提的是,4栋住宅所有户型的主采光面均朝向西南方向,中高楼层住户能够直接俯瞰府河,视野极为开阔
。不过在户型设计方面,与之前相比变化不算太大。以121户型为例,采用竖厅设计,进深超过10m,可开间仅有6m出头,阳台约2.9m;两个次卧面积均不足10㎡,整体空间布局较为紧凑,几乎没有太多浪费空间
。该户型功能性倒是足够,但在尺度感方面表现一般。价格方面,去年3月,6期高层精装单价约1.24w元/㎡起,此次本批次精装单价1.3w - 1.5w元/㎡,价格差异并不明显
。目前,与7期紧挨着的三期,今年以来二手房成交价在1.4w - 1.8w元/㎡;四期的成交价稍高一些,在1.6w - 1.8w元/㎡。 【天府半岛】售楼部电话:028 - 84720058(已认证)【天府半岛】项目经理电话:13281850333(微信同号)温馨提示:为了给您提供更高更好的接待服务质量,看房请至少提前1小时致电售楼处预约!!!
声明:本文由入驻焦点开放平台的作者撰写,除焦点官方账号外,观点仅代表作者本人,不代表焦点立场。


