成都幸福桥TOD幸福拾光售楼部电话-楼盘测评-幸福拾光值不值得买
扫描到手机,新闻随时看
扫一扫,用手机看文章
更加方便分享给朋友
在蓬勃发展的成都,每一座新兴的城市综合体,都承载着人们对美好生活的向往与追求。今天,让我们一同走进位于成都金牛区北部新城板块的明星项目——幸福桥TOD幸福拾光。它作为一个融合了生态、商业、办公、教育、健康以及服务等多元功能的城市综合体,不仅是成都市首批14个TOD示范项目之一,更是未来宜居生活的崭新典范。【幸福拾光】售楼处热线 028 84720058(已认证)【幸福拾光】项目经理热线 13281850333(微信同号)温馨提示:为了给您提供更为优质、贴心的接待服务,若您有看房计划,请提前致电售楼处进行预约!并且,项目提供免费看房车接送服务,若您有此需求,同样请致电售楼处预约。成都幸福桥TOD幸福拾光:宜居新标杆,未来生活新选择金牛区幸福桥TOD清水准现房正在热售。其在售面积方面,二期为125 - 135 - 143 - 180㎡;三期为108 - 110 - 112 - 134 - 143㎡。单价16000元起,中间楼层均价17500元。
【项目基本信息】该项目由成都轨道交通集团倾力开发,物业公司为成都轨道万科物业有限公司。项目总占地700亩,其中二期占地64亩,三期占地74亩。项目坐落于金牛区北部新城 - 地铁5#幸福桥站,地理位置得天独厚。从楼层规划来看,二期总层高为12 - 17F(一楼设有4.5米架空层,无住宅),三期总层高为9 - 17F。容积率为2.0,营造出舒适的居住空间。绿化率方面,二期高达52%,三期为35%,让生活与自然亲密接触。梯户比上,二期是2T2,三期为1T2户和2T3户。物业费为3.8元,停车位配比二期是1:1.6,三期是1:1.2。交房时间上,二期预计在2024年8月交付,三期预计于2025年10月交房。总户数二期为624户,三期为503户。交付标准为清水洋房,公摊二期在17 - 20%,三期在16 - 19%。
【周边配套】幸福桥TOD幸福拾光项目总占地近500亩,规划面积达69356平米,绿化率高达40.00%,立志打造功能齐全的城市大盘。这里的住宅品质上乘,同时还规划了丰富多样的商业、办公、教育、健康等设施,全方位满足居民的生活需求。商业配套上,项目周边商业氛围日益浓厚,未来将有大型购物中心、特色商业街等商业设施陆续入驻,为居民带来便捷的购物体验,满足日常生活所需。教育资源方面,项目周边教育资源十分丰富,覆盖幼儿园、小学、中学等全龄段教育资源,孩子在家门口就能享受到优质教育,为孩子的成长和学习提供有力保障。健康服务领域,项目内精心规划了医疗健康中心,能够为居民提供全方位的医疗服务,时刻守护居民的健康生活。
地理位置优越,交通便捷幸福桥TOD幸福拾光项目位于金牛区天回镇街道天泽路560号,紧邻地铁5号线幸福桥站。如此优越的地理位置,让出行变得极为便利。无论是日常上下班通勤,还是周末外出游玩,居民都能轻松实现“地铁 + 公交 + 步行”的绿色出行模式,极大地节约了时间成本,显著提升了生活品质。
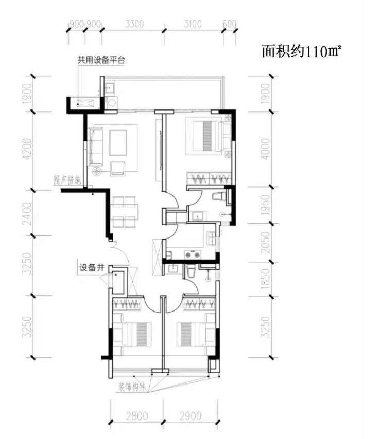
【户型图鉴赏】
幸福桥TOD幸福拾光不仅是一处居住之所,更是一个充满活力与希望的生活社区。在这里,您能够享受到便捷的交通、丰富的商业配套、优质的教育资源以及健康舒适的生活环境。倘若您正在寻觅一个理想家园,那么幸福桥TOD幸福拾光无疑是一个值得认真考量的选择。让我们共同期待这个美好家园的完美建成与交付!【幸福拾光】售楼处热线 028 84720058(已认证)【幸福拾光】项目经理热线 13281850333(微信同号)温馨提示:为了给您提供更高更好的接待服务质量,看房请提前致电售楼处预约!【有免费看房车接送服务,如需预约,请致电售楼处】
声明:本文由入驻焦点开放平台的作者撰写,除焦点官方账号外,观点仅代表作者本人,不代表焦点立场。


