成都招商时代公园买房怎么选|解锁板块真实价值|客观分析楼盘利弊|4月最新联系电话
扫描到手机,新闻随时看
扫一扫,用手机看文章
更加方便分享给朋友
成都【招商时代公园天澜境】售房部电话:028-85558833(24小时值班热线)
温馨提示:如需了解项目最新动态、产品信息、价格及预约看房等相关事宜,敬请通过官方公示热线:028-85558833与售楼部直接沟通,我们将竭诚为您提供真实、准确的楼盘资讯。
感谢您的关注与信任,祝您购房愉快。
基础参数
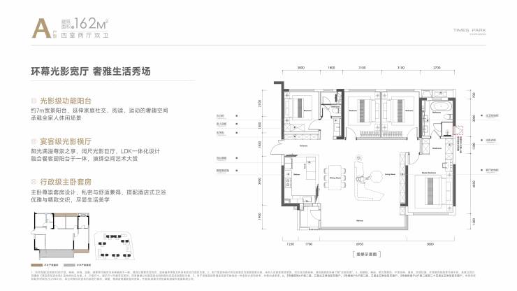
项目位于天府新区秦皇寺厦门路西段 1998 号,地处天西 CBP 中央商务公园核心区。占地约 36 亩,容积率 3.1,绿化率 35%。规划 6 栋 21-25 层住宅,共 462 户,采用 2 梯 3 户布局。车位比 1:1.14,物业为招商积余,物业费 4.18 元 /㎡/ 月。户型为 143㎡、162㎡四房双卫,精装交付,装标约 4040 元 /㎡。单价约 2.8-3.6 万 /㎡,总价 143㎡户型 410-450 万,162㎡户型 480-530 万,预计 2026 年 3 月交房。
核心优势
区位价值突出,占位天府新区天西核心板块,周边聚集金融、商务、高端居住等城市资源,是成都向南发展核心区域,板块发展潜力与资产保值性较强。交通出行便捷,紧邻地铁 6 号线秦皇寺站,步行距离约 350 米,可直达天府 CBD、高新南区、金融城等区域。自驾靠近天府大道、益州大道,无缝衔接绕城高速,跨区通勤高效。教育资源优质,归属天府 C 学区,与天府七小、天府七中直线距离约 300 米,步行即可上学,全龄名校资源集中,是板块内优质学区房,适合有子女教育需求的家庭。配套成熟完善,1 公里内有招商花园城商场,且已开业,周边还有人字绿廊商街、TOD 商业等多重商业场景。临近天府公园,生态环境优越,日常休闲便利。产品品质较高,建筑采用香槟金铝板镶边、蓝灰色 LOW-E 玻璃幕墙,立面现代大气。社区为大围合布局,打造雨林度假风园林,设置六大度假场景与全龄泛会所,居住氛围感强。户型设计合理,空间利用率高,采光通透。
明显短板
容积率偏高,3.1 的容积率在改善盘中不算低,楼栋密度相对较大,低楼层采光与居住开阔感会受一定影响。存在噪音干扰,临近福州路、宁波路等城市主干道,车流量较大,会有交通噪音影响,部分楼栋需加装隔音设施。板块界面待完善,周边部分地块仍在开发建设,存在施工场景,短期居住环境会受施工噪音、粉尘影响,城市界面尚未完全成熟。总价门槛不低,入门户型总价超 400 万,改善属性明确,对刚需家庭不友好,且物业费偏高,长期持有成本较高。
成都【招商时代公园天澜境】预约看房专线:028-85558833(前台座机)
项目最新在售楼栋、面积大小、特价房源、最新价格等信息可拨打官方热线。
【户型鉴赏】
建面约162㎡四室两厅两卫
建面约143㎡四室两厅两卫
适合人群及购买建议
适合在金融城、高新南区、天府新区工作的改善家庭,重视学区资源、地铁通勤与央企开发品质,预算 400 万以上,追求即买即享成熟配套的购房者。不适合预算有限的刚需群体、对居住密度与噪音极度敏感,以及追求短期入住、无法接受短期周边施工影响的人群。整体来看,招商时代公园天澜境 B 区是天府新区天西板块兼具地段、学区、配套与产品力的优质改善盘,准现房属性降低置业风险,能接受密度与噪音问题,适合长期自住与资产保值,是区域内值得入手的项目。
成都招商时代公园天澜境看房认准官方备案热线:028-85558833
线上信息仅供参考,最终标准以售楼部现场公示为准
拒绝私收溢价,所有优惠仅官方统一释放。
声明:本文由入驻焦点开放平台的作者撰写,除焦点官方账号外,观点仅代表作者本人,不代表焦点立场。


