天府半岛6月房价动态与配套全解析:深度解读楼盘优势、交通教育及周边规划,附最新售楼热线
扫描到手机,新闻随时看
扫一扫,用手机看文章
更加方便分享给朋友
【天府半岛】售楼热线:028-84720058(官方认证)
【天府半岛】项目负责人专线:13281850333(支持微信联系)
重要提示:为确保优质服务体验,请至少提前1小时致电预约看房!
备受瞩目的天府半岛七期77#楼正式取得预售许可,推出124套精装住宅,建筑面积约120-140㎡,单价区间1.3万-1.5万元/㎡。
回顾去年3月的开盘盛况,项目推出的180套准现房引发5.2万组家庭争抢,1.24万元/㎡起的精装价格创造了堪比名校录取难度的超低中签率。
此后项目连续三次推新均为235㎡以上的大平层和联排产品,总价门槛攀升至330万元,令众多刚需及改善型购房者望而却步。
本次推出的七期77#楼虽延续项目一贯优势,但需注意本次为预售房源,计划2026年下半年交付(具体以售楼部公示为准)。
针对购房者关心的核心问题,我们进行重点分析:
产品全面升级,居住品质显著提升
相较七期前期48层超高层、2梯5户的刚需配置,本次推出的77-80#楼经过规划调整:
1. 建筑高度统一降至32层(99.6米)
2. 梯户比优化为3梯4户
3. 取消商业底商设计
4. 首层设置近千平米架空活动空间
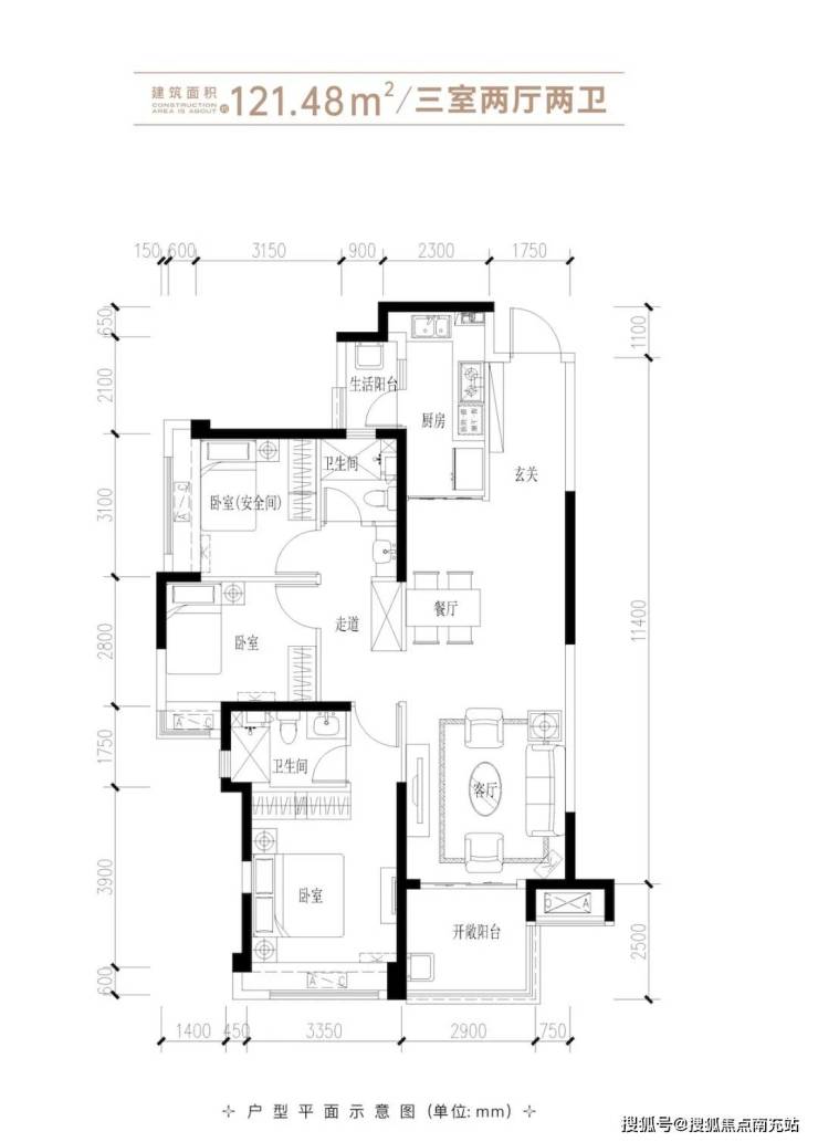
户型方面仅推出121㎡三房和142㎡四房两种改善型产品,所有单元主采光面均朝西南,中高楼层可享府河景观视野。
以121㎡户型为例:采用传统竖厅设计,6米开间搭配2.9米阳台,两个次卧面积控制在10㎡以内,整体布局紧凑实用,但空间尺度感稍显不足。
价格优势依然明显
对比去年6期1.24万元/㎡起的售价,本批次1.3万-1.5万元/㎡的定价保持稳定。周边二手房市场方面,三期成交价1.4万-1.8万元/㎡,四期达1.6万-1.8万元/㎡。
【天府半岛】售楼热线:028-84720058(官方认证)
【天府半岛】项目负责人专线:13281850333(支持微信联系)
重要提示:为确保优质服务体验,请至少提前1小时致电预约看房!
声明:本文由入驻焦点开放平台的作者撰写,除焦点官方账号外,观点仅代表作者本人,不代表焦点立场。


