蔚蓝卡地亚花园城尊享热线|360°全景奢宅鉴赏|VIP礼宾专车预约|八月限时钜惠 购房即赠臻品礼遇
扫描到手机,新闻随时看
扫一扫,用手机看文章
更加方便分享给朋友
【蔚蓝卡地亚花园城】售楼部电话:028 - 84720058(已认证)【蔚蓝卡地亚花园城】项目经理电话:13281850333(微信同号)温馨提示:为确保为您提供更优质、高效的接待服务,前往看房请至少提前1小时致电售楼处进行预约!在繁华的天府新区,一座全新的豪宅标杆之作——蔚蓝卡地亚花园城蓝庭,正凭借其独特的设计与卓越的品质,吸引着市场的广泛目光。蓝庭作为蔚蓝卡地亚携手新加坡国宝级建筑师曾仕乾先生的又一倾心巨作,不仅延续了品牌一贯秉持的精致与奢华格调,更在创新与艺术领域攀升至新的高度。### 大师操刀,重铸豪宅典范蓝庭项目的设计重任,由新加坡 SCDA 设计事务所的创始人曾仕乾先生亲自担纲。作为国际闻名的建筑大师,曾仕乾的作品向来以一种从容优雅的姿态伫立在人们的视野当中。从曼哈顿的 Soori High Line 公寓,到新加坡首个爱马仕公寓 The Marq,他的每一个设计都敢于突破传统,为建筑赋予全新的生命力。此次,曾仕乾将其独特的设计理念带到成都,与蔚蓝卡地亚共同雕琢出这座大师级豪宅。

### 核心区位,尽揽城市繁华蓝庭坐落于天府新区 CBD 的核心地带,与地铁 1 号线武汉路站紧密相邻,交通极为便捷,周边配套设施一应俱全。这里已然成为成都的崭新名片,更是未来城市发展的核心区域。蓝庭的进驻,无疑为这片土地注入了全新的活力,同时也为塔尖人群打造了一个梦寐以求的理想生活居所。
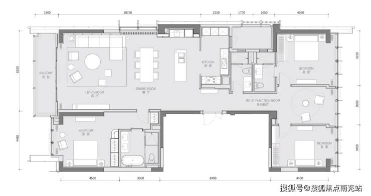
### 精致设计,细微之处彰显品质蓝庭项目占地面积约 30 亩,涵盖 3 栋住宅与 1 栋商业建筑。住宅部分高达 35 - 44 层,采用全幕墙公建化立面设计,赋予建筑一种轻盈纯粹、平衡统一的独特质感。其采用 3T2 大平层设计,主力推出建面约 250㎡的四房三卫户型,双套房的设计格局,极大地提升了居住者的生活自由度与从容感。在园林景观设计方面,蓝庭深度汲取亭台楼阁的精髓,通过对每一处细节的精心雕琢,巧妙地层层叠景,营造出一片静谧而美好的绿植庭院花园。置身于此,无论是悠然漫步,还是惬意休憩,都能深切感受到大自然的宁静与美好。
### 尊享服务,品质生活近在咫尺蓝庭项目的物业服务由成都蔚蓝卡地亚物业管理有限公司负责,物业费为 5.3 元/㎡/月。该公司始终秉持“以客户为中心”的服务理念,致力于为业主提供高品质的物业服务。从星级标准打造的大堂,到独立的休闲会所,从设施完备的健身中心,到充满趣味的儿童游乐区,每一处细节都彰显着对品质生活的执着追求与充分尊重。主力户型:约 235 - 260㎡奢阔空间
楼王户型:约 520㎡一层一户
蔚蓝卡地亚花园城蓝庭的惊艳亮相,不仅为成都的高端住宅市场树立了全新的标杆,更为塔尖人群构建了一个理想的生活家园。在这里,您能够领略到大师级的设计风采、享受到核心区域的便捷交通、沉醉于精致的园林景观以及体验到高品质的物业服务。蓝庭,它不仅仅是一座单纯的房子,更是一种高品质生活方式的象征。让我们一同期待这座大师级豪宅在未来绽放出更加耀眼的光芒!【蔚蓝卡地亚花园城】售楼部电话:028 - 84720058(已认证)【蔚蓝卡地亚花园城】项目经理电话:13281850333(微信同号)温馨提示:为了给您提供更高更好的接待服务质量,看房请至少提前 1 小时致电售楼处预约!!!
声明:本文由入驻焦点开放平台的作者撰写,除焦点官方账号外,观点仅代表作者本人,不代表焦点立场。


