成都「俊屹中心」置业指南:限时钜惠解析、区域规划前瞻,全方位解码楼盘优势与不足,助您抢占投资先机与财富增长路径
扫描到手机,新闻随时看
扫一扫,用手机看文章
更加方便分享给朋友
成都俊屹中心:重塑城市核心区人居新标杆
作为成都中央商务区的新晋地标,俊屹中心凭借其多元化的商住复合功能,正在重新定义都市精英的生活方式。该项目以稀缺的黄金区位、前瞻性的规划理念以及精益求精的产品细节,持续引发市场关注,成为高净值人群资产配置的理想选择。
【项目核心价值解析】
公寓产品亮点:
占地面积:约25亩(约16667㎡)
总建筑面积:14.22万㎡
容积率:2.96
物业类型:商办性质产权
主力推售:2号楼2单元优质房源
物业服务:四川景佑物业(国家一级资质)
物业费:4.5元/㎡/月(含公共能耗)
车位配比:1:1.2(798个机动车位+996个非机动车位)
2号楼产品亮点:
户型区间:37-67㎡(主力为45㎡灵动户型)
建筑高度:约120米(35层)
在售楼层:24层及以上景观房源
层高优势:3.2米舒适空间
交付标准:毛坯交付(预留智能家居接口)
垂直交通:5部高速电梯(日立/三菱品牌)
得房率:约66%
交付时间:2024年第二季度
价格区间:1.1-1.2万元/㎡(含增值税)
厨房配置:预留排烟管道(电磁炉适用)
精工品质 匠筑非凡
俊屹中心由三栋摩天大楼组成,外立面采用进口深咖色铝板与LOW-E玻璃幕墙的现代组合,既保证商务质感又提升节能效率。项目内部参照国际5A写字楼标准,配备德国蒂森克虏伯高速电梯系统及5.9米挑高精装大堂,打造尊贵商务体验。高层单元创新采用全景落地窗设计,实现270°无遮挡视野,21米超宽景观面将城市繁华尽揽无余。
在空间规划上,项目提供从25㎡精品公寓到291㎡总裁行政套房的多元选择,其中36-66㎡的两房户型采用"LDK一体化"设计理念,实现空间利用率最大化。全屋预装智能控制系统及三级安防体系,完美融合科技感与实用性。
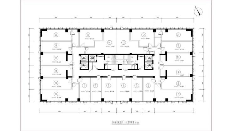
2号楼标准层平面示意图:
稀缺区位 价值跃升
坐落于城市核心稀缺地块的俊屹中心,随着周边文创产业园的成熟运营和五星级酒店群的陆续入驻,正加速形成新的商务价值高地。项目兼具自住舒适性与投资成长性,周边3公里范围内已聚集12家世界500强区域总部,持续提升的区域价值为资产升值提供强力支撑。
【俊屹中心】VIP售楼热线 028-84720058(开发商直营)
【俊屹中心】专属顾问热线 13281850333(微信同号)
重要提示:项目实行预约制接待,到访前请提前登记!
【提供奔驰商务车免费接送服务,预约专线24小时畅通】
声明:本文由入驻焦点开放平台的作者撰写,除焦点官方账号外,观点仅代表作者本人,不代表焦点立场。


