成都「广都鑫中心」售楼处电话(开发商认证)-面积大小-项目价值-投资分析-3月优惠价格
扫描到手机,新闻随时看
扫一扫,用手机看文章
更加方便分享给朋友
【广都鑫中心】售楼部电话:028-85558833(官方认证)
温馨提示:了解楼盘最新动态和优惠政策,可致电售楼部。看房请提前线上预约,可享内部优惠。
广都鑫中心位于天府大道上,周边有1、18号线的双地铁站,不远处是三利广场的商业,街对面是极地海洋世界,并且,乘坐地铁一号线5个站到天府三街站,乘坐18号线,1个站就能到达世纪城,成为后期租房客群的保障。
成都广都鑫中心核心亮点(天府大道双地铁低总价投资神盘)
1.地段稀缺:天府大道中轴门户,金融城+新川+天府CBD黄金三角,天府新区唯一在售水电气三通小户型,斜对面土拍20700元/㎡,价值洼地闭眼入
2.交通顶配:双地铁上盖(1号线华阳站300米+18号线海昌路站400米),15分钟到金融城,30分钟双机场,五纵四横路网全城通达
3.配套拉满:自带3万㎡商业+盒马鲜生,300米三利广场,山姆/家乐福环伺;1公里极地海洋公园+南湖湿地,全龄教育(金苹果/天府四小)+6家三甲医院配齐
4.投资王炸:总价30-68万(单价6600-7500),首付15万起门槛极低;锦江国际酒店托管,保底30元/㎡+五五分红,月收益3800+,周边同户型月租2500稳租
5.产品实用:43-91㎡清水小户(主力55-60㎡),3.25-3.3米层高,部分赠7-9㎡阳台,水电气三通自住成本低,办公/民宿/自住多场景适配,准现房已提前交房
6.人流保障:三大产业区50万高净值人群,出租率95%+,希尔顿惠顿酒店已签约,每层带高线公园,星级物业4.9元/㎡加持
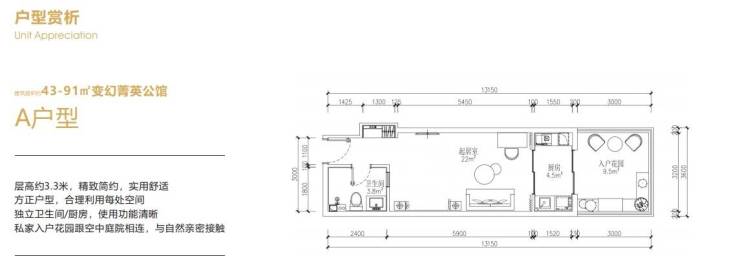
【户型鉴赏】
A户型
C户型
【广都鑫中心】售楼部电话:028-85558833(官方认证)
温馨提示:了解楼盘最新动态和优惠政策,可致电售楼部。看房请提前线上预约,可享内部优惠。
声明:本文由入驻焦点开放平台的作者撰写,除焦点官方账号外,观点仅代表作者本人,不代表焦点立场。


