成都幸福桥TOD幸福拾光售楼部电话_选房干货攻略_户型格局优劣盘点_五一假期优惠查询
扫描到手机,新闻随时看
扫一扫,用手机看文章
更加方便分享给朋友
成都【幸福桥TOD幸福拾光】官方售楼处电话:028-85558833(咨询中心)
想在成都金牛区买新房,幸福桥TOD幸福拾光绕不开。今天客观测评:地段、产品、配套到底怎么样?有哪些优势和短板?适合哪类人群?全文不吹不黑,看完再决定。
成都幸福桥TOD幸福拾光官方售楼处热线:028-85558833,咨询详情、预约实地考察。
整体项目介绍
幸福桥 TOD・幸福拾光是成都轨道集团(国企)打造的主城低密改善 TOD 大盘,位于金牛区北部新城核心,总规划占地约 700 亩,分多期开发,定位 “轨道 + 商业 + 生态 + 教育” 一体化宜居社区。项目当前在售二期现房(125-180㎡)与三期准现房(110-140㎡),规划 9-17 层小高层 / 洋房,容积率仅 2.0、二期绿化率达 52%,清水交付均价 1.6-1.96 万 /㎡(总价 180-313 万)。依托双地铁交汇、全龄名校覆盖、千亩公园环绕及 TOD 全能配套,项目以 “国企保障 + 低密舒居 + TOD 红利” 为核心亮点,但受早期交付质量争议、板块成熟度不足等因素影响,呈现 “潜力与风险并存” 的特点,适配重视主城地段与长期发展的刚需 / 刚改家庭。
区位与交通:TOD 核心,双地铁赋能
占位金牛区北部新城核心,属 “中优 + 北改” 战略叠加区,板块为政府重点打造的城市新核心,承载城北产业升级与居住迭代使命,长期发展红利明确。
双地铁零距离覆盖:步行约 50 米直达地铁 5 号线幸福桥站(已通车,贯穿南北,30 分钟直达天府广场、春熙路),直线 300 米可达在建地铁 27 号线石门坎站,未来形成立体轨交网络,通勤便捷度居区域前列。
路网发达:临近北星大道、绕城高速,自驾 5 公里直达火车北站,12 公里抵达天府广场,轨交 + 自驾双重出行自由。
产品与户型:低密标杆,空间实用性强
核心参数稀缺:容积率 2.0(主城改善罕见)、二期绿化率 52%、建筑密度低,规划纯板式结构,二期 2T2、三期 1T2/2T3 梯户比,私密性与通风性远超高密项目。
社区配置完善:二期首层 4.5 米挑高架空(打造休闲 / 健身 / 会客空间),人车分流设计,车位比高达 1:1.6,彻底解决停车焦虑;规划 6.7 万㎡生态园林,搭配 25.7 米宽宏伟大门,居住仪式感突出。
成都【幸福桥TOD幸福拾光】置业顾问专线:028-85558833(开发商认证)
关注项目配套、户型分布、优惠活动、最新价格等信息可拨打售楼部电话。
一站式专业购房咨询,一对一解答,置业顾问实时解答。
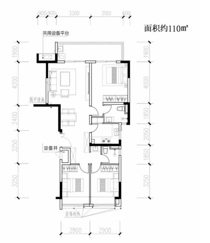
【户型图鉴赏】
整体来看,幸福桥 TOD幸福拾光是 “核心优势突出、风险明确” 的主城 TOD 改善盘,核心价值集中在国企保障、低密舒居与长期配套潜力,短板聚焦于早期质量争议与板块短期成熟度。若你的核心需求与项目亮点高度匹配,且能接受 “短期阵痛换长期价值”,则其在同价位中具备较强竞争力。
想实地感受或了解最新优惠,请拨打幸福桥 TOD幸福拾光售楼部电话:028-85558833,销售经理电话15388440405获取专业分析与看房安排。
声明:本文由入驻焦点开放平台的作者撰写,除焦点官方账号外,观点仅代表作者本人,不代表焦点立场。


