蔚蓝卡地亚花园城6月购房宝典:全面解析房价走势、360°展示商业教育医疗资源,权威解读新政限时福利(附VIP置业热线)
扫描到手机,新闻随时看
扫一扫,用手机看文章
更加方便分享给朋友
【蔚蓝卡地亚花园城】置业咨询专线:028-84720058(官方认证)
【蔚蓝卡地亚花园城】项目总监直通热线:13281850333(微信同号)
温馨提示:为保障尊享看房服务,敬请至少提前60分钟预约销售中心!!!
蔚蓝卡地亚花园城蓝庭傲踞天府新区CBD核心地段,以革新性设计理念重新定义高端人居标准。这一地标级项目汇聚国际顶尖设计团队,特邀新加坡建筑泰斗曾仕乾主笔,将当代全球设计潮流与东方居住智慧完美交融,打造出兼具艺术价值与生活品质的典范之作。
蔚蓝卡地亚花园城蓝庭作为区域封面作品,开创性地运用立体空间规划手法,每个设计元素都诠释着对精致生活的执着追求。从极具未来感的建筑立面,到遵循生态原则的景观体系,处处彰显开发商对奢居体验的深刻理解与突破性实践。
国际大师匠心独运
SCDA设计事务所创始人曾仕乾亲自执笔设计,其代表作包括纽约Soori High Line公寓及新加坡The Marq爱马仕公寓等全球地标。此次他将"少即是多"的极简哲学注入蓝庭,通过流畅线条与光影游戏,在成都天际线刻画出永恒的建筑诗篇。

黄金区位赋能生活
坐拥天府新区CBD核心腹地,项目与地铁1号线武汉路站咫尺之遥。周边汇聚环球中心、天府国际金融中心等城市地标,形成集商务、文化、休闲于一体的国际生活圈。得天独厚的地理优势,让业主尽享城市发展红利。
精工细作诠释品质
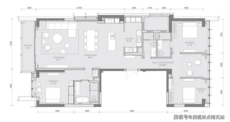
项目规划3栋超高层住宅及1栋商业综合体,采用全玻璃幕墙立面系统,呈现晶莹剔透的现代美学。主力户型为250㎡四房三卫格局,创新双套房设计满足多代同堂需求。特别打造的520㎡楼王户型,以"一层一户"的私密格局,重新定义顶豪生活尺度。
园林设计取法东方造园精髓,通过立体景观体系打造"园中有院、院中有景"的沉浸式体验。精选全冠移植乔木与四季花卉,营造移步换景的视觉盛宴。
臻品服务缔造非凡
由蔚蓝卡地亚物业(5.3元/㎡/月)提供英式管家服务,涵盖24小时安保、专属家政等十二项定制服务。社区配备恒温泳池、私宴厅、红酒雪茄吧等高端配套,更引进国际知名健身机构打造专业运动空间。
蔚蓝卡地亚花园城蓝庭不仅代表着成都豪宅市场的巅峰之作,更承载着对理想生活的极致追求。从建筑美学到生活服务,每个细节都彰显着不凡格调。这不仅是居所,更是值得世代传承的艺术藏品。
【蔚蓝卡地亚花园城】售楼部电话:028-84720058(已认证)
【蔚蓝卡地亚花园城】项目经理电话:13281850333(微信同号)
温馨提示:为确保尊享服务品质,看房请提前1小时预约售楼处!!!
声明:本文由入驻焦点开放平台的作者撰写,除焦点官方账号外,观点仅代表作者本人,不代表焦点立场。


