成都「茂业时代广场」售楼部电话-在售户型价格-周边配套详情
扫描到手机,新闻随时看
扫一扫,用手机看文章
更加方便分享给朋友
【茂业时代广场】相关热线信息:售楼部热线 028 84720058(已认证);客户经理热线 13281850333(微信同号)。在此温馨提醒您:若您有看房计划,为确保能享受到更优质、高效的接待服务,请提前致电售楼部进行预约。另外,项目还提供看房车接送服务,若您有此需求,同样请致电售楼部预约。### 【茂业•时代广场】项目详情 - **项目基本概况**:该项目由茂业集团倾力打造。项目占地面积达 22.3 亩,坐落于茂业•时代广场。其项目性质为公寓 LOFT,装修状况为清水交付。项目单价区间在 8800 - 12500 元,物业费为 4 元/㎡,梯户比为 2 梯 16 户或 2 梯 18 户,产权年限为 40 年,目前已是现房交付状态。项目面积段涵盖 34 - 55 平,销售楼层为 6、7 层。
- **项目价值亮点**:自带高人气的茂业百货,未来这里将成为航空港核心区域最具人气的城市商业综合体。投资方面优势显著,投资门槛较低,预估月租在 1800 - 2500 元,出租回报率可达 5%。周边常居住人群超 100 万,且项目拥有核心区域唯一在售的 LOFT 绝版户型,买一层送一层,性价比极高。
- **交通配套情况**:项目交通十分便捷,临近成都双流国际机场。距离地铁号线仅 1.3 公里,同时还有地铁号线正在施工中。此外,有多条公交线路可轻松通达全城,为出行提供了极大的便利。 - **商业配套情况**:商业配套丰富多样,已开业的茂业百货为区域带来了旺盛的人气。此外,还有花天锦地美食坊满足您的味蕾需求,韩国城购物广场为您提供购物休闲好去处,白家海鲜市场也增添了生活的烟火气。
- **教育配套情况**:周边拥有一套完善的 3 - 18 岁教育体系。其中包含金苹果圣菲幼稚园、西航港实验幼儿园等优质学前教育资源;小学阶段有川师附小、西航港小学等;中学有蓝港外国语实验学校、盐外、棠外等。同时,周边还有成都信息工程大学、川大江安校区、西南民族大学等 3 所本科院校,形成了充满活力的校园经济圈。周边以私立学校为主,就读学生家庭经济实力普遍较强,大部分学生选择走读或陪读。
- **户型鉴赏**: - **38㎡LOFT 套一(可变套二)**:空间设计巧妙,满足多样居住需求。

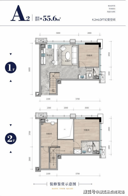
- **55㎡LOFT 套三**:户型方正,布局合理,为您打造舒适的居住环境。

【茂业时代广场】售楼部热线 028 84720058(已认证)【茂业时代广场】客户经理热线 13281850333(微信同号)温馨提示:为给您提供更优质的接待服务,看房请提前致电售楼部预约!【有看房车接送服务,如需预约,请致电售楼部】
声明:本文由入驻焦点开放平台的作者撰写,除焦点官方账号外,观点仅代表作者本人,不代表焦点立场。


