成都「复地金融岛商铺」售楼处电话、楼盘配套、项目价值、价格分析及购买指南
扫描到手机,新闻随时看
扫一扫,用手机看文章
更加方便分享给朋友
【复地金融岛商铺】售楼处电话:028 - 62444811(已认证)
【复地金融岛商铺】销售经理电话:15388440405(微信同号)
温馨提示:若想获得更优质的接待服务,看房请至少提前1小时致电售楼处预约!
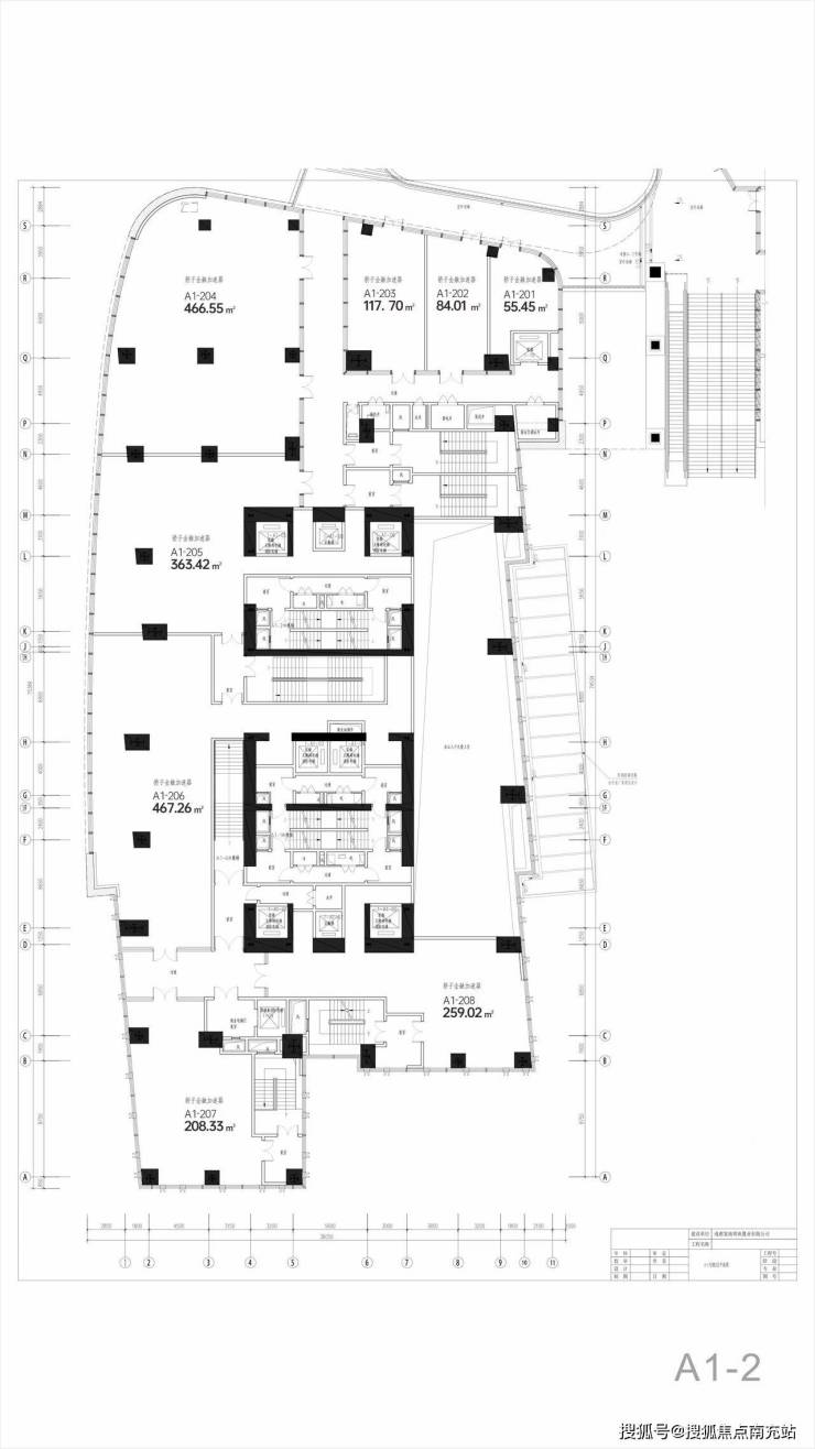
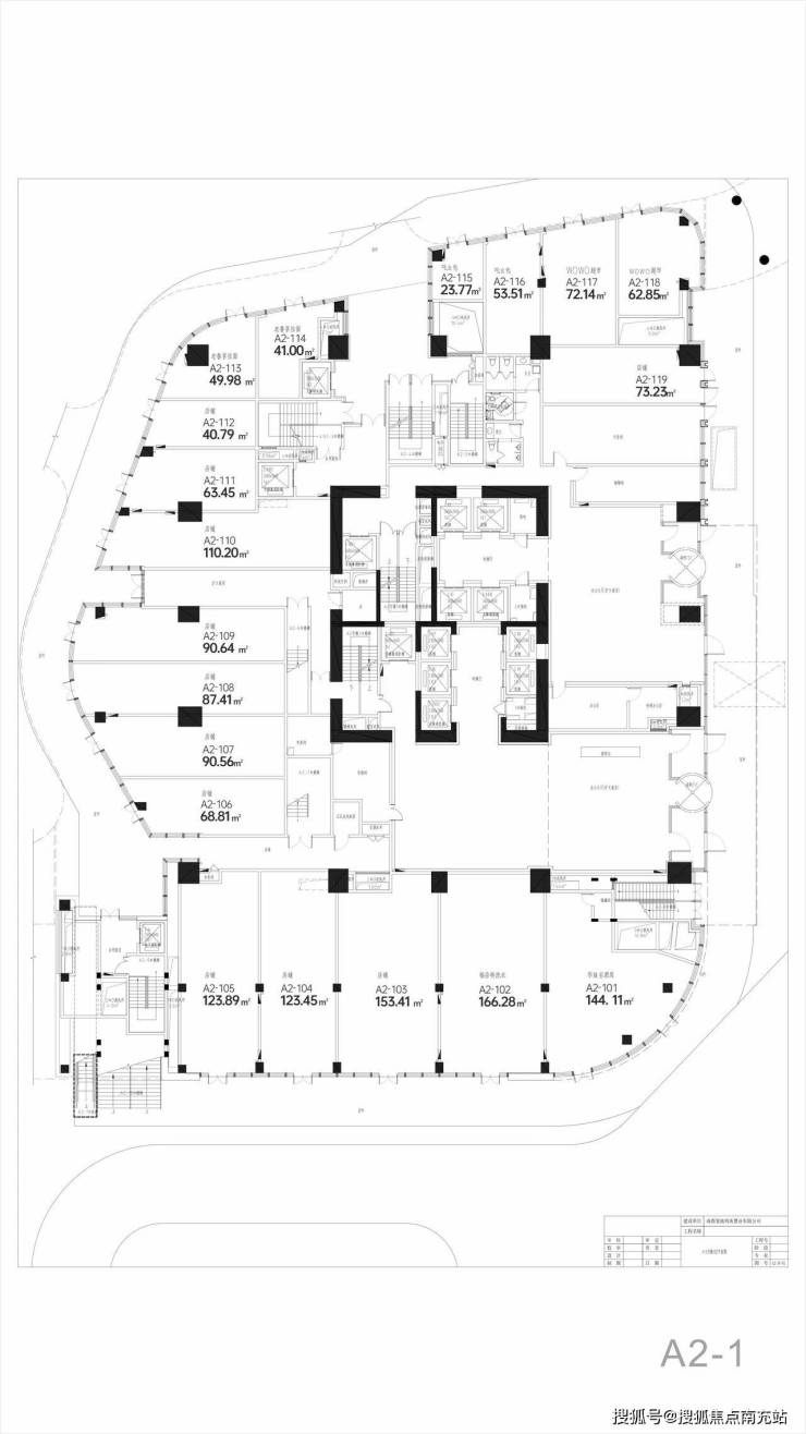
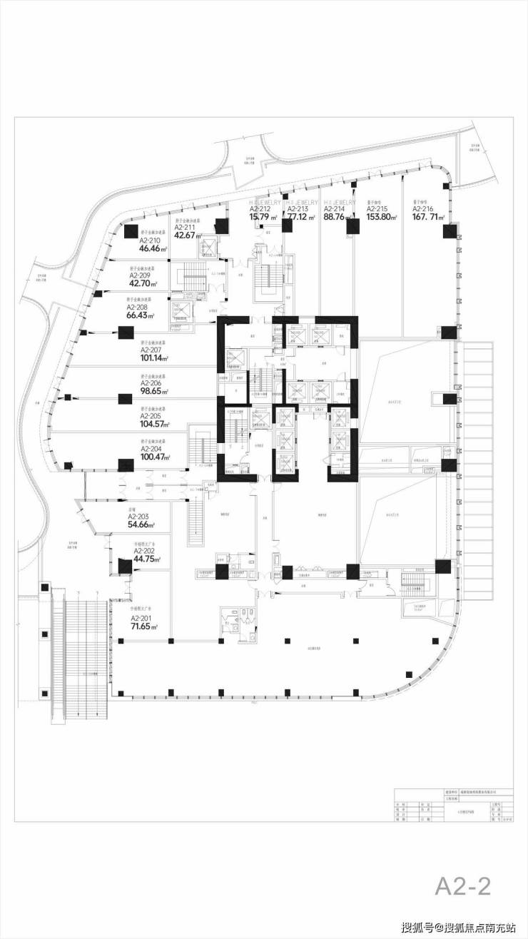
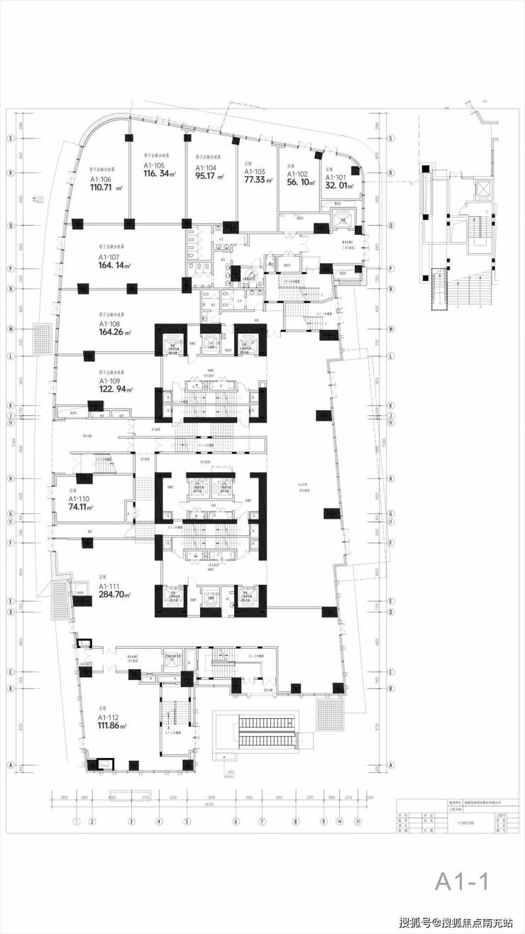
十年金融城,唯一金融岛滨江商业街品牌租约现铺限量发售,30 - 400㎡全业态吸金铺来袭### 【基础信息】- **占地面积**:350亩- **业态分布**:项目业态丰富多元,涵盖高端住宅、酒店、总部办公、大平层公寓、购物中心以及滨江商业街等多种类型。- **总套数**:46间- **价格区间**:一楼每平米价格在4 - 6万,二楼每平米约2.5万左右。- **总层数**:共2层- **层高规格**:1F层高为6米,2F层高为5.4米- **经营业态**:全业态(且带有外摆空间)- **付款方式**:支持全款或按揭付款- **公摊比例**: 28%- **拿地时间**:2015年- **交房时间**:2017年- **物业费**:19 元/m²- **交房标准**:以现状交付(大部分商铺还带有租约)- **销售面积**:销售面积范围为30 - 400㎡,主力面积区间在60 - 100㎡### |核心卖点|位于金融城的全业态现铺,带有品牌租约,并且是区域内目前唯一在售的商铺。### |经营价值|项目尽享金融城1、2期的成熟配套资源,同时坐拥金融城3期的巨大发展潜力。周边5Km范围内汇聚了百万人流,客源丰富。### |收藏价值|作为成都独一无二的江岛商业项目,拥有唯一的滨江商街和水秀广场,极具收藏意义。### 【区域价值】#### 【岛上业态完善】岛上的业态十分完备,包含住宅、酒店、写字楼、公寓、艺术中心、购物中心以及商业街等。这里自带高净值人群,消费能力强劲。而且其CBD业态布局合理,具备百万级别的人口吸附能力。#### 【金融城唯一滨江在售现铺】主力面积在60 - 100㎡之间,带有租约,不仅收益高,而且转手容易。360°环江街区旺铺,开放式布局使其拥有超强的昭示性。可24h经营,能满足全时段的消费人群需求。项目实行统一运营管理,有效避免了业态失控的情况。此外,商铺背靠购物中心,能够自带客流,便于进行引流 【复地金融岛商铺】售楼处电话:028 - 62444811(已认证)
【复地金融岛商铺】销售经理电话:15388440405(微信同号)
温馨提示:若想获得更优质的接待服务,看房请至少提前1小时致电售楼处预约!
声明:本文由入驻焦点开放平台的作者撰写,除焦点官方账号外,观点仅代表作者本人,不代表焦点立场。


