深度解析成都「兴唐新川雅境」楼盘:全方位梳理优劣势并附上售楼中心联系电话
扫描到手机,新闻随时看
扫一扫,用手机看文章
更加方便分享给朋友
当下楼市,“卷”字无疑是最为贴切的形容。楼盘之间的竞争激烈程度不断攀升,已然进入白热化阶段。户型设计、景观打造、外立面呈现以及装修品质等各个方面,均成为竞争的关键要素,每一项都举足轻重。甚至,有些楼盘为了在这场激烈角逐中拔得头筹,不惜展开价格战。不过,高新区域凭借其高价值特性,被明确规划定位为高端改善板块。对于改善型客户来说,居住品质才是他们最为看重的核心要点。在竞争如此激烈的市场大环境下,唯有真正以客户需求为导向,打造出的优质产品,才有可能在众多楼盘中脱颖而出,赢得客户青睐。今天,我们将重点为大家介绍位于高新南的宝藏楼盘——【新川雅境】。【新川雅境】售楼处热线为 028 84720058(已认证),项目经理热线是 13281850333(微信同号)。在此温馨提示,如果您有看房打算,为确保能享受到更优质、更周到的接待服务,建议提前致电售楼处进行预约。尤其值得一提的是,该项目还贴心地提供免费的看房车接送服务。要是您有这方面的需求,同样需要致电售楼处预约安排。【新川雅境】的开发商始终坚守自身原则,坚决拒绝盲目卷入价格战。他们清醒地认识到,单纯依靠价格竞争,就如同踏入一个没有底线的无底深渊。毕竟,价格战是一把利弊共存的“双刃剑”,它不仅会损害客户的实际权益,对于自身楼盘品质的塑造也极为不利,长此以往,甚至可能对整个区域的价值产生负面影响 。
在房地产市场激烈的竞争态势下,价格战一直都是较为普遍的竞争手段。然而必须留意的是,一旦楼盘价格被压到利润所剩无几,开发商为了填补成本缺口,往往会在别的方面想办法,楼盘修建简配的情况就极有出现的可能。在房地产行业领域中,此类现象屡见不鲜。不少楼盘到了接房的时候,业主们满心都是郁闷之情,交房现场一片混乱不堪,简直如同闹剧一般。但雅境的开发商自始至终都未曾采用这种“令亲者痛心、仇者称快”的价格战策略。今年5月项目启动伊始,开发商就坚定了深耕品质的决心。为达成这一目标,项目开发商秉持诚挚态度,充分考虑部分业主的意见,并紧密结合项目自身实际状况,投入了大量时间与精力。从5月开始,历经整整3个月精心规划与严谨施工,对项目进行了全方位升级。此次升级涵盖多个关键领域:重新雕琢大区景观,全力为业主营造更优美宜人、舒适自在的居住环境;优化公共区域设计,以此提升居住的便利性与品质感;合理规划并完善地下室,进一步强化其实际使用功能;优化调整户型布局,让空间利用更科学合理。这一系列举措只为实现一个目的,即在品质方面实现新突破,为业主带来超越预期的居住体验。
新川雅境周边配套丰富多元,从生活、教育、交通、生态等多个维度,全方位满足居民生活需求。生活配套上,项目紧邻3号邻里中心、时光里小吃街、新川中心等成熟设施。这里弥漫着“老成都”悠然闲适的烟火气息,是居民日常购物、休闲放松、品尝美食的绝佳去处。教育资源十分优越,周边汇聚了大约20所学校。像蒙小、教科院附幼、附小、附中,以及金苹果锦城一中等等都在其列。众多优质学校齐聚,从幼儿启蒙到中学教育,孩子全龄段的教育需求都能获得充分满足。交通出行极为便捷,项目临近地铁6号线新通大道站。借助便捷的轨道交通网络,居民无论是日常上下班通勤,还是出门旅行游玩,都能轻松畅达。生态环境更是得天独厚,新川雅境坐拥双滨河湿地,此类生态资源在高新区域实属罕见。不仅如此,它与新怡公园距离很近,前往新川之心公园也极为便利。居民在此随时能享受充满鲜氧绿意的生活,尽情感受大自然的美妙神奇 。
新川雅境的优势十分显著,它是准现房,交房日期越来越近。这对购房者来说,大大缩短了漫长的等待时间。购买该楼盘的房子后,业主可以迅速开展装修工作,尽快入住,快速满足自身居住需求。如此一来,既节省了大量时间,又省下了租房费用,实现了时间和金钱的双丰收,有效降低了购房成本。值得一提的是,新川雅境作为准现房,让购房者在购房前有实地考察的机会。社区的整体环境风貌、楼间距是否科学、房屋采光情况如何,甚至户型可能存在的细微问题,以及室内空间与外部环境的实际状态等,都能清晰呈现在购房者面前。购房者可以直观、真切地感受这些因素,进而做出更精准的购房决策。相较于当下不少楼盘展示效果与交付实际存在差异的情况,新川雅境的准现房优势更加突出。
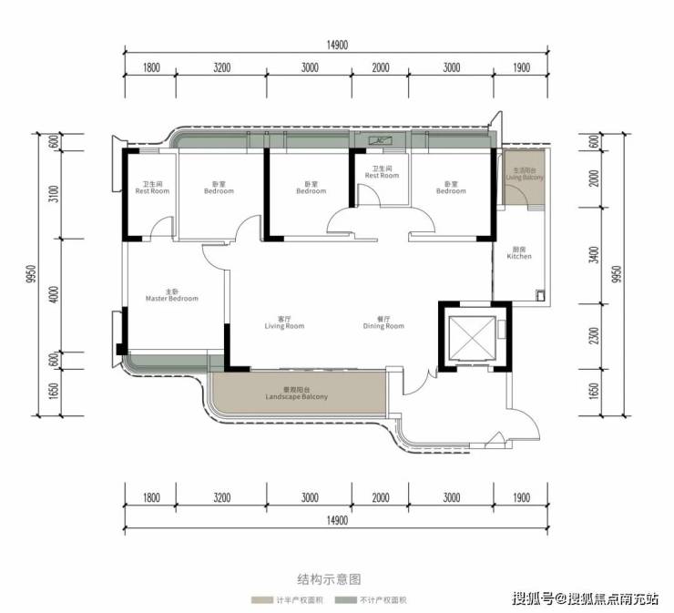
【户型图赏析】这款建筑面积约 132㎡ 的环幕式大平层户型,拥有四房双卫的布局,把实用主义风格诠释得十分到位。
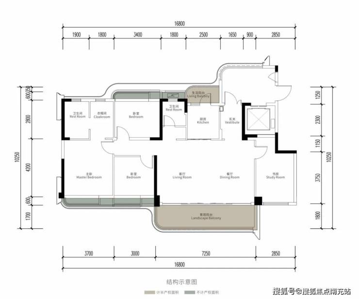
约 143㎡ 的四房双卫瞰景大平层,拥有无边界般交融的开阔视野 。
在成都房地产领域,兴唐地产虽未处于行业头部位置,却凭借新川雅境项目,做出了一个大胆且别具一格的举措。新川雅境由兴唐地产倾力打造,该项目特意放慢开盘节奏,创新性地采用实景开放模式,将产品升级后的真实面貌全方位呈现给大众。需要留意的是,新川雅境引入了龙湖智创生活,致力于为业主打造高品质的物业服务体验。这种实景开放模式和传统预售模式有着明显区别。在传统预售模式里,“卖家秀”现象屡见不鲜,购房者所看到的宣传内容与最终实际到手的房屋可能相差甚远。但在新川雅境,购房者亲眼所见的便是未来实实在在能拥有的,这一做法有效避免了购房者可能面临的风险,极大程度降低了后期交付过程中可能出现的诸多问题。【新川雅境】售楼处热线 028 84720058(已认证)【新川雅境】项目经理热线 13281850333(微信同号)温馨提示:倘若您打算前往新川雅境看房,为确保能享受到更加优质、贴心的接待服务,请提前致电售楼处进行预约。另外,新川雅境项目充分考虑到购房者的需求,还为有需要的客户提供免费看房车接送服务。若您有此项需求,欢迎随时致电售楼处预约 。
声明:本文由入驻焦点开放平台的作者撰写,除焦点官方账号外,观点仅代表作者本人,不代表焦点立场。


