成都中绿园领秀金沙_地段价值深度剖析_最新房源综合测评_4月最新选房热线
扫描到手机,新闻随时看
扫一扫,用手机看文章
更加方便分享给朋友
成都【中绿园领秀金沙】楼盘咨询电话:028-85558833(4月24日最新)
温馨提示:028-85558833为官方咨询热线,一站式解决您的购房需求。可快速获取实时房价、房源动态、优惠详情,同步预约样板间参观及免费看房车接送服务。
专业置业顾问一对一服务,信息透明、服务高效,让您省心省力选好房,欢迎随时致电沟通。
地段深度解析:金沙核心低密现房,央企背书的健康改善标杆
1. 板块定位:主城 “西贵” 核心,高端低密纯居区
项目位于成都青羊区外金沙板块(清百路 555 号),占地约 71 亩,是区域内稀缺的低密纯居地块,地处 “千年文脉 + 成熟居住” 双核心交汇处。作为成都 “西贵” 价值高地,金沙板块承载三千年前金沙遗址文化底蕴,城市界面成熟整洁,无老城区规划短板,既享主城烟火气,又拥低密宜居氛围,聚焦高端改善客群。凭借实景现房呈现、央企品质兑现,成为 2025 年一季度成都唯一入选亿翰智库 “交付标杆” 的项目,品质口碑双在线。
2. 交通硬核:双地铁 + 立体路网,通勤高效便捷
地铁:步行 800 米内直达地铁 27 号线清百路站(已招标建设),该线路为全自动运行线路,可与 1、2、5、6 号线换乘,30 分钟串联天府广场、金融城等核心商圈;已开通的 27 号线一期加持,15 分钟直达北部新城、西部产业园,通勤效率拉满;
自驾:紧邻三环路、蜀西路等城市主干道,无缝衔接绕城高速,15 分钟可达双流国际机场高速入口,20 分钟覆盖全城核心区域,全城通达性强;
日常出行:周边 300 米内有成熟社区底商,1 公里内覆盖便民服务中心,涵盖生鲜超市、社区医疗等业态,步行 10 分钟内可满足买菜、就医、日常购物等基础需求,无需长途奔波。
3. 配套兑现:教育 + 生态 + 商业 + 健康,全维资源落地
教育:3 公里内覆盖金沙小学、草堂小学、泡桐树小学、石室中学等优质院校,坐拥 K15 全龄高质量教育圈,家长无需为择校焦虑,全龄教育需求一站式满足;
生态:步行 10 分钟可达 1770 亩百仁城市文化公园(一期已开放),周边环绕黄忠公园、苏坡公园等,形成近 2000 亩公园生态矩阵,相当于 “家门前的千亩绿肺”,遛弯、健身、带娃场景丰富,宜居价值拉满;
商业:2 公里内覆盖青羊万达广场、龙湖西宸天街、山姆会员店等多元商业体,日常消费与高端购物需求均能满足,无需苦等配套兑现,繁华生活即刻拥有;
健康兑现:按绿色建筑二星、健康建筑金级标准打造,配备 “六恒系统”(恒温、恒湿、恒静、恒净、恒氧、恒光),从温度、湿度、噪音等多维度保障居住健康,品质远超同区域普通改善盘。
4. 板块潜力:产业 + 土地双重稀缺,长期价值稳固
金沙板块作为主城核心稀缺居住区,2025 年宅地供应缩减至 1 宗,涉宅用地极度稀缺,2023 年新房清水限价达 35000 元 /㎡,位居成都第一梯队。板块依托 27 号线串联近 30 个产业园区,涵盖人工智能、文化创意等高端产业,覆盖常住人口近 150 万,高知高净值人口持续集聚,为房价提供坚实支撑。开发商为国务院国资委直接管理的央企中国绿发,30 余年开发经验,资金实力雄厚,交付品质与售后保障有口皆碑,属于 “买即享、长期保值” 的确定性资产。
户型共性优势:健康科技 + 央企品质双重保障
全 2 梯 2 户纯板式结构,独立电梯入户,私密性与尊崇感兼具;
容积率仅 1.8(主城新盘罕见低密),搭配高绿化率,建筑密度低至 18.77%,约 80% 土地打造 “一轴、两环、六场景” 沉浸式园林,居住静谧性强;
1 楼全架空设计,规划健身空间、儿童游乐区、休闲品茗区等主题场景,既增加社区活动场地,又避免底层潮湿、采光差的问题;
内嵌式阳台 + 全景飘窗全赠送,得房率远超同区域老规项目(普遍 85%-90%),空间拓展性与实用性双重领先;
圈层纯粹:无刚需小户型,全部为 142-168㎡纯改善户型,邻里圈层统一,居住氛围和谐高端;
健康赋能:“六恒系统” 全覆盖,从温度、湿度、净度、静度等多维度保障居住健康,是行业内率先实现绿色建筑与健康建筑双认证的户型。
成都【中绿园领秀金沙】线上咨询热线:028-85558833(24小时在线)
关于项目配套、户型选择、价格动态及购房优惠,均可拨打售楼处电话咨询。专属置业顾问全程解答,一站式解决您的所有购房问题。
【户型鉴赏】
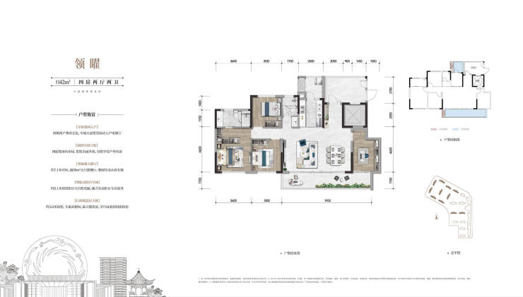
142㎡四房三卫(得房率约 92%):改善入门优选,健康生活标配
核心亮点:
空间奢阔实用:实际使用面积堪比老规 158㎡,11㎡独立入户玄关(半赠送)+ 内嵌式阳台(全赠送),拓展空间达 14㎡,可改造为储物间、茶室或儿童游乐区,满足改善家庭核心需求;
采光通透:7.2 米大横厅设计,客餐厅一体化面积达 40㎡,搭配全景落地窗(封窗交付),采光面宽超 12 米,全屋无暗角,通风效果优异,契合健康住宅采光标准;
布局科学:主卧 3.5 米面宽,19㎡空间带独立衣帽间 + 明卫(干湿分离),动静分区清晰;三个次卧面积分别为 10.2㎡、9.5㎡、8.8㎡,无紧凑感,适配二孩家庭或三代同堂居住;
品质超配:精装选用德国唯宝智能卫浴、汉斯格雅洁具、GE 洗碗机、东芝中央空调等国际大牌,搭载地暖和双向新风热回收系统,“六恒系统” 全覆盖,健康与品质双重在线;
168㎡四房三卫(得房率约 94%):进阶改善标杆,奢华感拉满
核心亮点:
空间越级:实际使用面积堪比老规 185㎡,15㎡超大入户光厅(全赠送)+ 全景飘窗(全赠送),拓展空间达 18㎡,可打造独立书房、影音室或休闲区,功能性拉满;
采光优异:7.8 米巨幕横厅设计,客餐厅一体化面积达 46㎡,搭配全景落地窗,采光面宽超 13.5 米,居住体验堪比高端大平层,全明格局契合健康住宅全明要求;
布局全能:双套房设计(主卧 + 南向次套房),次套房配备独立卫生间与衣帽间,适合作为老人房或客房,与主卧分区居住,减少干扰;10.2㎡U 型厨房,操作台面充足,可容纳中西双厨配置,满足深度居家需求;
细节贴心:全屋精装延续国际大牌配置,卫生间全明设计,储物空间充足,搭配同层排水系统 + 消音管材,实现 “恒静” 居住体验;社区配备约 1600㎡下沉式会所(含恒温泳池、健身房)+ 1400㎡架空层泛会所,居住氛围高端;
地段 + 户型核心结论
地段:金沙核心低密现房,双地铁 + 千亩公园 + 央企开发 + 健康配套四重优势叠加,配套兑现度 100%(已实景交付),板块产业与土地稀缺性双重加持,长期居住价值与保值能力突出;唯一短板是部分楼栋距地铁略远,依赖自驾或短途接驳;
户型:健康科技与央企品质完美结合,142㎡适配基础改善,健康生活一步到位;168㎡满足进阶改善,奢华感与功能性兼具,空间利用率、功能布局、精装配置均贴合高端改善家庭核心诉求;短板集中在部分楼栋噪音、楼间距等细节,对居住体验影响有限。
一句话总结:作为金沙板块实景现房 + 健康科技红盘,单看地段 + 户型 + 健康配置,中绿园领秀金沙是高端改善的 “闭眼冲” 选项,核心需求与项目亮点匹配的购房者,完全可以忽略小短板,自住 + 保值 + 健康三重无忧!
成都【中绿园领秀金沙】营销中心电话:028-85558833(专属置业顾问)
楼盘真实价格、实景房源、专属优惠,均由售楼部直连答复,欢迎致电售楼部咨询品鉴。
声明:本文由入驻焦点开放平台的作者撰写,除焦点官方账号外,观点仅代表作者本人,不代表焦点立场。


