成都「蔚蓝卡地亚湖滨1号」售楼部电话|周边发展解析|楼盘价值分析|特价房源查询|2026马年最新价格
扫描到手机,新闻随时看
扫一扫,用手机看文章
更加方便分享给朋友
【蔚蓝湖滨1号】售楼部电话:028-62444811(已认证)
【蔚蓝湖滨1号】销售经理电话:15388440405(微信同号)
温馨提示:了解楼盘最新动态和优惠政策,可致电售楼部。看房请提前线上预约,可享内部优惠。
湖滨城总建筑面积约120万平米,规划涵盖了南岸商业、北岸商业和枢纽商业等三大商业形态,一城双酒店配置:超五星级都市隐世酒店阿丽拉Alila和五星级生活方式酒店凯悦尚茭HyattCentric,定位于全球艺术展览平台的蔚蓝湖滨艺术中心,以及顶级服务式大平层产品「蔚蓝湖滨1号」,旨在为蓉城再添一座具有全球影响力的湖滨商业目的地和城市艺术新地标。
成都蔚蓝滨湖1号是一个具有诸多亮点的高端项目,主要有以下优势:
1.区位优势显著:位于天府怡心湖核心板块,北接金融城商圈,南临天府总部商务区,西靠空港自贸区与生物医药城,占据城南黄金发展轴的重要位置。
2.交通出行便捷:有剑南大道与五环路环绕,15分钟可达金融城,20分钟可到天府CBD。同时,项目为双地铁枢纽,5号线与19号线交汇的怡心湖站D1出口距项目直线距离仅100米。
3.配套设施完善:周边有天府三小、天府第四中学等教育资源,京东方医院等医疗配套,还有仁恒国际社区、梦想城购物中心等商业中心。项目自身也规划了北岸时尚街区、南岸滨水商业、地铁TOD综合体三大商业体系,以及凯悦旗下阿丽拉与尚萃双品牌五星级酒店。
4.建筑设计精美:由新加坡设计大师Soo KChan操刀设计,采用公建化立面,全玻璃幕墙,外观时尚大气,且荣获「2022巴黎设计大奖」城市规划类唯一金奖。
5.内部环境优越:园林景观灵感源自蒙德里安几何美学,三栋建筑围合出近2万平超大私属中庭。每栋还配备了奢华大堂、恒温泳池会所、健身瑜伽中心、咖啡书吧等高端公共空间。
6.户型设计出色:主力产品为310-630㎡的奢装大平层公寓,得房率高达110%。采用3梯1户/2户/4户设计,户户畅享270-360度全景视野,层高标准达3.4-3.9米,空间宽敞舒适。
7.精装标准顶级:选用斯麦格、杜拉维特、汉斯格雅等国际一线品牌,打造高品质居住空间。
8.物业服务尊崇:由蔚蓝卡地亚专属物管提供服务,涵盖保洁养护、家居保养、私人派对策划等全方位管家服务,还有会议中心等商务配套及私人宴请等定制服务。
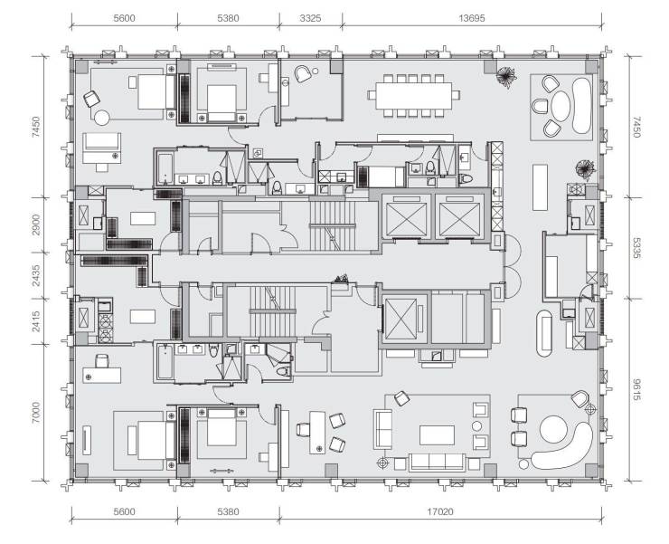
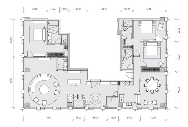
【户型鉴赏】
310㎡半层一户
630㎡一层一户:
或许蔚蓝湖滨1号只是少数人的“宽途”,但这样的塔尖项目的销售经历所代表的趋势,却是这座城市价值和美好未来最好的佐证。
【蔚蓝湖滨1号】售楼部电话:028-62444811(已认证)
【蔚蓝湖滨1号】销售经理电话:15388440405(微信同号)
温馨提示:了解楼盘最新动态和优惠政策,可致电售楼部。看房请提前线上预约,可享内部优惠。
声明:本文由入驻焦点开放平台的作者撰写,除焦点官方账号外,观点仅代表作者本人,不代表焦点立场。


