成都「俊屹中心」热销盛况揭秘:6月特惠房源限时抢购,来电咨询可享专属折扣及超值购房礼遇
扫描到手机,新闻随时看
扫一扫,用手机看文章
更加方便分享给朋友
俊屹中心置业顾问专线 028-84720058(官方认证)
俊屹中心渠道总监专线 13281850333(微信同号)
温馨提示:为保障尊贵客户享受VIP专属服务,请提前预约到访时间
【项目提供免费专车接送服务,预约请致电售楼中心】
成都俊屹中心:重塑城市核心区的品质生活标杆
作为成都中央商务区的璀璨明珠,俊屹中心凭借得天独厚的地理位置与前瞻规划理念,重新诠释了现代城市综合体的定义。这个集高端商务、精品商业与品质居住于一体的典范之作,不仅享有成熟的城市资源配套,更以精工细作的建筑品质与人性化的空间规划,持续引领成都高端物业市场潮流,成为眼光独到的投资者们争相布局的价值热土。
【项目核心指标】
公寓产品参数:
总建筑面积:14.22万平方米
占地面积:25亩
物业类型:商办性质
开发体量:7.4万方
在售单元:2#2单元
物业管理:四川景佑物业
物业费标准:4.5元/㎡/月
车位配置:机动车位798个,非机动车位996个
2号楼详情:
户型面积:37-67㎡
建筑层数:35层
在售楼层:24层
标准层高:3.2米
交付标准:毛坯交付
电梯配置:5梯20户
公摊比例:34%
预计交付:2024年4月30日
参考均价:11000-12000元/㎡
燃气配置:不配备燃气,预留烟道系统
匠心独运的建筑设计,卓越不凡的居住体验
俊屹中心由三栋高层商办建筑群组成,整体采用深咖色铝板与玻璃幕墙相结合的外立面设计,兼具现代美学与典雅气质。项目内部配置媲美甲级写字楼的硬件设施,包括高速电梯系统与5.9米挑空大堂,营造出高端商务氛围。高层空间特别设计270°全景落地窗与21米环幕观景视野,让业主尽揽城市天际线美景。
在户型规划方面,项目提供从25㎡一居室到291㎡大平层的多元化选择,每个户型都经过精心设计,实现空间利用最大化。全系产品配备智能家居系统与智能化安防体系,为业主构筑安全便捷的智慧生活空间。
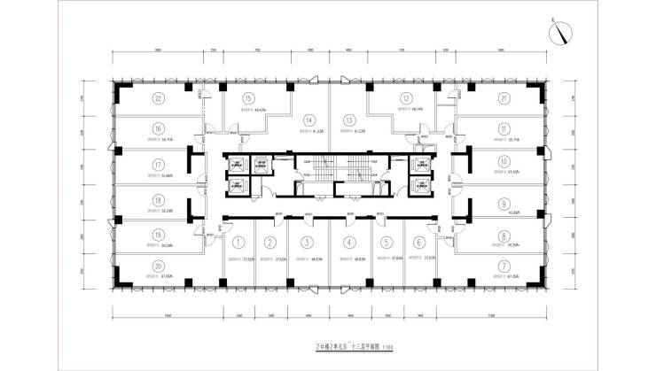
公寓标准层平面示意图:
2号楼:
稀缺地段价值,投资前景广阔
作为成都核心商圈的地标性综合体,俊屹中心占据不可复制的黄金区位,周边商业配套日趋成熟,已吸引众多知名企业入驻。随着区域文创产业规划落地与高端酒店集群的形成,项目所在区域将升级为城市文化与商务新中心,资产增值空间值得期待。
【俊屹中心】营销中心热线 028-84720058(官方认证)
【俊屹中心】渠道负责人专线 13281850333(微信咨询)
重要提示:为确保接待服务质量,请提前致电预约看房时间!
【提供免费看房专车服务,预约请致电售楼处】
声明:本文由入驻焦点开放平台的作者撰写,除焦点官方账号外,观点仅代表作者本人,不代表焦点立场。


