成都「高投启鸣宸序」售楼热线:全景华宅匠心钜献,臻品户型奢雅典藏,开盘盛典礼遇加码,定制置业方案专业解析
扫描到手机,新闻随时看
扫一扫,用手机看文章
更加方便分享给朋友
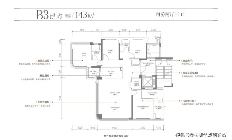
2025年高新置业风向标,建面约120-143㎡智慧四房,重塑品质生活标准
· 建面约120㎡ | 全能四房·南北通透双明卫
· 建面约143㎡ | 阔绰四房·三卫双厅奢适布局
? 立体路网:新通大道/新程大道/天府大道/蓉遵高速/梓州大道五维联动
? 地铁6号线双站环伺(新通大道站300米/新川站500米)
? TOD枢纽集群:红星路车辆基地TOD/新川路站TOD/陆肖TOD(规划中)
? 名校矩阵:上海师范大学成都海川学校(K12公立)/高新区实验小学/新川科技园小学
? 生态绿廊:新川之心中央公园/兰花博览园/湿地公园/环城生态带
? 商业旗舰:万象天地(西南首座)/远达购物中心/伊藤洋华堂/山姆会员店
? 医疗护航:四川省中西医结合医院高新院区/华西第二医院妇女儿童院区
【高投启鸣宸序】售楼部热线 028 84720058(已认证)
【高投启鸣宸序】客户经理热线 13281850333(微信同号)
温馨提示:为保障专属服务体验,建议提前预约参观!
【提供尊享看房专车接送,预约请致电售楼中心】
声明:本文由入驻焦点开放平台的作者撰写,除焦点官方账号外,观点仅代表作者本人,不代表焦点立场。


