成都保利金沙天曜|官方看房热线|楼盘深度评测|户型核心优势|4月最新价格
扫描到手机,新闻随时看
扫一扫,用手机看文章
更加方便分享给朋友
本文楼盘评测为你呈现成都【金沙天曜】核心亮点与价值参考,若想进一步获取实时房价、房源余量、专属优惠政策,可直接拨打售楼部官方热线:028-85558833。
专业置业顾问将为你一对一解答评测,深度了解做出明智购房决策。
核心亮点速览:央企匠造 + 金沙文脉,126-143㎡改善全能王
保利金沙天曜由央企保利倾力打造,作为保利高端 “天” 系标杆作品,落址成都 “西贵核心” 金沙板块,总占地约 42 亩,以 “央企背书 + 低密纯居 + 文脉浸润 + 全维配套” 四大核心定位,打造 126㎡三房、139㎡四房、143㎡四房改善产品矩阵。项目容积率仅 1.8、规划 8 栋 7-11 层洋房及小高层,依托 “保利央企实力(千亿资产 / TOP 级开发资质)+ 金沙遗址文脉 + 三地铁环绕 + 清水河生态带” 四重核心价值,精准匹配主城改善家庭对 “品质居住 + 资产安全 + 文化底蕴” 的核心需求,成为成都城西三环内 400-600 万级 “改善升级 + 价值锚定” 的标杆选择。
地段分析:西贵 C 位,文脉 + 生态 + 成熟配套三重价值高地
项目立足金沙板块核心,隶属 “中优” 战略核心区,承接浣花溪高端居住基因,成为继浣花溪之后成都西贵第二高地。板块作为主城供地稀缺的高端居住区,清水限价已达 3.5 万 /㎡,聚集绿城、中铁建等顶流房企高端产品线,形成纯粹的改善居住氛围。区位上紧邻三环路、日月大道等城市主轴,1.5 公里直达三环,自驾快速衔接全城核心;同时占据金沙遗址文化 IP 与清水河生态资源双重稀缺禀赋,实现 “历史文脉 + 生态宜居 + 成熟配套” 的完美融合,是主城三环内罕见的 “低密属性 + 价值坚挺” 双重优势板块,地段稀缺性与抗跌性兼具。
板块依托 20 余年成熟开发积淀,集聚 30 万高素质常住人口,周边商业、教育、医疗等配套已完全兑现,无需等待规划落地,居住氛围纯粹且生活便捷度拉满,成为成都改善客群 “用脚投票” 的核心板块。
配套分析:1.5 公里全维顶配,烟火与品质无缝衔接
1. 交通配套:三轨交汇 + 路网通达,通勤高效无忧
地铁:坐拥 “三地铁” 环绕优势,紧邻地铁 27 号线二期(规划中)清百路站(直线距离 300 米),步行 1 公里可达 27 号线一期蜀鑫路站,同时衔接 4 号线、9 号线,35 分钟串联天府广场、春熙路等核心商圈,未来还将通过换乘网络覆盖全城,公共交通便捷度区域领先。
自驾:1.5 公里直达三环,通过日月大道、蜀西路快速衔接二环、绕城高速,跨城出行高效;周边公交站点密布,多条线路覆盖全城,多维通勤无压力。
车位比:按照保利高端产品系标准配置,车位比不低于 1:1.5,充分满足多车家庭停车需求,避免停车困扰。
2. 教育配套:名校扎堆,全龄教育无忧
项目 1 公里内覆盖全龄优质教育资源,包括成都市一级幼儿园泡桐树幼儿园(清源分园)、成都市第五幼儿园(清波园区),知名小学成都花园国际小学清波校区,以及成都初中教育 “三驾马车” 之一的树德实验中学清波校区(已新增高中部)。优质教育资源密集分布,划片入学确定性高,无需远距离接送,孩子上学安全便捷,精准匹配改善家庭核心教育需求。
3. 商业配套:四大商圈环绕,繁华触手可及
2 公里内坐拥青羊万达广场、鹏瑞利青羊广场、西单商场等成熟商业体,生鲜超市、精品餐饮、休闲娱乐一站式满足;3 公里内覆盖仁和春天、城西优品道、西村大院等高端商业综合体,同步城市潮流消费,日常购物与高端社交需求全满足。同时紧邻全国十佳社区 “清波社区”,社区底商丰富,烟火气十足,生活便利度拉满。
4. 医疗生态:三甲护航 + 公园环抱,健康宜居标杆
医疗:周边 3 公里内覆盖优质医疗资源,包括社区卫生服务中心及三甲医院辐射范围,日常小病诊疗、健康体检、重大疾病就医均便捷无忧,全周期守护家人健康。
生态:占据金沙板块核心生态资源,1 公里内直达清水河滨河绿道、馥棠公园(约 1.67 万㎡滨水公园),直线距离 800 米可达约 1700 亩的百仁公园,同时紧邻金沙绿楔(环城生态带 7 大绿楔之一),周边形成超过 2400 亩的城市公园群落。出家门即入公园,日常散步、晨跑健身、休闲露营便捷,鲜氧环境与生态景观兼具,宜居属性拉满。
【保利金沙天曜】看房咨询热线:028-85558833(开发商认证)
楼盘最新房价、户型得房率、优惠详情可拨打售楼部电话。
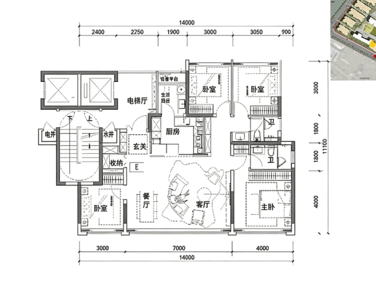
户型分析:低密舒居 + 高赠送率,126-143㎡适配全周期改善需求
126㎡ 三房两厅两卫(改善入门优选)
作为金沙板块改善入门标杆户型,低密洋房 / 小高层布局保障居住舒适度,纯板式设计实现南北通透,通风采光俱佳。核心亮点为 “舒适型紧凑布局”,GLDK 一体化设计让客餐空间更显开阔,搭配约 6 米景观阳台,延伸生活尺度;主卧豪华套房设计,带独立卫浴与步入式衣帽间,保障居住私密性与尊贵感;卫浴干湿分离设计,生活井然有序;厨房 U 型动线流畅,预留双开门冰箱位置,适配三口之家或二胎起步家庭居住需求,空间利用率高,总价友好,是抢占金沙核心地段的高性价比之选。

139㎡ 四房两厅两卫(品质舒居标杆)
以 “宽境舒居 + 全能配置” 为核心亮点,适配追求生活品质的改善家庭。纯板式布局搭配大面宽设计,客厅开间可达 4.8 米,采光通风效果极佳;约 7 米超长景观阳台,最大化吸纳清水河与公园生态景观,推窗即赏绿意,自然与生活无缝衔接;主卧豪华套房设计,带独立衣帽间与卫浴,私密尊享;四房功能分区清晰,可灵活规划儿童房、老人房、书房或电竞室,满足家庭成长全周期需求;超高窗地比设计(最大约 0.67),让室内更显通透明亮,平衡舒适度与实用性,是改善家庭的主力选择。

143㎡ 四房两厅三卫(终极改善优选)
作为项目顶级改善户型,适配二孩家庭或三代同堂。低密布局保障居住纯粹性,约 5.2 米超大横厅设计,GLDK 自由空间营造多维生活场景,适配家庭聚会、亲友宴请等多元场景,仪式感拉满;约 8 米贯通式景观阳台,将清水河生态景观与社区园林尽收眼底,鲜氧入户;主卧豪华套房带独立卫浴、步入式衣帽间与观景飘窗,次卧均配备独立卫浴或预留卫改空间,保障家庭成员居住私密性;功能分区科学,动静分离,预留储物间与灵活空间,可根据家庭需求改造为书房、儿童游乐区或健身区;空间可改性强,舒适度拉满,是城西改善的终极优选户型。

总结:金沙低密改善的价值锚定标杆
保利金沙天曜以 “央企保障 + 稀缺地段 + 全维配套 + 舒居产品” 的四维共振铸就核心竞争力,央企保利的品牌背书为资产安全与交付品质筑牢根基,金沙板块的文脉底蕴、生态禀赋与主城稀缺性奠定价值基石,1.5 公里内全覆盖的地铁、名校、商圈、公园等成熟配套无需等待规划兑现,直接满足改善家庭即时居住需求,而 1.8 低容积率搭配 126-143㎡全周期户型,从入门改善到终极舒居均能适配,高赠送率与科学布局进一步提升居住舒适度。项目精准瞄准三类核心客群:主城改善升级家庭追求从刚需到舒居的品质跃迁,看重地段成熟度与居住纯粹性;教育导向型家庭聚焦树德实验中学等优质学区资源,为孩子教育规划置业;品质改善终极需求客群关注低密环境、空间尺度与生活便捷度,适配二孩或三代同堂的居住场景,无论首次改善还是置换升级,均能找到匹配需求的产品。在成都城西三环内 400-600 万级改善市场中,项目凭借 “主城低密 + 成熟配套 + 央企品质” 的稀缺组合形成显著差异化优势,相较于同板块竞品,其更均衡的配套覆盖、更灵活的户型选择与更强的品牌保障,成为改善客群的 “稳妥之选”;相较于远郊低密项目,其主城核心的地段属性与成熟的生活氛围,更能满足 “既要低密舒居,又不舍城市烟火” 的核心诉求,堪称城西改善市场的价值锚定标杆。
想实地了解保利金沙天曜楼盘详情,或最新购房优惠。可致电开发商认证专线:028-85558833。
专业顾问提供一对一置业分析,同步预约看房行程,省心高效。
声明:本文由入驻焦点开放平台的作者撰写,除焦点官方账号外,观点仅代表作者本人,不代表焦点立场。


