成都「湖山春晓」购房攻略丨热销户型深度解析+8月房价动态丨限时钜惠政策详解丨立体交通与商圈配套全景呈现丨专属看房礼遇预约通道
扫描到手机,新闻随时看
扫一扫,用手机看文章
更加方便分享给朋友
【湖山春晓】售楼部热线:028 84720058(已认证)【湖山春晓】客户经理热线:13281850333(微信同号)温馨提示:若您希望获得更优质、更高效的接待服务,请提前致电售楼部预约看房!此外,本项目提供看房车接送服务,若您有此需求,同样请致电售楼部进行预约。### 【项目卖点】1. 【湖山春晓】是大陆希望集团继荣获“亚洲生态人居示范奖”的亚特兰蒂斯·黄金时代后,又一精心雕琢的经典之作。在亚特兰蒂斯·黄金时代项目中,集团集结了英国ATKINS、美国WATG、美国DAHLIN、加拿大FORREC、英国SAVILLS等全球顶级设计团队,打造出超越时代的“三圈层——王宫、乐土、城邦”。此次打造【湖山春晓】,延续了高品质的追求与理念 。2. 该项目被六个4A级景区环绕,空气中负氧离子含量高,能为业主营造一个清新、健康的居住环境。### 【项目配套】- **产业**:【湖山春晓】坐落于天府城南副中心、滨江花园城——新津区。这里与天府新区、高新区、双流区紧密联动,发展势头迅猛。大批智能制造产业和世界500强企业纷纷在此入驻,像格力智能制造产业园、银隆新能源成都产业园、中国中车、中国电建等,为区域发展注入强劲动力,也为业主提供了丰富的就业机会与发展潜力。- **生态资源**:项目周边生态资源优越,左边临近梨花溪,这里茂林修竹,绿荫扶疏,充满自然生机;右边倚靠老君山,这座仙山圣地峰峦叠嶂,散发着神秘的气息。同时,项目还揽2000年通济古堰流水,其蜿蜒而过,约17万平米的私域内湖散落其中,形成一幅优美的生态画卷。- **交通**:项目拥有三横五纵三轨的立体交通体系。紧邻岷江大道,距成雅高速仅约1公里,出行十分便捷。此外,还有希望·奥特莱斯购物专线、508、XK4路公交等公交线路可供选择。值得一提的是,地铁10号线已经通车,目前10号线三期工程也已开工,预计2023年建成后,从新津无需换乘就能直达人民公园,大大缩短了新津与市区的距离。- **商业**:项目出门即可到达希望·奥特莱斯,这里汇聚了来自全球的众多主流国际品牌,涵盖重奢、轻奢、时尚设计师品牌,运动休闲品牌、儿童用品、美食广场等多种业态,满足业主日常购物、休闲、娱乐等全方位需求。- **医疗**:周边有四川骨科医院天府新区分院、华西医院天府院区、成都京东方医院等医疗机构,为业主及其家人的健康提供多重医疗保障。- **教育**:区域内汇聚了墨尔文国际学校、龙江路小学、成都外国语学校等优质教育资源,涵盖全龄段教育,让孩子在家门口就能享受到良好的教育。
### 【项目参数】- **大平层**:面积有157、174、214平(赠送15平)。单价5500起元/㎡,总价90万起。所在楼栋为1# - 1、1# - 2。- **叠拼别墅**:面积80 - 132㎡,实得面积190 - 362㎡。单价1.1—2.4万元/㎡,实得单价5500元/平,总价107起万元,花园面积10 - 123平。
此外,项目公摊情况为:大平层24%,叠墅28% - 30%。梯户比方面,平层为3T5电梯直接入户,叠院为1T2户。单层高上,大平层层高3.15米,叠拼层高5.9米。总层高分别是大平层14层,叠拼4层。项目占地面积19326平方米,车位比为1:1.3,交付标准为清水交付,首付需5成,交房时间为2023.12.28,物业由成都希望波塞物业管理服务有限公司负责,物业费大平层2.8元,叠墅3.5元,产权年限为40年。### 【户型图】- **大平层**:有157平,174平、214平多种户型。 - A3户型建筑面积157㎡,价格区间在89.6万 - 133.75万。
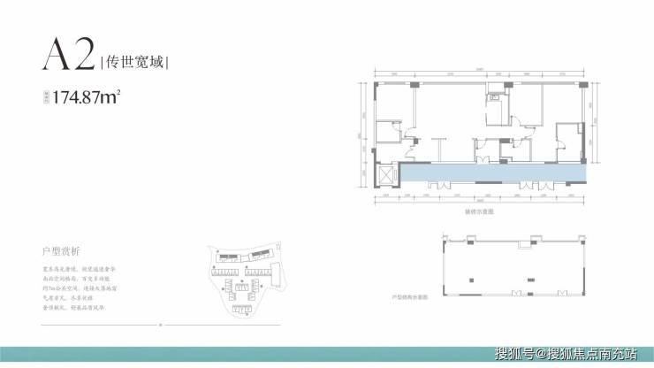
- A2户型建筑面积174平方米,价格区间为103.4万 - 172.72万。
- A1户型建筑面积212 - 214㎡,价格区间是120.9万 - 190.51万。
- **叠拼别墅**:面积80 - 132㎡,实得面积190 - 420㎡。
【湖山春晓】售楼部热线:028 84720058(已认证)【湖山春晓】客户经理热线:13281850333(微信同号)温馨提示:若您希望获得更优质、更高效的接待服务,请提前致电售楼部预约看房!此外,本项目提供看房车接送服务,若您有此需求,同样请致电售楼部进行预约。
声明:本文由入驻焦点开放平台的作者撰写,除焦点官方账号外,观点仅代表作者本人,不代表焦点立场。


