成都「复地金融岛商铺」售楼部电话丨最新房价多少丨楼盘详情丨优劣势分析丨十一优惠政策
扫描到手机,新闻随时看
扫一扫,用手机看文章
更加方便分享给朋友
【复地金融岛商铺】售楼部电话:028-62444811(已认证)
【复地金融岛商铺】销售经理电话:15388440405(微信同号)
温馨提示:为了提供更高更好的接待服务质量,看房请提前1小时致电预约!
滨江商业街 品牌租约现铺限量发售
30-400㎡全业态吸金铺
【金融城唯一滨江在售现铺】
主力面积60-100㎡,带租约、高收益、易转手
360°环江街区旺铺,开放式布局拥有超强昭示性
24h经营,满足全时段消费人群
统一运营管理,避免业态失控
背靠购物中心,自带客流,便于引流
【基础信息】
占地面积:350亩
业态涵盖:高端住宅、酒店、总部办公、大平层公寓、购物中心、滨江商业街
总套数:46间
价格:一楼 4-6 万,二楼 2.5 左右
总层数:2层
层高:1F 6米、2F 5.4米
业态:全业态(带外摆)
付款方式:全款/按揭
公摊: 28%
拿地时间:2015 年
交房时间:2017 年
物业费:19 元/m²
交房标准:现状交付(大部分带租约)
销售面积30-400㎡,主力面积区间60-100㎡
【岛上业态完善】
住宅、酒店、写字楼、公寓、艺术中心、购物中心、商业街
岛上自带高净值人群,具有很强消费力
CBD业态布局,带来百万级别的人口吸附力
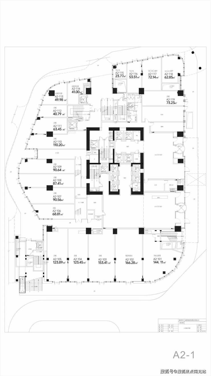
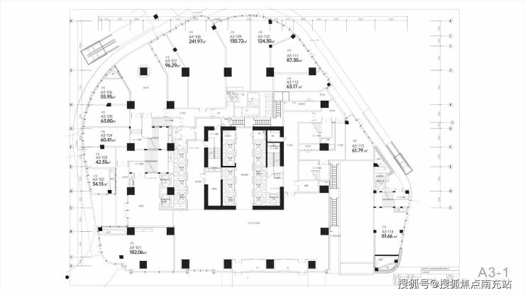
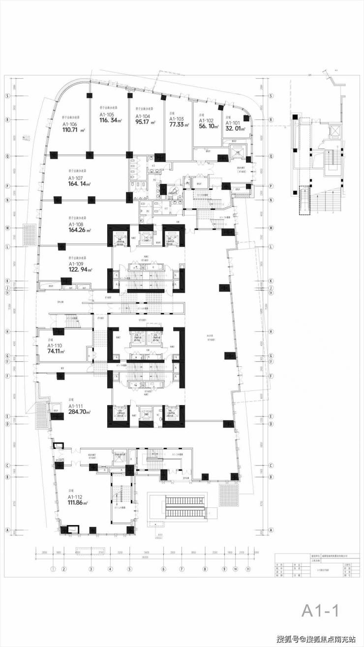
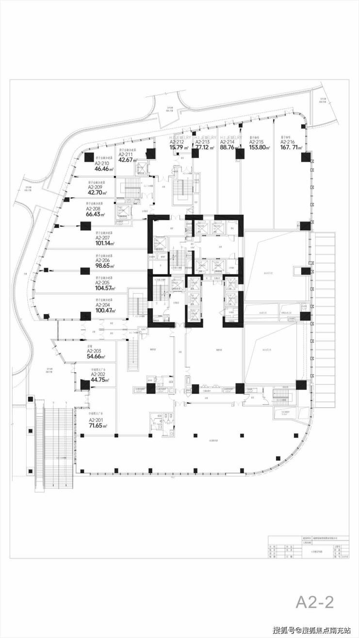
【户型鉴赏】
【复地金融岛商铺】售楼部电话:028 - 62444811(已认证)
【复地金融岛商铺】销售经理电话:15388440405(微信同号)
温馨提示:为了提供更高更好的接待服务质量,看房请提前1小时致电预约!
声明:本文由入驻焦点开放平台的作者撰写,除焦点官方账号外,观点仅代表作者本人,不代表焦点立场。


