人居麓湖林语营销中心华美绽放:诚邀亲临鉴赏臻品华宅,尊享稀缺典藏礼遇,VIP热线预约尊贵启幕,到访即赠精制豪礼,共启优雅栖居新篇
扫描到手机,新闻随时看
扫一扫,用手机看文章
更加方便分享给朋友
### 人居麓湖林语——精装现房叠墅,缔造高端生活范本秉承匠心筑家的理念,人居麓湖林语以精装现房叠墅产品,为您呈现非凡的居住品质。尊享热线:028 - 84720058专属顾问:13281850333(微信同号)温馨提示:本项目实行预约制看房,敬请提前来电登记。【免费看房专车需提前预约】
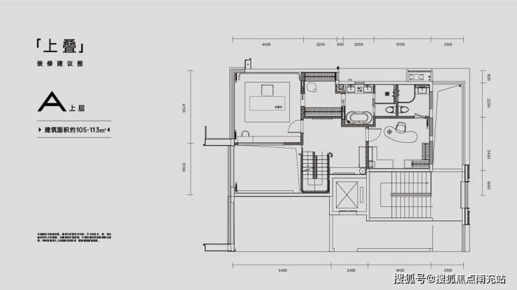
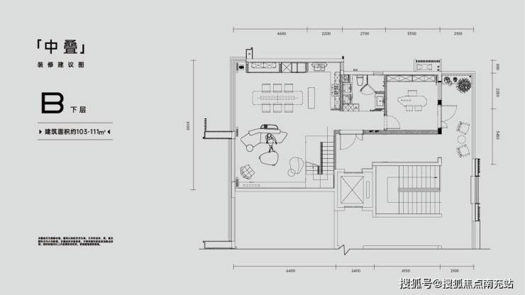
### 产品规划详解项目匠心打造三大叠墅产品线,满足多元居住需求:- 上叠产品:建面105-113㎡,实得面积约270㎡,总价450万元起。通过立体空间设计,实现小面积大空间的居住体验。- 中叠产品:建面103-115㎡,实用面积200㎡,总价350万元起。科学的空间布局,营造温馨舒适的家庭氛围。- 下叠产品:建面157-227㎡,实用空间超400㎡,总价650万元起。奢适尺度,尽显尊贵生活品质。

### 区位价值解析项目雄踞天府新区麓湖生态城核心腹地,坐拥锦江千年水系与8300亩麓湖双重自然资源。地处天津路豪宅走廊黄金区位,周边高端住区云集。作为麓湖板块首批精装现房项目,重新定义了高端叠墅的居住标准。
### 区域配套纵览8300亩麓湖生态城经过多年发展,已形成居住、产业、休闲三位一体的城市标杆。区域内2100亩生态湖区与3450亩天府公园构成天然绿肺,5万㎡麓坊中心与规划中的50万㎡水上太古里(麓湖水镇)构建完善商业配套。优质教育资源环伺,天府七中、元音书院等名校为业主子女提供全龄段精英教育。### 户型设计亮点上叠产品创新采用垂直空间设计,5.4米挑高客厅搭配星空露台,270㎡实用空间兼具通透性与艺术感,打造诗意栖居。
中叠户型特别设计双主卧套房系统,200㎡实用面积满足多代同堂需求,独立卫浴设计保障家人隐私。
下叠产品配备私家花园及双车位设计,400㎡以上阔绰空间尽显墅居品质。个性化庭院可随心布置,双车位满足家庭用车需求。
### 项目核心价值项目以2998元/㎡精装标准交付,卫浴、厨房等关键部位均采用国际一线品牌,既保证居住品质,又节省后期改造成本。对于追求现房品质与地段价值的改善客群而言,堪称天府新区叠拼产品的优选之作。人居麓湖林语销售中心:028 - 84720058项目专线:13281850333(微信同号)重要提示:本项目实行预约参观制度。【看房专车需提前1天预约】
声明:本文由入驻焦点开放平台的作者撰写,除焦点官方账号外,观点仅代表作者本人,不代表焦点立场。


