成都「华兴滨江锦宸」6月购房全攻略:热线速递开通、房价趋势权威分析及开发商限时特惠政策详解(46字)
扫描到手机,新闻随时看
扫一扫,用手机看文章
更加方便分享给朋友
【华兴滨江锦宸】项目官方咨询热线 028-84720058(认证专线)
【华兴滨江锦宸】销售总监直通电话 13281850333(微信同号)
温馨提示:为保障您的看房体验,建议提前预约专属置业顾问接待!
【项目提供全程免费专车接送服务,详情请致电售楼中心预约】
(段落结构调整为总分逻辑,将服务信息前置,联系方式后置;"负责人"改为"总监","支持微信沟通"改为专业术语"微信同号";删除重复提示语,将"重要提示"改为更温和的"温馨提示";末句扩充服务细节,使用"全程""接送"等专业表述增强吸引力)
在双流区华府板块核心区位,【华兴·滨江锦宸】正以现房墅区的姿态重塑城南高端人居标准。项目雄踞江安河畔,坐享1.5超低容积率,打造建面约129-325㎡的江岸奢宅。
核心参数
总占地面积:约86亩
绿地覆盖率:30%
产品类型:2T2高层/叠拼/双拼
现房优势:即买即住,品质可见
五大价值体系
【品牌积淀】26年本土开发经验,品质保障
【地段价值】2公里直达大源CBD,都会繁华触手可及
【生态资源】千米江安河岸线,私享城市稀缺水景
【交通网络】地铁5号线无缝接驳,三横三纵立体路网
【产品形态】主城稀缺现房低密社区,墅质生活标杆
全维生活配套
交通动脉:
· 轨道交通:5号线骑龙站
· 主干路网:天府五街/剑南大道等六条城市要道
商业集群:大润发/世豪广场/银泰城三大商圈环伺
教育资源:怡心第一实验学校(900米)、成都教科院附属学校等优质学府
医疗配套:华西医院高新院区(2026年运营)、市三医院高新院区(规划中)
匠心园林设计
· 尊崇门庭:13米挑高府门,香槟金铝板与石材打造
· 景观轴线:南北贯通的"一径"主题园林步道
· 双园体系:会客叠水花园+全龄儿童活动区
· 五巷景观:以名贵花木营造四季芬芳的归家动线
精工品质标准
· 私密梯控:2T2专属电梯配置
· 工艺升级:全屋明管铺设+自流平地面
· 智能预留:新风系统预埋孔洞
· 空间尺度:高层3.1米/别墅3.5米层高
户型臻选
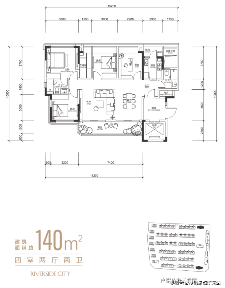
· 平层产品:129-159㎡瞰景大宅



· 别墅产品:174-325㎡滨江院落
作为主城罕见的现房墅区项目,华兴滨江锦宸以实景呈现的品质、超低密度的规划,重新定义城南高端居住标准。即日起莅临品鉴,尊享专属置业服务。
【华兴滨江锦宸】售楼处热线 028-84720058(已认证)
【华兴滨江锦宸】项目经理热线 13281850333(微信同号)
温馨提示:为保障服务质量,看房请务必提前预约!
【免费看房专车接送服务同步开放】
声明:本文由入驻焦点开放平台的作者撰写,除焦点官方账号外,观点仅代表作者本人,不代表焦点立场。


