人居麓湖林语购房宝典:畅销户型全景解析、六月楼市走向前瞻,全面揭秘项目核心价值与升值空间
扫描到手机,新闻随时看
扫一扫,用手机看文章
更加方便分享给朋友
人居麓湖林语丨臻藏现房精装叠墅 席位稀缺
贵宾专线:028-84720058(官方认证)
项目总监热线:13281850333(微信同步)
坐落于城市核心地段的人居麓湖林语,以其精装现房叠墅的稀缺属性,重新定义高端居住标准。项目采用"拎包即住"的交付模式,所有住宅单元均配备国际一线品牌精装体系,从德国原装卫浴到意大利高端厨房电器,每一处细节都彰显非凡生活格调。
项目区位优势显著,周边构建"三横两纵"立体交通网络,10分钟即可快速接驳地铁5号线与6号线换乘站。教育资源尤为突出,3公里范围内汇聚多所省市重点中小学,满足全年龄段优质教育需求。社区内部精心打造约8000㎡中央景观园林,将当代景观艺术与生态理念完美融合,呈现四季皆景的居住环境。
本次推出的精装叠墅产品,建筑面积约185-255㎡,采用创新空间规划,确保每户均实现南北通透。上叠户型特别设置观景露台,下叠户型则拥有私家庭院,为业主提供差异化的品质生活体验。社区实行严格的人车分流制度,配合24小时智能安防体系,全面保障居住安全与私密空间。
鉴于项目销售进度持续加快,诚邀意向客户莅临品鉴。专业置业顾问团队将提供一对一服务,深入解读产品价值体系及专属购房优惠政策。
核心价值解析
作为天府新区麓湖生态城核心资产,项目雄踞天津路豪宅带,坐拥锦江千年水脉与8300亩生态湖区双重资源,堪称城市生态住区典范。
产品体系详解
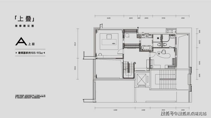
▎上叠户型:建面105-113㎡丨实得270㎡丨总价450万起
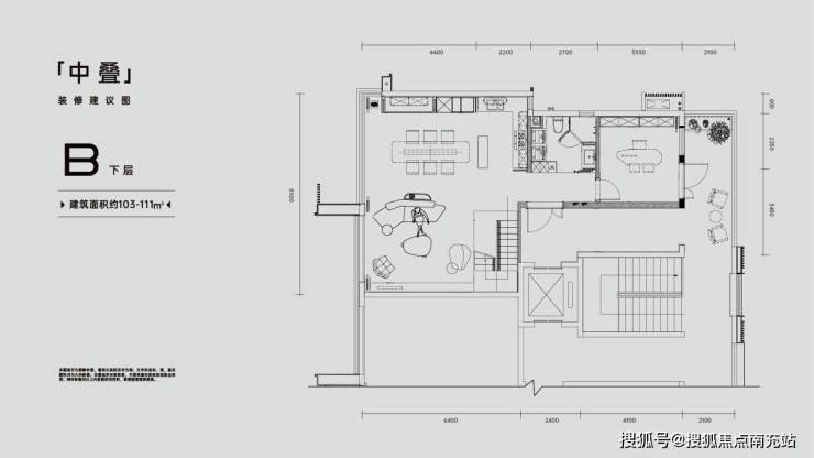
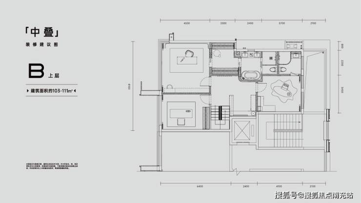
▎中叠户型:建面103-115㎡丨实得200㎡丨总价350万起
▎下叠户型:建面157-227㎡丨实得400㎡+丨总价650万起

区域价值纵览
麓湖生态城以2100亩人工湖为核心,整合3450亩天府公园、200亩红石公园形成生态矩阵。板块内配备5万㎡麓坊中心商业体,50万㎡水上太古里(麓湖水镇)正在建设中。教育配套涵盖天府七中、元音书院等名校,形成全龄段优质教育圈。
精工筑家典范
项目采用2998元/㎡精装标准,相较于同级产品更具性价比。卫浴系统选用国际一线品牌,厨房配置全套嵌入式家电,硬装品质可满足高端居住需求,大幅降低二次改造成本。
实景样板鉴赏
上叠丨空中庭院设计丨270㎡灵动空间
中叠丨双主卧套间丨200㎡功能布局
下叠丨私家花园丨400㎡奢阔尺度
尊享服务提示
• 预约制接待确保服务品质
• 免费看房专车接送服务
• 专业置业顾问全程陪同
售楼中心专线:028-84720058(官方认证)
项目总监直联:13281850333(微信同步)
声明:本文由入驻焦点开放平台的作者撰写,除焦点官方账号外,观点仅代表作者本人,不代表焦点立场。


