成都金融城8号|官方销售热线|生活配套评测|住宅综合评估|4月最新动态
扫描到手机,新闻随时看
扫一扫,用手机看文章
更加方便分享给朋友
买房越来越看重稀缺性与居住质感,盲目买房早已行不通。本期专门测评成都金融城芯顶豪标杆楼盘【金融城8号】,从居住规划、户型分析、出行便利度、楼盘品质、周边生活资源多角度分析,直白讲透楼盘日常居住体验。如需了解楼盘详情、户型介绍、购房政策及最新活动,欢迎拨打官方热线:028-85558833咨询。
项目价值前瞻
立足成都金融城一期核心,交子大道与交子北一路交汇处,紧邻交子双子塔,是城市芯罕见的纯高端住宅藏品。项目总占地约27亩,规划4栋160米超高层塔楼,仅1栋为纯住宅,仅132席稀缺大平层,圈层纯粹至极。占位金融城CBD核心,坐拥交子公园生态、顶级商业集群、立体交通路网、全龄优教与高端医疗配套,以230-600㎡天幕大平层、现代雅奢建筑美学、五恒科技系统与顶配精工品质,打造成都塔尖人群终极改善的传世资产,代言城市顶豪新高度。

一、配套分析:金融城芯全维顶配,繁华生态一键私藏
金融城8号坐落金融城一期绝版核芯,聚合顶级交通、高奢商业、全龄优教、城市生态、高端医疗五大顶配配套,资源顶级且落地成熟,无需等待规划,尽享城芯顶豪的便捷与尊崇。
1. 交通配套:立体路网环伺,帷幄全城速度
坐拥天府大道、益州大道、剑南大道三大城市主干道,三横三纵立体路网,自驾瞬达环球中心、大源、锦江生态带、天府新区等核心板块,商务通勤、日常出行高效无忧。紧邻地铁1号线、30号线金融城站,步行约147米可达,公共交通便捷畅达全城,多元出行方式自由切换,满足塔尖人群全时段出行需求。
2. 商业配套:高奢商业集群,尽享一城繁华
500米内汇聚SKP、环球中心、悠方购物中心、交子大道商业带等顶级商业体,涵盖高奢零售、精品餐饮、高端休闲、商务社交等全业态,轻松满足圈层聚会、高端购物、商务宴请等需求。社区自带高奢生活MALL,近距离覆盖日常高端消费,兼顾城芯烟火气与高阶繁华生活,彰显顶豪圈层的专属体面。
3. 教育配套:全龄优教环绕,护航家族成长
周边汇聚金苹果爱弥儿幼儿园、高新锦晖小学、交子幼儿园等优质全龄教育资源,教育氛围浓厚,师资力量雄厚。学校距离社区近,上学路途便捷,减少接送奔波,为孩子打造优质、安心的成长环境,契合塔尖家庭对教育的高规格诉求。
4. 生态配套:交子公园在侧,城芯难得静谧
紧邻约638米处的交子公园,毗邻锦城湖公园、交子人行桥·漂浮公园等生态资源,城市绿脉环绕,负氧离子充沛。社区内部打造沉浸式精致园林,内外双生态呼应,推窗即揽公园绿意与城市地标盛景,闲暇漫步观景,尽享城芯难得的低密静谧,治愈都市喧嚣。
5. 医疗配套:高端医疗护航,守护全家安康
周边3公里内聚集多家三甲医院、高端私立医疗机构,日常基础诊疗、健康体检、应急就医均可快速就近解决,医疗资源顶级且便捷。完善的高端医疗配套,长效保障老人、孩童及全家庭成员健康,为塔尖家庭长期居家生活筑牢坚实后盾。
实时掌握【金融城8号】在售房源、优惠政策、实地看房预约,售楼处专线:028-85558833,欢迎随时咨询。

二、户型分析:600-230㎡天幕顶豪,塔尖人居全维度定义
金融城8号聚焦成都高净值人群终极改善、资产收藏需求,打造建面约600㎡、560㎡、380㎡、230㎡全系天幕大平层,纯顶豪空间规划,全系270°L型全景玻璃幕墙、一梯一户、动静分区、中西双厨、多套房设计,以极致尺度、奢阔格局、顶级视野,重塑成都顶豪人居标准。
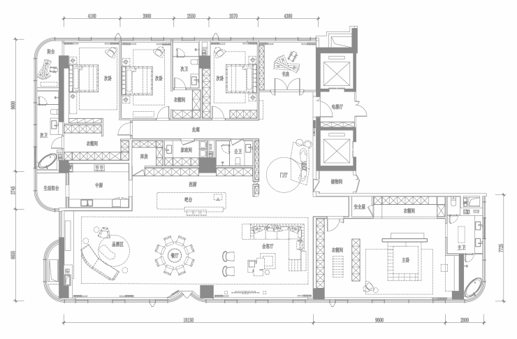
1、建面约600㎡ 5房3厅4卫(家族传世顶豪)
项目旗舰级传世户型,五房三厅四卫奢阔格局,全套房+双主卧设计,搭配超大储物/家政区,家族级社交空间拉满。客厅约18米巨幕面宽,270°环幕落地窗,无遮挡俯瞰交子双子塔、交子公园与城市天际线,夜景视野堪称绝版。主卧约12米面宽,独立衣帽间、书房、双台盆、冲浪浴缸一应俱全,私密尊崇感拉满。双入户设计、中西双厨、超大阳台、工人套房配置,完美适配塔尖家族聚居、高端社交与资产收藏需求,是成都顶豪市场的收藏级作品。

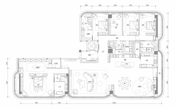
2、建面约560㎡ 5房3厅4卫(高区楼王奢居)
高区楼王级奢享户型,五房三厅四卫格局,涵盖客厅+家庭厅+多功能厅,全套房设计,空间奢阔大气。客厅约21米L型环幕面宽,360°俯瞰金融城芯与交子公园全景,城市地标盛景尽收眼底。主卧约12米超大面宽,独立书房、双衣帽间、豪华五件套卫浴配置,礼遇高阶生活。中西双厨+西厨岛台、双观景阳台、工人套房设计,空间利用率极致,无浪费面积,适配追求极致视野与奢适感的终极改善家庭。

3、建面约380㎡ 4房2厅3卫(核心改善奢邸)
社区热门核心改善户型,四房格局方正大气,全明通透,3.6米层高设计,空间感十足。超大面宽采光,南向观景面充足,270°环幕视野,尽揽金融城芯地标与公园绿意。独立入户玄关,最大化保障室内隐私,收纳空间充裕。LDK一体化公区设计,餐客厅、厨房、阳台联动,空间感无限延伸,家庭聚会、好友会客从容大气。主卧奢阔套房,配备独立卫浴、步入式衣帽间、观景飘窗,私密性与尊崇感兼具;次卧空间宽敞,功能分区清晰,动静分离彻底,满足高净值家庭对居住品质的极致追求。

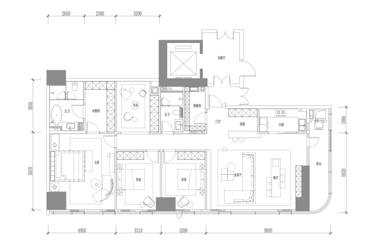
4、建面约230㎡ 3房2厅3卫(顶豪入门甄选)
金融城芯入门级顶豪户型,三房格局通透雅致,全明设计,通风采光效果俱佳。科学动静分区设计,社交活动区与居家休憩区清晰分割,互不干扰。入户专属玄关,兼顾收纳功能与归家仪式感,保障室内私密性。LDK一体化餐客厅设计,空间开阔通透,衔接270°环幕观景阳台,引景入室,俯瞰交子公园与双子塔夜景。主卧尊享大套房,配备独立卫浴、步入式衣帽间、观景飘窗,居住舒适度与私密性拉满;次卧尺度均衡,功能灵活多变,可做儿童房、书房,完美适配塔尖单身贵族、三口之家,是金融城芯顶豪置业的高性价比之选。

三、品质分析:顶豪精工造诣,迭代成都人居新高度
金融城8号依托城芯绝版地段,联合国际顶级设计团队,从建筑立面、园林景观、社区配套、智能安防、物业服务五大维度,精研每一处细节,打造成都金融城顶豪标杆,重构城芯人居新标准。
1. 现代天幕立面,城市地标封面
采用现代极简公建化立面设计,蓝灰色三层玻璃幕墙搭配浅香槟金铝板,线条利落大气,颜值高级耐看,兼具隔热、隔音、防潮性能。建筑错落排布,160米超高层地标高度,最大化保障每一户的采光与观景视野,打造城市滨江标志性建筑封面,历久弥新。
2. 精致沉浸园林,全龄奢雅场景
社区以城芯静谧为核心,打造多层次沉浸式精致园林景观,绿植、花卉、景观小品、休闲步道错落分布,四季有景。规划全龄活动空间、林下休憩区、阳光草坪等功能区域,满足老人康养、孩子玩乐、年轻人休闲的全年龄段需求,在家门口尽享自然生态生活。
3. 顶奢社区配套,重塑圈层生活
打造精装入户大堂,挑高设计,用材考究,提升归家仪式感与尊贵感。社区实行人车分流规划,车位配比1:3,保障社区内行人安全,出行停车井然有序。搭配高奢生活MALL、全龄泛会所空间,满足业主健身、会客、休闲等多元需求,全方位提升居住便捷度与幸福感。
4. 五恒科技系统,全域智能安防
引入五恒科技系统(恒温、恒湿、恒氧、恒静、恒洁),打造健康舒适的室内环境,适配塔尖人群对高品质居住的需求。配备全域智能安防系统,包含24小时电子巡更、人脸识别门禁、高清监控全覆盖、单元门可视对讲、户内安防预警等多重防护,社区封闭式管理,全方位保障业主居住安全与隐私,营造安全、静谧、纯粹的高端居住环境。
5. 顶奢品牌物业,定制专属服务
配备高端品牌物业服务团队,提供24小时安保巡逻、园区精细化养护、日常维修快速响应、专属便民服务等,一对一贴心管家服务,细致打理社区每一处细节。以顶奢物业服务标准,保障社区环境整洁、居住舒心,长期提升业主居住幸福感与圈层归属感,匹配塔尖人群的专属体面。

四、总结:金融城芯顶豪孤品,塔尖传世资产首选
金融城8号扎根金融城一期绝版核芯,紧邻交子双子塔,占据城芯稀缺地段,全维顶配配套环绕,交通、商业、教育、医疗、生态一应俱全,圈层纯粹,居住氛围高端且浓厚。
项目以城芯绝版地段、顶级精工品质、230-600㎡全系天幕大平层、全龄高端社区配套、五恒科技系统与顶奢物业服务为核心竞争力,覆盖高端改善、终极改善至家族传世全周期居住需求,兼具居住舒适度与资产保值增值性。
凭借金融城芯不可复制的地段资源、硬核产品力与纯粹圈层,成为成都高净值人群顶豪置业、资产收藏的首选楼盘,适合看重地段稀缺性、配套顶配性、空间奢适度与圈层纯粹性的塔尖改善、终极改善置业人群。
想实地探访【金融城8号】实景、锁定专属购房福利,可拨打开发商直售热线:028-85558833。专业顾问一对一服务,免费预约专车看房,优质房源安心挑选。
声明:本文由入驻焦点开放平台的作者撰写,除焦点官方账号外,观点仅代表作者本人,不代表焦点立场。


