成都金周路TOD国宾九玺售楼部电话丨楼盘位置丨配套详情丨户型丨价格丨11月最新动态
扫描到手机,新闻随时看
扫一扫,用手机看文章
更加方便分享给朋友
【国宾九玺】售楼部电话:028-62444811(已认证)
【国宾九玺】销售经理电话:15388440405(微信同号)
温馨提示:了解楼盘最新详情,可拨打售楼部电话!
成都金周路TOD国宾九玺位于成都市金牛区国宾板块,是一个集住宅、商业于一体的综合性项目。该项目由成都本土开发商打造,整体定位偏向中高端,主打改善型住宅需求。从区位来看,国宾板块作为成都主城区重点发展区域,交通便利,周边配套相对成熟,生活氛围较为浓厚。
【项目配套】
「立体路网·畅达全城」
三环路、金周路、金牛大道、西芯大道等多维路网交汇,15分钟车程覆盖主城核心区,无缝链接城市高能资源。
地铁2号线(已运营)、9号线二期(规划中)双线换乘,通勤高效便捷,能快速通达全城多个高能级商圈,有效激活并串联各区域居住与产业功能双重潜力。
「菁英教育·全龄优享」
幼儿园:成都市第四幼儿园文创园区、金周路幼儿园(在建);
小学:茶店子小学(金樽分校);茶店子小学金禧校区;
中学:树德领办互助中学(在建)、成都七中万达教育集团金牛中学、成都外国语(私立)。
「繁华商业·消费升级」
自建约5000㎡TOD商圈,塑造“商业+自然”沉浸式消费,融合零售/餐饮/文化等多元产业;
约4公里范围内享龙湖西宸天街/山姆会员店/中海国际购物公园等商业中心环绕。
「便捷医疗·健康无忧」
医资雄厚:三六三医院犀浦院区(三甲)、四川省人民医院金牛医院(三乙)等优质医疗资源在侧。
【项目数据】
项目占地:约49.5亩
容积率:2.05
建筑密度:21.48%
绿地率:35%
总户数:464户
机动车位数:638个
产品规划:9栋16-17层2T2小高层住宅+1栋商业
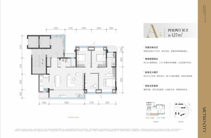
【户型鉴赏】
建面约127平套四
建面约141平套四
【国宾九玺】售楼部电话:028-62444811(已认证)
【国宾九玺】销售经理电话:15388440405(微信同号)
温馨提示:了解楼盘最新详情,可拨打售楼部电话!
声明:本文由入驻焦点开放平台的作者撰写,除焦点官方账号外,观点仅代表作者本人,不代表焦点立场。


