成都【广都鑫中心】售楼处电话,诚邀莅临品鉴!精选户型展示与最新价格资讯,恭候垂询。
扫描到手机,新闻随时看
扫一扫,用手机看文章
更加方便分享给朋友
【广都鑫中心】售楼处电话:028 - 62444811(已认证)
【广都鑫中心】销售经理电话:15388440405(微信同号)
温馨提示:若想获得更优质的接待服务,看房请至少提前1小时致电售楼处预约!
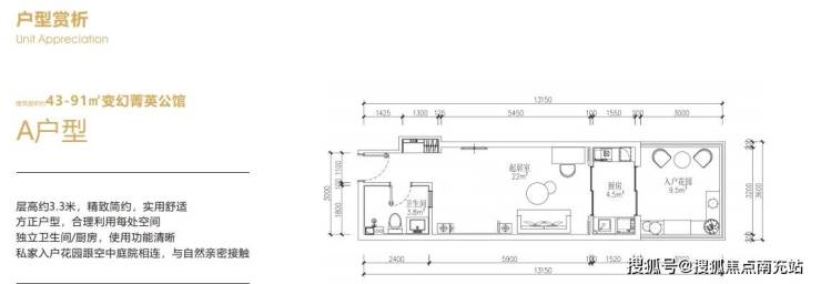
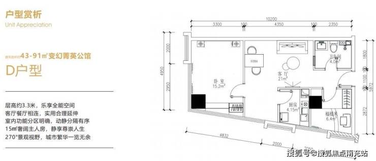
【项目参数】方面,广都鑫中心项目占地面积为28.35亩,建筑面积达241470.5平方米。目前主要在售的是双发天禧中心2号楼1、2单元。其主力户型面积为57㎡,面积段涵盖43㎡ - 91㎡,主力面积集中在55 - 60㎡。该项目的层高处于3.25 - 3.3米之间,总高25层。其中 - 1 - 4F规划为商业区域, - 2到 - 4F设置成车位,5 - 25F则是公寓。首开楼层为13F、22F。项目实现了水电气三通(商业),公摊约30%。在梯户比上,一单元是6T33户,二单元是6T37户,物管费为4.9元。交付时间原本合同约定在2025年12月31日前,如今提前至2025年9月交房,交付标准为清水房。项目均价在6600 - 7500元/㎡,总价区间为30 - 68万。付款方式为一次性(整层可协商分期)。整层面积约4100㎡ ,报价3000万(15 - 20F);一单元面积约1930㎡ ,报价1400万;二单元面积约2170㎡ ,报价1600万。其开发商是成都双发君地置业有限公司,物业公司为四川博蕙京通物业管理有限公司。【区域位置】上,广都鑫中心坐落于成都市天府新区天府大道1888号。这里精心打造的是智能化绿色长廊式的菁英空间,是集高端酒店、文化会所及中高端商业配套于一体的综合体物业。 【核┃心┃卖┃点】十分突出。广都鑫中心占据天府大道中轴线上的关键位置,是该区域唯一在售的总价低、小面积且水电气三通的产品,周边楼盘与之相比不存在竞品。项目周边配备双地铁(1号线/18号线),为业主出行提供了极大便利。而且,该项目还可交由锦江国际(世界第二,亚洲第一酒店集团)旗下“欧暇地中海”酒店运营。清水交房后有8个月的装修期(此期间无收益),装修完成后的6个月作为酒店培育期,无保底收益,但可享受酒店运营分红收益(收益五五分成)。从第7个月开始,业主正式享受保底收益(保底30元/平)加酒店运营五五分红,平均每月收益可达3800 - 4000元。项目地处金融城、新川科技园、天府新区中央商务区三大板块交汇的黄金金三角区域,作为桥头堡位置,形成价值洼地,能够大量吸附周边区域的人流。每层自带600 - 700㎡高线公园,且每层仅有十户可额外享受7 - 9㎡阳台空间。其核心价值体现在多个方面:1. **地段优势**:项目位于城市中轴天府大道高新区与天府新区交界处,处于天府新区门户位置,地段价值独一无二,难以复制。2. **稀缺特性**:在天府大道中轴线上,小面积、低总价且水电气三通的物业极为稀缺,投资门槛低、风险小、回报高。 3. **交通便捷**:属于双地铁物业(地铁1号线、18号线),极大提升出行效率。4. **市政配套完善**:紧邻天府新区政务中心,可享受政策红利,周边还有极地海洋世界这一热门旅游打卡点。5. **建筑风格独特**:新现代建筑风格进一步凸显了项目在天府大道上的标志性地位。6. **人流保障充分**:位于金融城、新川科技园、天府新区中央商务区金三角区域,强大的吸附能力为房屋出租提供了有力保障。7. **居住体验佳**:超2万平米绿化、水景观、城市广场,商业产权住宅配套,星级物业服务提升居住舒适度,负1层还设有生活超市。8. **入驻商家高端**:高端酒店希尔顿惠顿商旅酒店已正式签约入驻。9. **租金高需求大**:项目周边同户型公寓租金可达2500元,写字楼租金70 - 120元/平米。10. **投资潜力大**:项目斜对面最新土拍价格高达20700元/平米,入手即赚。 【交通配套】上,广都鑫中心堪称双地铁上盖物业,地理位置优越。距离1号线华阳站仅300米,距18号线海昌路站400米。周边还有503、504、T205等二十条公交线路穿梭,形成了便捷的公共交通网络。区域内更是构建起五纵四横的立体交通网络。其中,五纵分别为剑南大道、益州大道、天府大道、梓州大道(科华路南延线)、成自泸高速;四横则是三环路、绕城高速、华阳大道、麓山大道,无论是日常出行还是出城远行都极为便利。【商业配套】也十分丰富。项目1 - 4楼自带30000方的上海协星星光商业体, - 1楼设有大型超市盒马生鲜,满足日常生活购物需求。 - 2至 - 4楼配备1661个停车位,解决停车难题。项目斜对面就是家乐福购物中心,南面300米处正在修建的三利广场,是一个集商务办公、综合购物、高端酒店、商业体验等多种功能于一体的综合性购物广场。项目对面还有金地三期约70万方的大型商业综合体,周边还有沃尔玛山姆会员店、红星美凯龙、富森美等综合性商业设施。随着区域的不断发展,项目在实现优质人居蓝本的同时,后期配套还将迎来进一步升级。【医疗配套】方面,周边医疗资源丰富,拥有天府新区人民医院、四川石油总医院、玛利亚天府妇产儿童医院、天府新区安琪儿国际妇女儿童医院、四川省中西医结合医院、四川宝石花医院等众多医疗机构,为业主的健康保驾护航。【生态娱乐】上,项目周边生态娱乐资源众多,紧挨着海昌极地海洋公园、南湖梦幻岛以及南湖湿地公园等,为业主提供了丰富的休闲娱乐选择。【优质教育】上,周边分布着金苹果幼儿园、天府四小、天府五小、天府实验小学、天府实验中学、天府实验外国语学校等优质教育资源,让孩子在家门口就能享受到良好的教育。 【多变户型】为业主提供了多样选择,满足不同需求。 【装修风格】也别具特色,给业主带来独特的居住体验。 【广都鑫中心】售楼处电话:028 - 62444811(已认证)
【广都鑫中心】销售经理电话:15388440405(微信同号)
温馨提示:若想获得更优质的接待服务,看房请至少提前1小时致电售楼处预约!
声明:本文由入驻焦点开放平台的作者撰写,除焦点官方账号外,观点仅代表作者本人,不代表焦点立场。


