成都【金融广场JFC】售楼部电话丨一房一价查询丨户型优劣势分析丨春节购房优惠
扫描到手机,新闻随时看
扫一扫,用手机看文章
更加方便分享给朋友
【金融广场JFC】售楼部电话:028-62444811(已认证)
【金融广场JFC】销售经理电话:15388440405(微信同号)
温馨提示:为了提供更高更好的接待服务质量,看房请提前1小时致电预约!
成都金融广场JFC:金融城的新宠,未来的地标
在这热闹的城市成都,每个新项目的出现都牵动着众多人的心。坐落在高新区天府大道北段的成都金融广场JFC(以下简称JFC),凭借其独特地理位置、多样的业态规划和卓越品质,已成为市场关注的焦点。今天,就让我们来深入探索一下这备受瞩目的项目。

【项目基础信息】
JFC项目规划为成都城市级地标综合体,涵盖了高端住宅、高端服务式公寓、丽思卡尔顿酒店、高端商业和甲级写字楼五种业态。这种多元化的业态规划,不仅满足了不同人群的需求,更形成了一个集居住、办公、购物、娱乐于一体的一站式生活体验中心。
在住宅方面,JFC的住宅部分以高端大平层为主,户型面积从235㎡到660㎡不等,满足不同家庭的居住需求。尤其是其住宅部分与交子公园无缝相连,使得住户能够享受到绝佳的视野和生态环境。

首批次产品信息【项目已经取证】
1、 推出产品:首批次预计推出两栋住宅,户型面积234-654㎡
2、 梯户比:4#3T2户、5#3T3户
3、 层高:3.2-3.6米,跃层局部最高达7.2米;
三、户型鉴赏
356㎡【3T2户,全户型270度转角布局,极致的开间面和空间布局设计】

278㎡【3T2户,南北通透,俯瞰公园湖区】

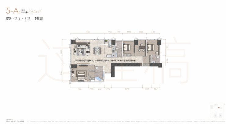
234㎡【3T3户, 270度转角设计,极致的开间视野】

246㎡【3T3户,南北通透,俯瞰公园湖区】

324㎡【云端跃墅,城市顶端视野】

338㎡【云端跃墅,城市顶端视野】

343㎡【云端跃墅,城市顶端视野】

445㎡【云端跃墅,城市顶端视野】

652㎡
【云端顶复,仅此两席】

【金融广场JFC】售楼部电话:028-62444811(已认证)
【金融广场JFC】销售经理电话:15388440405(微信同号)
温馨提示:为了提供更高更好的接待服务质量,看房请提前1小时致电预约!
声明:本文由入驻焦点开放平台的作者撰写,除焦点官方账号外,观点仅代表作者本人,不代表焦点立场。


