都江堰「人居未来城」7月房价动态深度剖析:热卖户型空间布局优势、升值潜力解析,同步揭秘限时钜惠与24小时VIP置业通道
扫描到手机,新闻随时看
扫一扫,用手机看文章
更加方便分享给朋友
中国 · 成都 | 兴城人居 · 未来城

项目概况
由成都兴城人居地产投资集团倾力打造的人居未来城,坐落于一环路江安河畔黄金地段。项目占地约69亩,总建筑面积达11.5万平方米,规划640户精品住宅,容积率仅1.8,绿化率高达35%,打造低密生态住区。
核心参数
· 产品类型:8-10层精装住宅· 户型区间:112-142㎡三至四房· 参考均价:10000-13000元/㎡· 梯户配置:1梯2户/1梯3户· 车位配比:843个机动车位· 物业服务:2.5元/㎡/月(暂定)
区位价值
作为主城一环稀缺新作,项目坐拥三大核心优势:1. 生态资源:毗邻江安河生态走廊,尽享35%社区绿化与城市绿道系统2. 商业配套:自建河景商业体,5分钟可达成熟商圈3. 文教医疗:3-18岁全龄教育配套,优质医疗资源环伺
产品亮点
项目汲取浙江未来社区营造经验,创新打造智慧人居:· 智能家居系统实现全屋互联· 精工装修交付品质保障· 纯板式结构确保户户通透

核心卖点
国企匠造:兴城人居九大项目联袂重塑都江堰人居标杆稀缺地段:主城一环最后可开发地块,坐拥帝王级区位生态宜居:年均气温10-22℃,负氧离子含量丰富全能配套:立体交通网络+全维生活配套构建15分钟生活圈
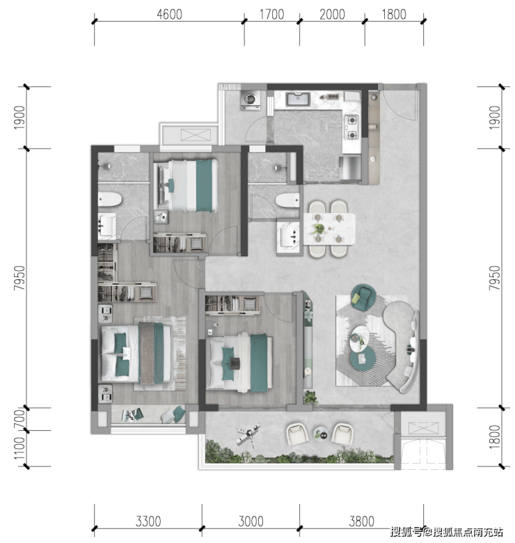
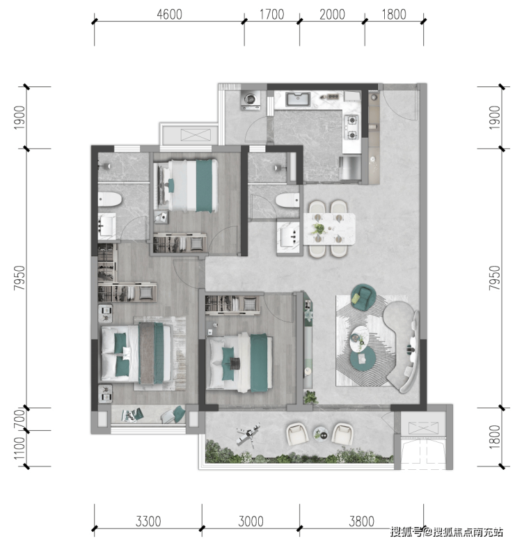
户型解析
112㎡三居· 南北通透全明格局,L型厨房科学动线· 6.8米观景阳台,主卧套房带独立卫浴· 方正厅室满足三代同堂需求

120㎡三居· 16.6米南向采光面,7.1米宽厅设计· 6.6米景观阳台衔接客厅餐厅· U型厨房连接生活阳台,明卫设计


140㎡四居· 5.8米横厅连接观景阳台· 独立中西双厨配置,多功能家政间· 主卧套房配备步入式衣帽间

预约通道
售楼部热线:028-84720058(官方认证)客户经理专线:13281850333(微信同号)· 预约看房享受专属接待服务· 提供免费看房车接送(需提前预约)
温馨提示:为保障服务质量,请务必提前预约参观。
声明:本文由入驻焦点开放平台的作者撰写,除焦点官方账号外,观点仅代表作者本人,不代表焦点立场。


