成都【交投溪云善成】售楼处热线|户型面积解析|最新楼盘动态与口碑评价|二月价格趋势分析
扫描到手机,新闻随时看
扫一扫,用手机看文章
更加方便分享给朋友
【交投溪云善成】售楼部电话:028-62444811(已认证)
【交投溪云善成】销售经理电话:15388440405(微信同号)
温馨提示:为了提供更高更好的接待服务质量,看房请提前1小时致电预约!
成都高新区天府五街的新盘交投溪云善成启动销售,项目属于高新区大源,是成都城市发展成熟、配套设施完善的代表性区域。今年3月,招商蛇口以3.17万元/㎡的楼面地价拿下区域内一块宗地,溪云善成由于特定的“限价地”的原因,热度很高——溪云善成清水限价仅2.99万元/㎡,周边的地价已经超过了这一房价,价格优势更加突出。项目价格与周边同品质产品和二手房形成显著剪刀差。
天府5街骑龙片区,可以说是目前大源原住民和新大源人的优选项。作为高新区具备成片土地开发的区域,规划起点极高,正着力打造一个规划定位更高、密度更低、生态与居住更舒适的新大源。
东侧,占地约368亩的骑龙创新园已全面打围;北侧,总绿地面积约28.8万平方米的骑龙绿轴公园一期已呈现;周边,四川大学华西高新医院、成都市第三人民医院高新医院两所三甲医院正在建设中。一个集产业、生态、医疗、宜居于一体的闭环正在形成。从此孩子有好学校上学、父母有好公园遛弯,而你依然可以生活工作在大源。
如果你的孩子2027年要读小学或者小升初,而你还在纠结他的学位,你可以来看看溪雲善成,今年已纳入教科院附小(东区)划片范围。
在这里不细说教科院东区的好处了,只谈一点——该校每年市、区两级指标到校名额达230个,意味着近三成学生有快速升入优质高中的可能。在高新区义务教育质量持续攀升的背景下,这一教育资源的叠加,构成了家庭长期主义决策中的压舱石。
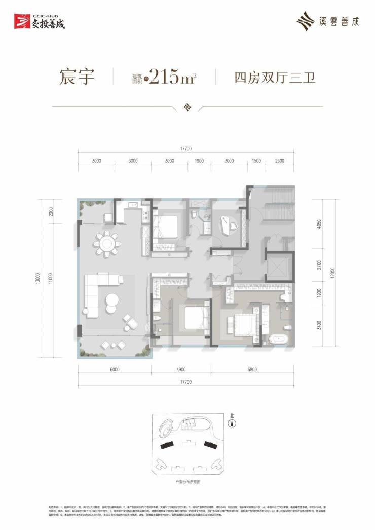
项目占地51亩,容积率2.5,打造了商业办公、商业街、以及7栋住宅。其中,分为约143㎡、185㎡和215㎡三种户型。
项目没有独立的会所空间,但所有楼层采用了全架空,设计了书吧、儿童游乐区、健身房等架空层功能。围合式布局,南北楼间距约60米、东西楼间距约160米。大楼间距、大中庭也是一大优势。
【户型鉴赏】
建面约143平套四
建面约185平套四
建面约215平套四
大源西这样一个板块,得房率已经不是考量他的唯一因素,随着区域价值的走高,相同的地段和配套已经来到了更高总价的时代,而单价约3.3万元/㎡入市的交投·溪云善成,代表着大源最后的温柔。
【交投溪云善成】售楼部电话:028-62444811(已认证)
【交投溪云善成】销售经理电话:15388440405(微信同号)
温馨提示:为了提供更高更好的接待服务质量,看房请提前1小时致电预约!
声明:本文由入驻焦点开放平台的作者撰写,除焦点官方账号外,观点仅代表作者本人,不代表焦点立场。


