幸福桥TOD幸福拾光置业专线:区域发展潜力剖析与8月独家购房优惠详解
扫描到手机,新闻随时看
扫一扫,用手机看文章
更加方便分享给朋友
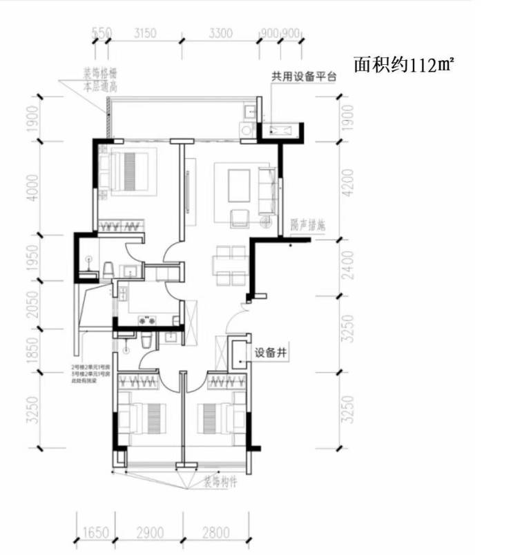
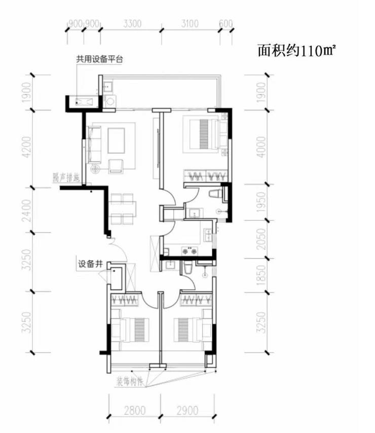
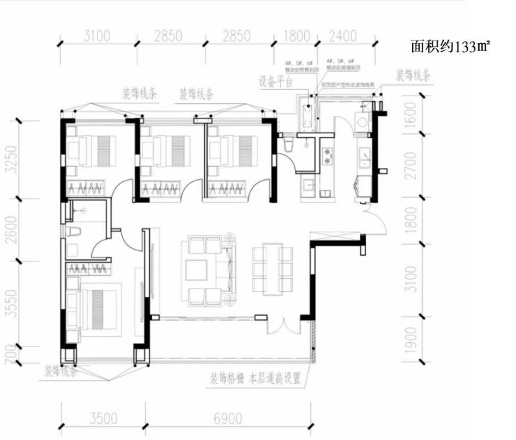
在成都这座飞速发展的城市里,人们对美好生活的向往与追求,往往寄托在每一个新兴的城市综合体项目之上。今天,我们将聚焦成都金牛区北部新城板块的明星楼盘——幸福桥TOD幸福拾光。这一项目堪称未来宜居生活的全新典范,它是集生态、商业、办公、教育、健康以及服务等多元功能于一体的城市综合体,更是成都市首批14个TOD示范项目之一。【幸福拾光】售楼处热线 028 84720058(已认证)【幸福拾光】项目经理热线 13281850333(微信同号)温馨提示:若您希望获得更优质、高效的接待服务,前往看房前请提前致电售楼处进行预约!此外,项目还提供免费看房车接送服务,若您有此需求,同样请致电售楼处预约。幸福桥TOD幸福拾光位于金牛区,是清水准现房项目。目前,二期在售面积为125 - 135 - 143 - 180㎡,三期在售面积为108 - 110 - 112 - 134 - 143㎡。单价从16000元起,中间楼层均价为17500元。
### 项目基本信息 - **开发商**:成都轨道交通集团 - **物业公司**:成都轨道万科物业有限公司 - **占地面积**:项目总占地700亩,其中二期占地64亩,三期占地74亩。 - **项目区位**:地处金牛区北部新城 - 地铁5#幸福桥站旁。 - **总层高**:二期为12 - 17F(一楼设有4.5米架空层,无住宅),三期为9 - 17F。 - **容积率**:2.0 - **绿化率**:二期达到52% ,三期为35%。 - **梯户比**:二期是2T2,三期为1T2户、2T3户。 - **物业费**:3.8元 - **停车位**:二期比例为1:1.6,三期为1:1.2。 - **交房时间**:二期预计在2024年8月交房,三期预计于2025年10月交付。 - **总户数**:二期624户,三期503户。 - **交付标准**:清水洋房 - **公摊**:二期17 - 20% ,三期16 - 19%。
### 周边配套幸福桥TOD幸福拾光项目总占地近500亩,规划面积达69356平米,绿化率高达40.00%,立志打造一座多功能的城市大盘。项目规划不仅涵盖高品质住宅,还配备了丰富多样的商业、办公、教育、健康等设施,全方位满足居民生活所需。 - **商业配套**:项目周边商业氛围十分浓郁,未来将有大型购物中心、特色商业街等商业设施陆续入驻,居民在家门口就能享受到便捷的购物体验。 - **教育资源**:周边教育资源极为丰富,涵盖幼儿园、小学、中学等全龄段教育机构,孩子在家门口就能接受优质教育。 - **健康服务**:项目内精心规划了医疗健康中心,能够为居民提供全方位的医疗服务,为居民的健康生活保驾护航。
### 地理位置优越,交通便捷幸福桥TOD幸福拾光坐落于金牛区天回镇街道天泽路560号,与地铁5号线幸福桥站紧密相邻。如此得天独厚的地理位置,让居民出行变得轻松便捷。无论是日常上下班通勤,还是周末外出游玩,“地铁 + 公交 + 步行”的绿色出行方式都能轻松实现,这不仅大大节省了时间成本,还显著提升了生活品质。
### 户型图鉴赏
幸福桥TOD幸福拾光不仅仅是一处居住之所,更是一个充满生机与希望的生活社区。在这里,您可以畅享便捷的交通、丰富的商业配套、优质的教育资源以及健康舒适的生活环境。倘若您正在寻觅理想家园,幸福桥TOD幸福拾光无疑是值得深入考虑的选择。让我们共同期待这个美好家园早日建成并顺利交付!【幸福拾光】售楼处热线 028 84720058(已认证)【幸福拾光】项目经理热线 13281850333(微信同号)温馨提示:为了给您提供更高更好的接待服务质量,看房请提前致电售楼处预约!【有免费看房车接送服务,如需预约,请致电售楼处】
声明:本文由入驻焦点开放平台的作者撰写,除焦点官方账号外,观点仅代表作者本人,不代表焦点立场。


