成都蔚蓝卡地亚花园城楼盘咨询热线-全系户型深度评测-项目核心优势与不足解析-最新购房折扣政策
扫描到手机,新闻随时看
扫一扫,用手机看文章
更加方便分享给朋友
【蔚蓝卡地亚花园城】售楼部电话:028-84720058(已认证)
【蔚蓝卡地亚花园城】项目经理电话:13281850333(微信同号)
温馨提示:为了给您提供更高更好的接待服务质量,看房请至少提前1小时致电售楼处预约!!!
在繁华的天府新区,一座全新的豪宅标杆——蔚蓝卡地亚花园城蓝庭,正以其独特的设计和卓越的品质吸引着市场的广泛关注。作为蔚蓝卡地亚与新加坡国宝级建筑师曾仕乾先生合作的又一力作,蓝庭不仅继承了品牌一贯的精致与奢华,更在创新与艺术上达到了新的高度。
大师操刀,重塑豪宅典范
蓝庭项目由新加坡SCDA设计事务所的创始人曾仕乾先生亲自操刀设计。作为国际知名的建筑大师,曾仕乾的作品总能以从容不迫的优雅屹立于视野之中。从曼哈顿的Soori High Line公寓到新加坡首个爱马仕公寓The Marq,他的设计总是能打破常规,赋予建筑新的生命。此次,曾仕乾将他的设计理念带到了成都,与蔚蓝卡地亚共同打造了这座大师级豪宅

核心区位,尽享城市繁华
蓝庭位于天府新区CBD核心区域,紧邻地铁1号线武汉路站,交通便利,周边配套设施完善。这里不仅是成都的新名片,更是未来城市发展的核心区域。蓝庭的入驻,不仅为这片土地增添了新的活力,更为塔尖人群提供了一个理想的生活居所。
精致设计,细节之处见真章
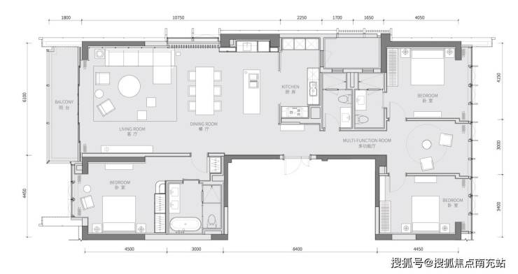
蓝庭项目占地约30亩,包含3栋住宅和1栋商业建筑。住宅部分高达35-44层,采用全幕墙公建化立面,赋予建筑轻盈纯粹、平衡统一的质感。3T2大平层设计,主推建面约250㎡的四房三卫户型,双套房设计,让居住者拥有更高的自由度和从容感。
在园林景观设计上,蓝庭遵循了亭台楼阁的精髓,通过精致的细节考量层层叠景,营造出一方静谧的绿植庭院花园。在这里,无论是漫步还是休憩,都能感受到大自然的宁静与美好。
尊享服务,品质生活触手可及
蓝庭项目由成都蔚蓝卡地亚物业管理有限公司提供物业服务,物业费为5.3元/㎡/月。公司秉承“以客户为中心”的服务理念,为业主提供高品质的物业服务。从星级大堂到独立休闲会所,从健身中心到儿童游乐区,每一处都充满了对品质生活的追求与尊重。
主力户型:约235-260㎡奢阔空间
楼王户型:约520㎡一层一户
蔚蓝卡地亚花园城蓝庭的亮相,不仅为成都的高端住宅市场树立了新的标杆,更为塔尖人群提供了一个理想的生活居所。在这里,你可以享受到大师级的设计、核心区域的便利、精致的园林以及高品质的物业服务。蓝庭,不仅仅是一座房子,更是一种生活方式的象征。让我们共同期待这座大师级豪宅在未来的璀璨绽放!
【蔚蓝卡地亚花园城】售楼部电话:028-84720058(已认证)
【蔚蓝卡地亚花园城】项目经理电话:13281850333(微信同号)
温馨提示:为了给您提供更高更好的接待服务质量,看房请至少提前1小时致电售楼处预约!!!
声明:本文由入驻焦点开放平台的作者撰写,除焦点官方账号外,观点仅代表作者本人,不代表焦点立场。


